Exposé
Objektart:
Büro / Praxen
» Bueroflaeche
» Miete
Standort: Büro / Praxen »
Deutschland » Baden-Württemberg » Rhein-Neckar-Kreis (Kreis) » Walldorf
Büroflächen in Walldorf: ab ca. 630 m² oder ganze Etagen bis ca. 1.260 m²
Das Wichtigste auf einen Blick:
| Objektnummer: | 9314718 |
Preise
| Miete für das Objekt | Auf Anfrage |
| Nebenkosten | keine Angabe |
Flächen
| Gesamtfläche | 7.500 m² |
| Bürofläche | 6.870 m² |
| Maklerprovision | keine Provision, courtagefrei |
Objekt Adresse
Dietmar-Hopp-Allee 23
69190 Walldorf
- Baden-Württemberg
Sonstige Angaben
| Baujahr | 1995 |
| Verfügbar ab | nach Absprache |
| Anzahl der Etagen im Haus | 5 |
| Küche | Einbauküche |
| Fahrstuhl | Ja |
| Barrierefrei | |
| Energieausweistyp | Verbrauch |
| Energieträger/Befeuerung | Fernwärme |
Objektbeschreibung
Das gepflegte Gewerbeobjekt in der Dietmar-Hopp-Allee 23 bietet helle, funktional geschnittene Flächen in einem repräsentativen Umfeld. Die Räume eignen sich besonders gut für Büro- oder Praxisnutzung, da sie überschaubar und effizient angelegt sind.
Die Immobilie punktet durch eine freundliche Arbeitsatmosphäre: große Fensterflächen lassen viel Tageslicht herein, die Raumaufteilung ermöglicht konzentriertes Arbeiten und eine flexible Nutzung je nach Bedarf.
Besonderheit:
Neben der Anmietung kompletter Etagen besteht auch die Möglichkeit, halbe Etagen flexibel zu mieten (ab ca. 630m²) ideal für Unternehmen mit individuellem Flächenbedarf.
Die Immobilie ist ideal für Unternehmen oder Dienstleister, die ein funktionales, repräsentatives und gut erreichbares Umfeld suchen.
Hinweis: Alle Maßangaben wurden eigenständig ermittelt. Für deren Richtigkeit und Vollständigkeit wird keine Haftung übernommen. Die Fotos dienen der Veranschaulichung und können vom aktuellen Zustand abweichen.
Der Energieausweis wurde bereits beantragt. Die entsprechenden Angaben werden nach Vorliegen ergänzt. Der Ausweis wird spätestens bei der Besichtigung vorgelegt.
Die Immobilie punktet durch eine freundliche Arbeitsatmosphäre: große Fensterflächen lassen viel Tageslicht herein, die Raumaufteilung ermöglicht konzentriertes Arbeiten und eine flexible Nutzung je nach Bedarf.
Besonderheit:
Neben der Anmietung kompletter Etagen besteht auch die Möglichkeit, halbe Etagen flexibel zu mieten (ab ca. 630m²) ideal für Unternehmen mit individuellem Flächenbedarf.
Die Immobilie ist ideal für Unternehmen oder Dienstleister, die ein funktionales, repräsentatives und gut erreichbares Umfeld suchen.
Hinweis: Alle Maßangaben wurden eigenständig ermittelt. Für deren Richtigkeit und Vollständigkeit wird keine Haftung übernommen. Die Fotos dienen der Veranschaulichung und können vom aktuellen Zustand abweichen.
Der Energieausweis wurde bereits beantragt. Die entsprechenden Angaben werden nach Vorliegen ergänzt. Der Ausweis wird spätestens bei der Besichtigung vorgelegt.
Ausstattung
Fahrstuhl, Einbauküche, Barrierefrei, Sonstiges (s. Text)
Bemerkungen:
-Gesamtfläche ca. 7.500m²
-Baujahr 1995
-Flexible Nutzungsmöglichkeiten
-Zentrale Lage in der Dietmar-Hopp-Allee 23, 69190 Walldorf
-Gepflegtes Gewerbeobjekt mit moderner Außenwirkung
-Eigene Beschilderung / gute Sichtbarkeit möglich
-Stellplätze direkt vor dem Gebäude und in unmittelbarer Nähe
-Leistungsstarke Internetanbindung
-Serverraum auf jeder Etage
-WC-Anlage auf jeder Etage
-Snackautomaten im EG
-Heizung vorhanden
-Gute Erreichbarkeit für Kunden und Mitarbeitende
Bemerkungen:
-Gesamtfläche ca. 7.500m²
-Baujahr 1995
-Flexible Nutzungsmöglichkeiten
-Zentrale Lage in der Dietmar-Hopp-Allee 23, 69190 Walldorf
-Gepflegtes Gewerbeobjekt mit moderner Außenwirkung
-Eigene Beschilderung / gute Sichtbarkeit möglich
-Stellplätze direkt vor dem Gebäude und in unmittelbarer Nähe
-Leistungsstarke Internetanbindung
-Serverraum auf jeder Etage
-WC-Anlage auf jeder Etage
-Snackautomaten im EG
-Heizung vorhanden
-Gute Erreichbarkeit für Kunden und Mitarbeitende
Lage des Objektes
Die Immobilie befindet sich in der Dietmar-Hopp-Allee im Gewerbegebiet von Walldorf, direkt gegenüber dem SAP Headquarters. Sie liegt inmitten eines wirtschaftlich starken und modernen Umfelds mit ausgezeichneter Infrastruktur.
Verkehrsanbindung:
Die Anbindung an die Autobahnen A5 und A6 ist hervorragend. Über die Ausfahrt Walldorf/Wiesloch (bzw. Wiesloch/Rauenberg) gelangt man über die Landesstraße L723 direkt in das SAP-Campusgebiet.
Der Zugang erfolgt bequem über die Zufahrt „SAP Headquarters / Dietmar-Hopp-Allee“.
Der Bahnhof Wiesloch-Walldorf ist nur wenige Minuten entfernt und wird regelmäßig von S-Bahn- und Regionalzügen angefahren. Vom Bahnhof aus verkehren mehrere Buslinien (u. a. 707 und 721), die das Industriegebiet Walldorf / SAP-Campus direkt ansteuern.
Umfeld & Nachbarschaft:
Unmittelbar angrenzend befinden sich weitere Büro- und Unternehmensflächen des SAP-Campus sowie zahlreiche IT- und Dienstleistungsfirmen.
Das Umfeld ist geprägt von modernen Bürogebäuden, gepflegten Außenanlagen und einer hervorragenden technischen Infrastruktur.
In fußläufiger Entfernung befinden sich verschiedene Cafés, Bistros und Einzelhandelsgeschäfte, die zur Nahversorgung beitragen.
Für eine entspannte Pause oder einen Spaziergang in der Natur bietet sich der nahegelegene Wald an – ideal für kurze Erholungsmomente im Arbeitsalltag.
Weitere Standortvorteile:
Wirtschaftsstandort: Teil der starken Rhein-Neckar-Region, einem bedeutenden Zentrum für Technologie und Innovation.
Repräsentative Adresse: Die Lage in der Dietmar-Hopp-Allee – direkt im Umfeld des SAP Headquarters – unterstreicht das professionelle Image.
ÖPNV-Anbindung: Sehr gute Erreichbarkeit auch für Mitarbeitende ohne Pkw.
Synergien: Vielfältige Kooperations- und Netzwerkpotenziale mit Unternehmen aus dem Technologie- und Dienstleistungssektor.
Erholungsmöglichkeiten: Der nahe Wald bietet eine grüne Umgebung für Spaziergänge und Pausen im Freien.
Infrastruktur (im Umkreis von 5 km):
Apotheke, Lebensmittel-Discount, Allgemeinmediziner, Kindergarten, Grundschule, Realschule, Gymnasium, Öffentliche Verkehrsmittel
Verkehrsanbindung:
Die Anbindung an die Autobahnen A5 und A6 ist hervorragend. Über die Ausfahrt Walldorf/Wiesloch (bzw. Wiesloch/Rauenberg) gelangt man über die Landesstraße L723 direkt in das SAP-Campusgebiet.
Der Zugang erfolgt bequem über die Zufahrt „SAP Headquarters / Dietmar-Hopp-Allee“.
Der Bahnhof Wiesloch-Walldorf ist nur wenige Minuten entfernt und wird regelmäßig von S-Bahn- und Regionalzügen angefahren. Vom Bahnhof aus verkehren mehrere Buslinien (u. a. 707 und 721), die das Industriegebiet Walldorf / SAP-Campus direkt ansteuern.
Umfeld & Nachbarschaft:
Unmittelbar angrenzend befinden sich weitere Büro- und Unternehmensflächen des SAP-Campus sowie zahlreiche IT- und Dienstleistungsfirmen.
Das Umfeld ist geprägt von modernen Bürogebäuden, gepflegten Außenanlagen und einer hervorragenden technischen Infrastruktur.
In fußläufiger Entfernung befinden sich verschiedene Cafés, Bistros und Einzelhandelsgeschäfte, die zur Nahversorgung beitragen.
Für eine entspannte Pause oder einen Spaziergang in der Natur bietet sich der nahegelegene Wald an – ideal für kurze Erholungsmomente im Arbeitsalltag.
Weitere Standortvorteile:
Wirtschaftsstandort: Teil der starken Rhein-Neckar-Region, einem bedeutenden Zentrum für Technologie und Innovation.
Repräsentative Adresse: Die Lage in der Dietmar-Hopp-Allee – direkt im Umfeld des SAP Headquarters – unterstreicht das professionelle Image.
ÖPNV-Anbindung: Sehr gute Erreichbarkeit auch für Mitarbeitende ohne Pkw.
Synergien: Vielfältige Kooperations- und Netzwerkpotenziale mit Unternehmen aus dem Technologie- und Dienstleistungssektor.
Erholungsmöglichkeiten: Der nahe Wald bietet eine grüne Umgebung für Spaziergänge und Pausen im Freien.
Infrastruktur (im Umkreis von 5 km):
Apotheke, Lebensmittel-Discount, Allgemeinmediziner, Kindergarten, Grundschule, Realschule, Gymnasium, Öffentliche Verkehrsmittel
Sonstige Informationen
Heizungsart: Sonstiges (s. Text)
Energieträger: Fernwärme
ERANTWORTLICH FÜR DEN INHALT DIESER INTERNETPRÄSENZ:
H.W. Müller eGdbR
Dietmar- Hopp-Allee 25
69190 Walldorf
Tel.: +49 (0) 6227 / 9108
Tel.: +49 (0) 6227 / 1295
Ust.-Id.-Nr.: DE 175955300
E-Mail: info@mueller-walldorf.de
1. Inhalt des Onlineangebotes
Der Inhalt dieser Webseite ist urheberrechtlich geschützt. Alle Rechte, auch der Übersetzung der Webseite, des Nachdrucks und der Vervielfältigung des Inhaltes oder Teilen daraus, sind vorbehalten. Der Inhalt dieser Seite darf in keiner Form ohne schriftliche Genehmigung der G&R Müller GdbR oder der H.W. Müller GdbR reproduziert oder verarbeitet, vervielfältigt oder verbreitet werden. Der Autor übernimmt keinerlei Gewähr für die Aktualität, Korrektheit, Vollständigkeit oder Qualität der bereitgestellten Informationen. Haftungsansprüche gegen den Autor, welche sich auf Schäden materieller oder ideeller Art beziehen, die durch die Nutzung oder Nichtnutzung der dargebotenen Informationen verursacht wurden sind grundsätzlich ausgeschlossen, sofern seitens des Autors kein nachweislich vorsätzliches oder grob fahrlässiges Verschulden vorliegt. Alle Informationen/Angebote ohne gesonderte Ankündigung sind freibleibend und unverbindlich. Der Autor behält sich ausdrücklich vor, Teile der Seiten oder das gesamte Angebot ohne gesonderte Ankündigung zu verändern, zu ergänzen, zu löschen oder die Veröffentlichung zeitweise oder entgültig einzustellen.
2. Datenschutz
Sofern innerhalb des Internetangebotes die Möglichkeit zur Eingabe persönlicher oder geschäftlicher Daten (E-Mail Adressen, Namen, Anschriften) besteht, so erfolgt die Preisgabe dieser Daten seitens des Nutzers auf ausdrücklich freiwilliger Basis. Die Nutzung unserer Webseite ist in der Regel ohne Angabe personenbezogener Daten möglich. Diese Daten werden ohne Ihre ausdrückliche Zustimmung nicht an Dritte weitergegeben.
Die Betreiber dieser Seiten nehmen den Schutz Ihrer persönlichen Daten sehr ernst. Wir behandeln Ihre personenbezogenen Daten vertraulich und entsprechend der gesetzlichen Datenschutzvorschriften sowie dieser Datenschutzerklärung. Wir weisen darauf hin, dass die Datenübertragung im Internet (z.B. bei der Kommunikation per E-Mail) Sicherheitslücken aufweisen kann. Ein lückenloser Schutz der Daten vor dem Zugriff durch Dritte ist nicht möglich.
3. Rechtswirksamkeit
Für den Fall, dass einige Teile oder einzelne Formulierungen dieses Textes der geltenden Rechtslage nicht, oder nicht mehr oder nicht vollständig entsprechen, bleiben die übrigen Teile des Dokumentes in ihrem Inhalt und ihrer Gültigkeit davon unberührt.
4. Bildquellen
Alle Bilder sind Eigentum der:
G+R Müller Vermietungs GdbR, Otto-Hahn-Str. 1, D-69190 Walldorf
Aufgrund der Zeichenbegrenzung können wir das vollständige Impressum hier nicht darstellen.
Sie können das vollständige Impressum aber jederzeit auf unserer Website einsehen unter:
www.mueller-walldorf.de/impressum
ohne-makler (OM) ist weder Anbieter noch Vermittler der Immobilie. OM betreibt eine Plattform für Immobilieneigentümer, die unter anderem die gleichzeitige Veröffentlichung einzelner Inserate auf mehreren Immobilienportalen ermöglicht. Die Inhalte dieser Inserate werden ausschließlich von Dritten verantwortet. Für die Richtigkeit, Vollständigkeit oder Rechtmäßigkeit der Angaben übernimmt OM keine Haftung. Hinweise auf mögliche Rechtsverstöße können jederzeit gemeldet werden und werden nach Prüfung umgehend bearbeitet.
Barrierefreier Haupteingang
Haupteingang von innen
Einbauküche Zwischengang
Zwischengang
Eckbüro
Eckbüro
Gang zwischen Büros
Gang zwischen Büros
Eckbüro Sicht nach draussen
Eckbüro mit Verbindungstür
Nachbarbüro des Eckbüros
Eckbüro
Fahrstuhl
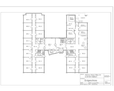
Grundriss Erdgeschoss
Grundriss 1. Obergeschoss