Exposé
Objektart:
Haus
» Zweifamilienhaus
» Kauf
Standort: Haus »
Deutschland » Nordrhein-Westfalen » Lippe (Kreis) » Kalletal
Im Kalletal Hohenhausen 1-2 Familienhaus Erdgeschoss leerstehend
Das Wichtigste auf einen Blick:
| Objektnummer: | 9314463 |
Preise
| Kaufpreis | 367.000 € |
| Nebenkosten | keine Angabe |
Flächen
| Wohnfläche | 187 m² |
| Grundstücksfläche | 776 m² |
| Maklerprovision | keine Provision, courtagefrei |
Objekt Adresse
32689 Kalletal
- Nordrhein-Westfalen
Sonstige Angaben
| Baujahr | 1982 |
| Zimmer | 6 |
| Verfügbar ab | 01.12.2025 |
| Garage/Stellplätze | 2 |
| Anzahl der Etagen im Haus | 3 |
| Boden | Fliesen, Laminat |
| Balkone | 1 |
| Garten | Ja |
| Terrassen | 1 |
| Garage/Stellplätze | 2 |
| Keller | Ja |
| Energieausweistyp | Verbrauch |
| Energieeffizienzklasse | D |
| Energieverbrauchkennwert | 106 kWh/(m²*a) |
| Heizungsart | Zentralheizung |
| Energieträger/Befeuerung | Gas |
Objektbeschreibung
Im Kalletal Hohenhausen wurde dieses 1-2 Familienhaus klassisch im Bungalowstil errichtet.
Zwei Garagen mit elektrischen Torantrieben und drei Stellplätze bieten genug Platz für Ihre Fahrzeuge.
Im Erdgeschoss befindet sich gleich rechts ein Kinder- oder Arbeitszimmer und das Schlafzimmer, dazwischen liegt das geräumige Badezimmer.
Im Flur links befindet sich das separate Gäste-WC. Hinter der Küche das großzügige Wohn- und Esszimmer. Die große Terrasse ist vom Wohnzimmer und auch vom Schlafzimmer erreichbar.
Ein Blickfang im Wohnzimmer ist ohne Frage der schöne Kachelofen.
Insgesamt bietet die Etage im Erdgeschoss 109m² Wohnfläche und eine Terrasse.
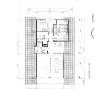
Das Dachgeschoss bietet eine weitere komplette Wohneinheit mit ca. 78m² Wohnfläche.
Die Wohneinheit bietet, natürlich mit Dachschrägen, ein großes Wohnzimmer mit Balkon, ein Badezimmer mit Dusche, sowie eine Küche, den Flur und ein Schlafzimmer. Vom Wohnzimmer kommen sie über eine Schiebetür auf den Balkon.
Das Kellergeschoss ist vom Treppenhaus und über eine Außen-Kellertreppe erreichbar. Die Kellerräume sind komplett mit Heizkörpern ausgestattet und der Kellerfußboden ist komplett gefliest. Ein WC sind ebenfalls installiert. Neben dem Waschkeller befindet sich hier weitere Kellerräume als Stauräume, ein Raum wurde als Sauna genutzt. Elektrische Anschlüsse und eine Badewanne sind vorhanden. Die Räume können als Wohnkeller genutzt werden. Vier Räume haben die Fenster oberirdisch. Ein Raum ist mit einer Bar ausgestattet, den kann man als Partyraum nutzen.
Über die Gegensprechanlage zur Haustür identifizieren Sie Ihre Besucher schon vor dem Öffnen.
Die Wohnung im Erdgeschoß ist ab dem 01.12.2025 leerstehend.
Die obere Wohnung ist zur Zeit vermietet, welche sichere Mieteinnahmen garantiert.
Zwei Garagen mit elektrischen Torantrieben und drei Stellplätze bieten genug Platz für Ihre Fahrzeuge.
Im Erdgeschoss befindet sich gleich rechts ein Kinder- oder Arbeitszimmer und das Schlafzimmer, dazwischen liegt das geräumige Badezimmer.
Im Flur links befindet sich das separate Gäste-WC. Hinter der Küche das großzügige Wohn- und Esszimmer. Die große Terrasse ist vom Wohnzimmer und auch vom Schlafzimmer erreichbar.
Ein Blickfang im Wohnzimmer ist ohne Frage der schöne Kachelofen.
Insgesamt bietet die Etage im Erdgeschoss 109m² Wohnfläche und eine Terrasse.
Das Dachgeschoss bietet eine weitere komplette Wohneinheit mit ca. 78m² Wohnfläche.
Die Wohneinheit bietet, natürlich mit Dachschrägen, ein großes Wohnzimmer mit Balkon, ein Badezimmer mit Dusche, sowie eine Küche, den Flur und ein Schlafzimmer. Vom Wohnzimmer kommen sie über eine Schiebetür auf den Balkon.
Das Kellergeschoss ist vom Treppenhaus und über eine Außen-Kellertreppe erreichbar. Die Kellerräume sind komplett mit Heizkörpern ausgestattet und der Kellerfußboden ist komplett gefliest. Ein WC sind ebenfalls installiert. Neben dem Waschkeller befindet sich hier weitere Kellerräume als Stauräume, ein Raum wurde als Sauna genutzt. Elektrische Anschlüsse und eine Badewanne sind vorhanden. Die Räume können als Wohnkeller genutzt werden. Vier Räume haben die Fenster oberirdisch. Ein Raum ist mit einer Bar ausgestattet, den kann man als Partyraum nutzen.
Über die Gegensprechanlage zur Haustür identifizieren Sie Ihre Besucher schon vor dem Öffnen.
Die Wohnung im Erdgeschoß ist ab dem 01.12.2025 leerstehend.
Die obere Wohnung ist zur Zeit vermietet, welche sichere Mieteinnahmen garantiert.
Ausstattung
Balkon, Terrasse, Garten, Keller, Gäste-WC, Kamin, Laminat, Fliesen
Lage des Objektes
Das Haus liegt sehr zentral im Kalletal Hohenhausen.
Das Rathaus (600m), Sparkasse (550m), Ärzte und Apotheke (700m), und Edeka (850m) sind fußläufig zu erreichen.
Infrastruktur (im Umkreis von 5 km):
Apotheke, Lebensmittel-Discount, Allgemeinmediziner, Kindergarten, Grundschule, Hauptschule, Realschule, Gymnasium, Gesamtschule, Öffentliche Verkehrsmittel
Das Rathaus (600m), Sparkasse (550m), Ärzte und Apotheke (700m), und Edeka (850m) sind fußläufig zu erreichen.
Infrastruktur (im Umkreis von 5 km):
Apotheke, Lebensmittel-Discount, Allgemeinmediziner, Kindergarten, Grundschule, Hauptschule, Realschule, Gymnasium, Gesamtschule, Öffentliche Verkehrsmittel
Sonstige Informationen
Heizungsart: Zentralheizung
Energieträger: Gas
Makleranfragen nicht erwünscht. Nach § 7 UWG sind unaufgeforderte Kontaktaufnahmen durch Makler ohne ausdrückliche Einwilligung des Empfängers verboten!
ohne-makler (OM) ist weder Anbieter noch Vermittler der Immobilie. OM betreibt eine Plattform für Immobilieneigentümer, die unter anderem die gleichzeitige Veröffentlichung einzelner Inserate auf mehreren Immobilienportalen ermöglicht. Die Inhalte dieser Inserate werden ausschließlich von Dritten verantwortet. Für die Richtigkeit, Vollständigkeit oder Rechtmäßigkeit der Angaben übernimmt OM keine Haftung. Hinweise auf mögliche Rechtsverstöße können jederzeit gemeldet werden und werden nach Prüfung umgehend bearbeitet.