Exposé
Objektart:
Wohnung
» Etage
» Kauf
Standort: Wohnung »
Deutschland » Baden-Württemberg » Böblingen (Kreis) » Leonberg
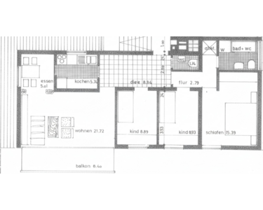
Leonberg: Gepflegte 4-Zimmer-Wohnung mit Südbalkon
Das Wichtigste auf einen Blick:
| Objektnummer: | 9313751 |
Preise
| Kaufpreis | 296.000 € |
| Nebenkosten | keine Angabe |
| Hausgeld | 120 € |
Flächen
| Wohnfläche | 85 m² |
| Maklerprovision | keine Provision, courtagefrei |
Objekt Adresse
71229 Leonberg
- Baden-Württemberg
Sonstige Angaben
| Baujahr | 1971 |
| Zimmer | 4 |
| Verfügbar ab | nach Absprache |
| Bad | 1 |
| Anzahl der Etagen im Haus | 5 |
| Inserat befindet sich im Stockwerk | 5 |
| Küche | Einbauküche |
| Bad | 1 |
| Boden | Laminat |
| Balkone | 1 |
| Garten | Ja |
| Terrassen | 0 |
| Fahrstuhl | Ja |
| Keller | Ja |
| Energieausweistyp | Verbrauch |
| Energieeffizienzklasse | E |
| Energieverbrauchkennwert | 133 kWh/(m²*a) |
| Heizungsart | Zentralheizung |
| Energieträger/Befeuerung | Gas |
Objektbeschreibung
Bei dieser ansprechenden Immobilie handelt es sich um eine gepflegte Wohnung in der 5. Etage eines Mehrfamilienhauses mit insgesamt 10 Wohneinheiten, die ab dem 01.11.2025 zum Verkauf steht. Das Apartment besteht aus 4 Zimmern mit ca. 85 m² Wohnfläche, einem Badezimmer und einem separaten Gäste-WC. Die Immobilie ist bequem über einen Fahrstuhl zu erreichen. Bei der Heizungsart des Objekts, das sich in einem 1971 erbauten Haus befindet, handelt es sich um eine Gasheizung. Ein aktueller Energieausweis liegt vor. Besonders hervorzuheben ist, dass es nicht nur einen Süd-Balkon gibt, sondern Sie auch den Garten des Hauses mitbenutzen können. Auch eine Einbauküche ist vorhanden, sodass Sie keine eigene Küche kaufen müssen. Für ausreichend Stauraum sorgt außerdem der dazugehörige Keller. Derzeit ist das Objekt vermietet. Die monatlichen Mieteinnahmen liegen bei 1.150,00 €.
Ausstattung
Balkon, Garten, Keller, Fahrstuhl, Einbauküche, Gäste-WC, Laminat
Lage des Objektes
Das Objekt liegt in belebter Gegend in Leonberg. Fußläufig entfernt befinden sich verschiedene Buslinien und die Bahnlinien S6 und S60. In direkter Umgebung finden Sie mehrere Restaurants, Ärzte, Cafés, Bäckereien und Einkaufszentren vor. Auch ein paar Modegeschäfte, Bars, Fitnessstudios, Grün- und Parkanlagen und eine Buchhandlung erreichen Sie.
Infrastruktur (im Umkreis von 5 km):
Apotheke, Lebensmittel-Discount, Allgemeinmediziner, Kindergarten, Grundschule, Hauptschule, Realschule, Gymnasium, Gesamtschule, Öffentliche Verkehrsmittel
Infrastruktur (im Umkreis von 5 km):
Apotheke, Lebensmittel-Discount, Allgemeinmediziner, Kindergarten, Grundschule, Hauptschule, Realschule, Gymnasium, Gesamtschule, Öffentliche Verkehrsmittel
Sonstige Informationen
Heizungsart: Zentralheizung
Energieträger: Gas
Makleranfragen nicht erwünscht. Nach § 7 UWG sind unaufgeforderte Kontaktaufnahmen durch Makler ohne ausdrückliche Einwilligung des Empfängers verboten!
ohne-makler (OM) ist weder Anbieter noch Vermittler der Immobilie. OM betreibt eine Plattform für Immobilieneigentümer, die unter anderem die gleichzeitige Veröffentlichung einzelner Inserate auf mehreren Immobilienportalen ermöglicht. Die Inhalte dieser Inserate werden ausschließlich von Dritten verantwortet. Für die Richtigkeit, Vollständigkeit oder Rechtmäßigkeit der Angaben übernimmt OM keine Haftung. Hinweise auf mögliche Rechtsverstöße können jederzeit gemeldet werden und werden nach Prüfung umgehend bearbeitet.
Grundriss