Exposé
Objektart:
Haus
» Einfamilienhaus
» Kauf
Standort: Haus »
Deutschland » Niedersachsen » Northeim (Kreis) » Northeim
Eine seltene Gelegenheit in attraktiver Lage
Außenansicht von der Wieterstraße aus
Angeboten von:
Niedersächsisches Landesamt für Bau und Liegenschaften BL 2/ BL 2114
Waterloostraße 4
30169 Hannover
Deutschland
Telefon:+49 511 76351-251
Fax:+49 511 76351-197
Ansprechpartner/in
Niedersächsisches Landesamt für Bau und Liegenschaften, Landesliegenschaftsfonds Niederlassung Göttingen
Herr Oliver Haas
| Telefon: | +49 551 99965905 |
| Mobil | +49 173 2026833 |
Das Wichtigste auf einen Blick:
| Objektnummer: | 9313717 |
Preise
| Kaufpreis | 695.000 € |
| Nebenkosten | keine Angabe |
Flächen
| Wohnfläche | 557 m² |
| Grundstücksfläche | 1.554 m² |
Objekt Adresse
Wieterstraße 18
37154 Northeim
Sonstige Angaben
| Baujahr | 1900 |
| Letzte Modernisierung | 2021 |
| Zimmer | 24 |
| Verfügbar ab | keine Angabe |
| Garage/Stellplätze | 1 |
| Garage/Stellplätze | 1 |
| Keller | Ja |
| Energieausweistyp | Verbrauch |
| Ausstellungsdatum | 20. 10. 2025 |
| Gültig bis | 19.10.2035 |
| Baujahr (laut Energieausweis) | 1900 |
| Energieverbrauchkennwert | 115.0 kWh/(m²*a) |
| Wesentlicher Energieträger | Gas |
| Energieträger/Befeuerung | Gas |
Objektbeschreibung
Bei dem Liegenschaftsangebot handelt es sich um das im Grundbuch von Northeim Blatt 4981 im Bestandsverzeichnis unter der laufenden Nummer 2 verzeichnete und mit einem freistehenden, unterkellerten, zweigeschossigen Verwaltungs- und Geschäftshaus samt Anbau bebaute Grundstück der Gemarkung Northeim, Flur 6, Flurstück 288/2 (Hof- und Gebäudefläche, Wieterstraße 18) mit einer eingetragenen Grundstücksgröße von 1.554 m2.
Das bis zum 30.09.2025 vom Finanzamt Northeim-Herzberg am Harz genutzte Gebäude wurde ursprünglich als Wohnhaus (vermutlich um das Jahr 1900) errichtet und spätestens ab dem Jahr 1949 von der Polizei (samt Benzin-Zapfsäule) genutzt. Im Jahr 1976 wurde ein Anbau von Büro- und Archivflächen errichtet, der im Jahr 1992 mit weiteren Büroräumen ergänzt wurde. In den Jahren 2015 bis 2021 wurden mehrere Modernisierungsmaßnahmen (Sanierung Elektroinstallation (2015), Brandschutzsanierung samt Einbau eines 2. Rettungsweges für das Obergeschoss und dem Einbau von Rauchschutztüren (2017), Dachsanierung, Fassadenanstrich sowie Keller-Außenwandabdichtung mit Dränage (2018), Kanalsanierung und Einbau neuer WC-Anlagen (2021)) durchgeführt.
Die Warmwasserversorgung erfolgt über Durchlauferhitzer (Elektro).
Auf dem Grundstück befinden sich 10 gepflasterte PKW-Stellplätze (Baujahr 2021) mit Anbindung an die Wilhelmstraße sowie eine Stahlbeton-Fertiggarage aus dem Jahr 1975 mit Stromanschluss und elektromotorisch betriebenem Schwingtor. Neben einem ca. 20 cm hohen Sandsteinsockel als Abgrenzung zum Straßenraum befinden sich auf dem Grundstück zwei große Bäume (Ginko und Blutbuche), die unter den Nummern ND NOM-NOR25 und ND NOM-NOR30 im Verzeichnisses der Naturdenkmale (ND) des Landkreises Northeim erfasst sind.
Mitverkauft werden das auf dem Grundstück und im Gebäude noch teilweise vorhandene Mobiliar, die Rollregalanlage im Kellergeschoss, die Teeküchen, der Wandtresor, der Haus- und Unrat, evtl. vorhandene Brennstoffvorräte sowie alle auf dem Grundstück und im Gebäude vorhandenen sonstigen Gegenstände und Einrichtungen, ausgenommen nur solche Gegenstände und Einrichtungen, welche dritten Personen gehören.
Der Bereich der Liegenschaft ist im Flächennutzungsplan als Wohnbaufläche (W) dargestellt; der Bebauungsplan (B-Plan) 101 "Altes Wieterviertel" trifft u.a. folgende Festsetzungen:
WA = allgemeines Wohngebiet
II = 2 Vollgeschosse (zwingend)
GRZ = 0,4 (Grundflächenzahl)
Der B-Plan, detaillierte Erläuterungen und die textlichen Festsetzungen sowie weitere Informationen sind bei der Stadt Northeim erhältlich oder auch auf der Internetseite der Stadt abrufbar.
Es wird empfohlen, die bauordnungs- und bauplanungsrechtliche Genehmigungsfähigkeit der jeweils beabsichtigten Nachnutzung der Liegenschaft im Vorfeld einer Gebotsabgabe eingehend mit der zuständigen Baugenehmigungs- und Bauaufsichtsbehörde zu erörtern und abzustimmen.
Baulasten sind auf dem Grundstück nicht eingetragen.
Nach Auskunft der Denkmalschutzbehörde ist das Gebäude nicht als Denkmal ausgewiesen. Durch die Lage in unmittelbarer Umgebung zur geschützten Gruppe "Stadtbefestigung Northeim", die ein Baudenkmal gem. § 3 Abs. 3 NDSchG darstellt, sind bei Maßnahmen auf dem Grundstück / an dem Gebäude die Vorgaben des § 8 NDSchG zu berücksichtigen. Vor der Durchführung von Maßnahmen wird insofern die frühzeitige Abstimmung mit der Denkmalschutzbehörde empfohlen.
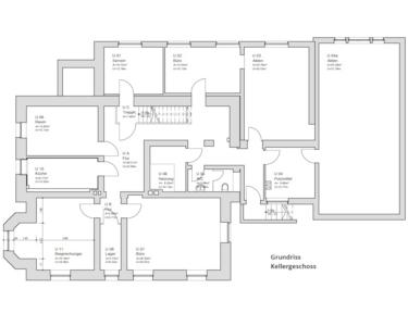
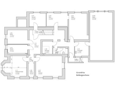
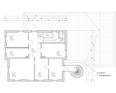
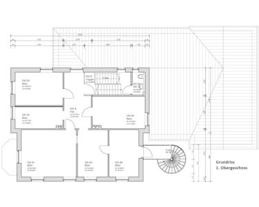
Die anhand der vorliegenden Grundrisse vor Ort stichprobenartig geprüfte und ermittelte Gesamtnutzfläche von ca. 557 m2 verteilt sich auf ca. 204 m2 im Kellergeschoss, ca. 237 m2 im Erdgeschoss und auf ca. 116 m2 im Obergeschoss (oberste Geschossdecke gedämmt). Der Dachraum ist zugänglich.
Als Bauschäden/Baumängel sind am Sockel zum Garagenhof Feuchtigkeitsschäden zu erkennen.
Werte aus dem Energieausweis für Nichtwohngebäude:
Endenergieverbrauch für Wärme: 115 kWh/(m2a)
Endenergieverbrauch Strom: 13 kWh/(m2a)
Das bis zum 30.09.2025 vom Finanzamt Northeim-Herzberg am Harz genutzte Gebäude wurde ursprünglich als Wohnhaus (vermutlich um das Jahr 1900) errichtet und spätestens ab dem Jahr 1949 von der Polizei (samt Benzin-Zapfsäule) genutzt. Im Jahr 1976 wurde ein Anbau von Büro- und Archivflächen errichtet, der im Jahr 1992 mit weiteren Büroräumen ergänzt wurde. In den Jahren 2015 bis 2021 wurden mehrere Modernisierungsmaßnahmen (Sanierung Elektroinstallation (2015), Brandschutzsanierung samt Einbau eines 2. Rettungsweges für das Obergeschoss und dem Einbau von Rauchschutztüren (2017), Dachsanierung, Fassadenanstrich sowie Keller-Außenwandabdichtung mit Dränage (2018), Kanalsanierung und Einbau neuer WC-Anlagen (2021)) durchgeführt.
Die Warmwasserversorgung erfolgt über Durchlauferhitzer (Elektro).
Auf dem Grundstück befinden sich 10 gepflasterte PKW-Stellplätze (Baujahr 2021) mit Anbindung an die Wilhelmstraße sowie eine Stahlbeton-Fertiggarage aus dem Jahr 1975 mit Stromanschluss und elektromotorisch betriebenem Schwingtor. Neben einem ca. 20 cm hohen Sandsteinsockel als Abgrenzung zum Straßenraum befinden sich auf dem Grundstück zwei große Bäume (Ginko und Blutbuche), die unter den Nummern ND NOM-NOR25 und ND NOM-NOR30 im Verzeichnisses der Naturdenkmale (ND) des Landkreises Northeim erfasst sind.
Mitverkauft werden das auf dem Grundstück und im Gebäude noch teilweise vorhandene Mobiliar, die Rollregalanlage im Kellergeschoss, die Teeküchen, der Wandtresor, der Haus- und Unrat, evtl. vorhandene Brennstoffvorräte sowie alle auf dem Grundstück und im Gebäude vorhandenen sonstigen Gegenstände und Einrichtungen, ausgenommen nur solche Gegenstände und Einrichtungen, welche dritten Personen gehören.
Der Bereich der Liegenschaft ist im Flächennutzungsplan als Wohnbaufläche (W) dargestellt; der Bebauungsplan (B-Plan) 101 "Altes Wieterviertel" trifft u.a. folgende Festsetzungen:
WA = allgemeines Wohngebiet
II = 2 Vollgeschosse (zwingend)
GRZ = 0,4 (Grundflächenzahl)
Der B-Plan, detaillierte Erläuterungen und die textlichen Festsetzungen sowie weitere Informationen sind bei der Stadt Northeim erhältlich oder auch auf der Internetseite der Stadt abrufbar.
Es wird empfohlen, die bauordnungs- und bauplanungsrechtliche Genehmigungsfähigkeit der jeweils beabsichtigten Nachnutzung der Liegenschaft im Vorfeld einer Gebotsabgabe eingehend mit der zuständigen Baugenehmigungs- und Bauaufsichtsbehörde zu erörtern und abzustimmen.
Baulasten sind auf dem Grundstück nicht eingetragen.
Nach Auskunft der Denkmalschutzbehörde ist das Gebäude nicht als Denkmal ausgewiesen. Durch die Lage in unmittelbarer Umgebung zur geschützten Gruppe "Stadtbefestigung Northeim", die ein Baudenkmal gem. § 3 Abs. 3 NDSchG darstellt, sind bei Maßnahmen auf dem Grundstück / an dem Gebäude die Vorgaben des § 8 NDSchG zu berücksichtigen. Vor der Durchführung von Maßnahmen wird insofern die frühzeitige Abstimmung mit der Denkmalschutzbehörde empfohlen.
Die anhand der vorliegenden Grundrisse vor Ort stichprobenartig geprüfte und ermittelte Gesamtnutzfläche von ca. 557 m2 verteilt sich auf ca. 204 m2 im Kellergeschoss, ca. 237 m2 im Erdgeschoss und auf ca. 116 m2 im Obergeschoss (oberste Geschossdecke gedämmt). Der Dachraum ist zugänglich.
Als Bauschäden/Baumängel sind am Sockel zum Garagenhof Feuchtigkeitsschäden zu erkennen.
Werte aus dem Energieausweis für Nichtwohngebäude:
Endenergieverbrauch für Wärme: 115 kWh/(m2a)
Endenergieverbrauch Strom: 13 kWh/(m2a)
Lage des Objektes
Die Liegenschaft befindet sich im Ortskern der ca. 30.000 Einwohner zählenden niedersächsischen Stadt Northeim. Die Entfernung zum Stadtzentrum beträgt ca. 300 Meter, zum Bahnhof ca. 1,5 Kilometer und zur nächstgelegenen größeren Stadt Göttingen ca. 20 Kilometer. Geschäfte des täglichen Bedarfs, Schulen und Ärzte befinden sich in fußläufiger Entfernung. Nach hiesiger Einschätzung handelt es sich um eine gute Wohn- und Geschäftslage.
Sonstige Informationen
Feststellungen über den Zustand des Gebäudes beruhen lediglich auf Inaugenscheinnahme; eingehende Untersuchungen auf versteckte Baumängel und Bauschäden, auf Verwendung gesundheitsschädigender Baumaterialien sowie eingehende Bodenuntersuchungen auf Kontaminationen wurden nicht durchgeführt.
Das Vorliegen einer Baugenehmigung und ggfls. die Übereinstimmung des ausgeführten Vorhabens mit der Baugenehmigung und dem Bauordnungsrecht und der verbindlichen Bauleitplanung wurde nicht geprüft. Offensichtlich erkennbare Widersprüche wurden jedoch nicht festgestellt, so dass die materielle Legalität der baulichen Anlagen und Nutzungen als gegeben angenommen wird.
Alle Angaben erfolgen ohne Gewähr nach bestem Wissen, Irrtum vorbehalten. Dieses Expose´ ist lediglich eine Vorabinformation, als Rechtsgrundlage gilt allein der notariell beurkundete Grundstückskaufvertrag.
Bei der Veräußerung landeseigener Liegenschaften zu einem Kaufpreis von mehr als 1.000.000,00 € ist der Niedersächsische Landtag zu beteiligen. In diesem Rahmen findet der Name des Erwerbers der Liegenschaft u.a. in den öffentlichen Landtagsprotokollen Erwähnung. Der Grundstückskaufvertrag wird dann unter dem Vorbehalt der Zustimmung des Landtages geschlossen.
Der Verkauf wird im Rahmen eines Gebotsverfahrens durchgeführt. Die Interessentinnen und Interessenten werden zunächst gebeten, ihre Gebote
schriftlich bis zu einem bestimmten Termin abzugeben. Nach Ablauf dieses Termins findet in geeigneten Fällen ein Nachgebotsverfahren statt, in dem den Bietenden die Möglichkeit eingeräumt wird, ihr Gebot zu erhöhen. Dieses Nachgebotsverfahren kann mehrfach wiederholt werden, bis ein endgültiges Höchstgebot gefunden worden ist. Gesetzte Fristen sind grundsätzlich keine Ausschlussfristen. Bis zum Vorliegen eines unterschriftsreif ausgehandelten Kaufvertragsentwurfs und fester Vereinbarung eines Beurkundungstermins können höhere Angebote berücksichtigt werden.
Die Ausschreibung ist für das Land Niedersachsen lediglich eine öffentliche, unverbindliche Aufforderung zur Abgabe eines Angebotes. Das Land behält die volle Entscheidungsfreiheit darüber, ob, wann, an wen und zu welchen Bedingungen ein Verkauf erfolgt. Das Land behält sich auch vor, die
Höchstbietenden zu Nachgeboten aufzufordern und einen Nachweis über die Finanzierung zu verlangen.
Das Land Niedersachsen übernimmt keinerlei Gewähr für die Aktualität, Korrektheit, Vollständigkeit oder Qualität der bereitgestellten Informationen.
Haftungsansprüche gegen das Land Niedersachsen, welche sich auf Schäden materieller oder ideeller Art beziehen, die durch die Nutzung oder Nichtnutzung der dargebotenen fehlerhaften oder unvollständigen Informationen verursacht wurden, sind grundsätzlich ausgeschlossen, sofern seitens des Landes Niedersachsen kein nachweislich vorsätzliches oder grob fahrlässiges Verschulden vorliegt.
Auszug aus der Liegenschaftskarte bearbeitet (unmaßstäblich)
Auszug 1 Energieausweis
Auszug 2 Energieausweis
Außenansicht aus Richtung Roden-Bollwerk und Tourlaviller Wall
Zufahrt von der Wilhemstraße samt Stellplätzen und Garage
Zugang von der Wieterstraße aus
Außenansicht Hauptgebäude
Außenansicht von der Wilhelmstraße aus
Anbau und Garage
Garage
Grundriss Kellergeschoss
Grundriss Erdgeschoss
Grundriss 1. Obergeschoss
Gas-Heizungsanlage im Kellergeschoss
Zugang zu Büroräumen im Erdgeschoss Hauptgebäude
Flur um Erdgeschoss Hauptgebäude
Treppe vom Erdgeschoss ins Obergeschoss
Treppen
Ansicht Büro (Bild 1)
Ansicht Büro (Bild 2)
Ansicht Büro (Bild 3)
Ansicht Büro (Bild 4)
Ansicht Büro (Bild 5)
Ansicht WC (Bild 1)
Ansicht WC (Bild 2)
Teeküche im Kellergeschoss
Archivraum mit Regalen im Erdgeschoss Hauptgebäude
Archivraum mit Rollregalanlage im Kellergeschoss (Bild 1)
Archivraum mit Rollregalanlage im Kellergeschoss (Bild 2)
Archivraum mit Rollregalanlage im Kellergeschoss (Bild 3)
Zugang zum Dachboden
Dachboden (Bild 1)
Dachboden (Bild 2)
Blick auf das nördliche Dach des Anbaus
Grundriss 1. Obergeschoss
Grundriss Erdgeschoss
Grundriss Kellergeschoss