Exposé
Objektart:
Gastgewerbe
» Gastronomie
» Miete
Standort: Gastgewerbe »
Deutschland » Bayern » Ebersberg (Kreis) » Ebersberg
Einzigartige Gewerbefläche in Ebersberg – mit viel Potenzial für Ihr Konzept!
Titelbild
Angeboten von:
Zenker & Günsch Immobilien
Schleißheimer Str. 6
85221 Dachau
Deutschland
Telefon:08131-454528
Fax:08131-6665655
www.zg-immobilien.de
Ansprechpartner/in
Zenker & Günsch Immobilien GbR
Herr Dominik Wittmann
| Telefon: | 08131 / 45 45 28 |
| Fax: | 08131 6665655 |
Das Wichtigste auf einen Blick:
| Objektnummer: | 9312721 |
Preise
| Miete für das Objekt | Auf Anfrage |
| Nebenkosten | keine Angabe |
Flächen
| Gesamtfläche | 548 m² |
| Gastrofläche | 548 m² |
| Maklerprovision | 3,57 MM |
Objekt Adresse
85560 Ebersberg
Sonstige Angaben
| Letzte Modernisierung | 0 |
| Verfügbar ab | keine Angabe |
| Heizungsart | Zentralheizung |
| Wesentlicher Energieträger | Gas |
| Energieträger/Befeuerung | Gas |
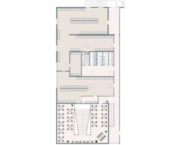
Objektbeschreibung
Diese großzügige und flexibel nutzbare Gewerbefläche im Herzen von Ebersberg bietet Ihnen ideale Voraussetzungen für eine Vielzahl von Nutzungsmöglichkeiten – ob Gastronomie, Büro, Praxis oder eine andere gewerbliche Nutzung.
Die Immobilie überzeugt durch ihre ansprechende und einladende Atmosphäre, die sich sowohl für einen klassischen Restaurantbetrieb als auch für moderne Geschäfts- oder Dienstleistungsmodelle eignet. Großzügige Raumaufteilungen, helle Flächen und ein durchdachtes Raumkonzept schaffen beste Voraussetzungen für ein hochwertiges Nutzungskonzept.
Erdgeschoss (ca. 380 m²):
- großzügige Fläche, aktuell als Gastronomie mit Vorplatz genutzt, flexibel gestaltbar
- voll ausgestattete Küche mit Spülküche
- Vorplatz und separaten Lagerflächen.
- zwei Kühlcontainer (Getränke / Lebensmittel), auch anderweitig nutzbar
- getrennte Damen- und Herren-WCs sowie ein separates Personal-WC
- große Terrasse/Außenbereich, z. B. für Außengastronomie, Ausstellungsfläche oder Kundenbereich
Obergeschoss / Dachgeschoss:
- zusätzliche ca. 95 m², ideal als Eventfläche, separater Kundenbereich, Büro oder Besprechungsraum
- Pächterwohnung mit ca. 73 m² – optional nutzbar als Büro, Personalwohnung oder Lagerfläche
Ob Sie ein charmantes Restaurant eröffnen möchten oder auf der Suche nach einer repräsentativen Gewerbefläche mit flexiblen Nutzungsmöglichkeiten sind – diese Immobilie bietet Ihnen Raum für Ihre Ideen.
HINWEISE:
- die Fläche wurde in 2024 umfassend renoviert, modernisiert und befindet sich in einem sehr guten Zustand
- angeboten wird ein indexiertes (Unter-) Pachterhältnis bis zum 14.03.2026 (mit Option um Verlängerung von 3 x 5 Jahre)
- alle Preise verstehen sich zzgl. der gesetzlichen Umsatzsteuer in Höhe von derzeit 19%
- der Energieausweis befindet sich derzeit noch in der Erstellung und wird zeitnah nachgereicht
- die Kaution beträgt 6 Monatskaltmieten
Die Immobilie überzeugt durch ihre ansprechende und einladende Atmosphäre, die sich sowohl für einen klassischen Restaurantbetrieb als auch für moderne Geschäfts- oder Dienstleistungsmodelle eignet. Großzügige Raumaufteilungen, helle Flächen und ein durchdachtes Raumkonzept schaffen beste Voraussetzungen für ein hochwertiges Nutzungskonzept.
Erdgeschoss (ca. 380 m²):
- großzügige Fläche, aktuell als Gastronomie mit Vorplatz genutzt, flexibel gestaltbar
- voll ausgestattete Küche mit Spülküche
- Vorplatz und separaten Lagerflächen.
- zwei Kühlcontainer (Getränke / Lebensmittel), auch anderweitig nutzbar
- getrennte Damen- und Herren-WCs sowie ein separates Personal-WC
- große Terrasse/Außenbereich, z. B. für Außengastronomie, Ausstellungsfläche oder Kundenbereich
Obergeschoss / Dachgeschoss:
- zusätzliche ca. 95 m², ideal als Eventfläche, separater Kundenbereich, Büro oder Besprechungsraum
- Pächterwohnung mit ca. 73 m² – optional nutzbar als Büro, Personalwohnung oder Lagerfläche
Ob Sie ein charmantes Restaurant eröffnen möchten oder auf der Suche nach einer repräsentativen Gewerbefläche mit flexiblen Nutzungsmöglichkeiten sind – diese Immobilie bietet Ihnen Raum für Ihre Ideen.
HINWEISE:
- die Fläche wurde in 2024 umfassend renoviert, modernisiert und befindet sich in einem sehr guten Zustand
- angeboten wird ein indexiertes (Unter-) Pachterhältnis bis zum 14.03.2026 (mit Option um Verlängerung von 3 x 5 Jahre)
- alle Preise verstehen sich zzgl. der gesetzlichen Umsatzsteuer in Höhe von derzeit 19%
- der Energieausweis befindet sich derzeit noch in der Erstellung und wird zeitnah nachgereicht
- die Kaution beträgt 6 Monatskaltmieten
Lage des Objektes
In der idyllischen Kleinstadt Ebersberg, eingebettet in die malerische Landschaft Oberbayerns, erwartet Ihr neues Restaurant zukünftige Gäste. Diese einzigartige Lage verbindet den Charme einer traditionellen bayerischen Gemeinde mit der Nähe zur pulsierenden Metropole München – und bietet somit eine perfekte Gelegenheit für einen erfolgreichen Gastronomiebetrieb.
Hochfrequentierte Lage und regionale Attraktivität
Ebersberg liegt nur etwa 30 Kilometer östlich von München und ist ein beliebtes Ziel für Naturliebhaber und Ausflügler. Das Restaurant befindet sich in unmittelbarer Nähe des historischen Stadtkerns und der Wallfahrtskirche St. Sebastian, ein Wahrzeichen der Stadt, das jährlich zahlreiche Besucher anzieht. Ebenso umgeben von charmanten Wohnvierteln und einem dynamischen lokalen Publikum, bietet sich hier eine erstklassige Frequenz an Gästen – sowohl aus der Region als auch von Touristen.
Perfekte Erreichbarkeit und Anbindung
Neben der charmanten Kleinstadtatmosphäre punktet der Standort auch mit einer hervorragenden Erreichbarkeit. Der Bahnhof von Ebersberg ist nur wenige Gehminuten entfernt und sorgt für eine direkte Anbindung nach München und die umliegenden Regionen. Zudem laden zahlreiche Wanderwege durch den Ebersberger Forst und entlang idyllischer Seen zum Verweilen ein – perfekt, um Wanderer, Radfahrer und Ausflügler als Gäste zu gewinnen.
Einzigartiges Potenzial für Ihren Traum in der Gastronomie
Egal ob als Traditionsgaststätte, modernes Restaurant oder vielseitige Eventlocation – dieses Lokal bietet Ihnen alle Möglichkeiten, um Ihr gastronomisches Konzept in einer florierenden Region zu verwirklichen. Nutzen Sie die hervorragende Lage in einer beliebten Ausflugsregion und profitieren Sie von der Beliebtheit des Standorts sowie der Nähe zu München.
Hochfrequentierte Lage und regionale Attraktivität
Ebersberg liegt nur etwa 30 Kilometer östlich von München und ist ein beliebtes Ziel für Naturliebhaber und Ausflügler. Das Restaurant befindet sich in unmittelbarer Nähe des historischen Stadtkerns und der Wallfahrtskirche St. Sebastian, ein Wahrzeichen der Stadt, das jährlich zahlreiche Besucher anzieht. Ebenso umgeben von charmanten Wohnvierteln und einem dynamischen lokalen Publikum, bietet sich hier eine erstklassige Frequenz an Gästen – sowohl aus der Region als auch von Touristen.
Perfekte Erreichbarkeit und Anbindung
Neben der charmanten Kleinstadtatmosphäre punktet der Standort auch mit einer hervorragenden Erreichbarkeit. Der Bahnhof von Ebersberg ist nur wenige Gehminuten entfernt und sorgt für eine direkte Anbindung nach München und die umliegenden Regionen. Zudem laden zahlreiche Wanderwege durch den Ebersberger Forst und entlang idyllischer Seen zum Verweilen ein – perfekt, um Wanderer, Radfahrer und Ausflügler als Gäste zu gewinnen.
Einzigartiges Potenzial für Ihren Traum in der Gastronomie
Egal ob als Traditionsgaststätte, modernes Restaurant oder vielseitige Eventlocation – dieses Lokal bietet Ihnen alle Möglichkeiten, um Ihr gastronomisches Konzept in einer florierenden Region zu verwirklichen. Nutzen Sie die hervorragende Lage in einer beliebten Ausflugsregion und profitieren Sie von der Beliebtheit des Standorts sowie der Nähe zu München.
Sonstige Informationen
Wir hoffen Ihr Interesse geweckt zu haben und freuen uns auf Ihre Anfrage.
Für weitere Rückfragen oder zur Vereinbarung eines Besichtigungstermins stehen unsere Herren Wittmann und Diller jederzeit gerne zur Verfügung.
Impression
Impression
Erdgeschoss
Obergeschoss