Exposé
Objektart:
Büro / Praxen
» Bueroflaeche
» Miete
Standort: Büro / Praxen »
Deutschland » Bayern » München, Landeshauptstadt (Kreis) » München
Repräsentatives Altbaubüro ruhig und lichtdurchflutet
Arbeitszimmer 1
Das Wichtigste auf einen Blick:
| Objektnummer: | 9312367 |
Preise
| Kaltmiete (netto) | 4.200 € |
| Nebenkosten | 170 € |
Flächen
| Gesamtfläche | 162 m² |
| Bürofläche | 162 m² |
| Maklerprovision | keine Provision, courtagefrei |
Objekt Adresse
Karl-Theodor-Strasse 18
80803 München
- Bayern
Sonstige Angaben
| Baujahr | 1938 |
| Verfügbar ab | nach Absprache |
| Anzahl der Etagen im Haus | 2 |
| Inserat befindet sich im Stockwerk | 0 |
| Küche | Einbauküche |
| Bad | Dusche |
| Boden | Fliesen, Teppich, Parkett |
| Garten | Ja |
| Keller | Ja |
| Heizungsart | Zentralheizung |
| Energieträger/Befeuerung | Öl |
Objektbeschreibung
In ruhiger, idyllischer Hoflage einer frisch renovierten Altbauvilla (1938) zwischen Münchner Freiheit und Bonner Platz bieten wir
Ihnen ein besonders stilvolles Büro zur Miete – provisionsfrei.
Die Räume überzeugen durch hohe Decken (bis 3 m), große Fenster in drei Himmelsrichtungen und eine Kombination aus
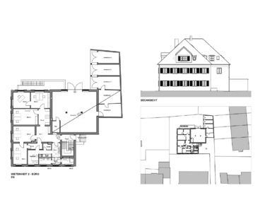
historischem Charme und moderner Ausstattung. Passend für Kanzleien, Therapieräume oder sonstige Büroräume. Zwei der Räume sind miteinander verbunden. Sieg Grundriss.
Objektzustand: Erstbezug nach Sanierung
Ihnen ein besonders stilvolles Büro zur Miete – provisionsfrei.
Die Räume überzeugen durch hohe Decken (bis 3 m), große Fenster in drei Himmelsrichtungen und eine Kombination aus
historischem Charme und moderner Ausstattung. Passend für Kanzleien, Therapieräume oder sonstige Büroräume. Zwei der Räume sind miteinander verbunden. Sieg Grundriss.
Objektzustand: Erstbezug nach Sanierung
Ausstattung
Garten, Keller, Duschbad, Einbauküche, Gäste-WC, Parkett, Teppichboden, Fliesen, Sonstiges (s. Text)
Bemerkungen:
5 helle Büroräume
Teilweise Fischgrätparkett (Eiche), teilweise hochwertige Teppichfliesen (Interface)
Original Terrazzoboden im Flur
Zwei moderne Bäder, eines mit Dusche
Büroküche mit Essbereich
Neu verlegte CAT-6-Datenverkabelung, Glasfaser im Haus
Energieausweis liegt bei Vermietung vor.
Bemerkungen:
5 helle Büroräume
Teilweise Fischgrätparkett (Eiche), teilweise hochwertige Teppichfliesen (Interface)
Original Terrazzoboden im Flur
Zwei moderne Bäder, eines mit Dusche
Büroküche mit Essbereich
Neu verlegte CAT-6-Datenverkabelung, Glasfaser im Haus
Energieausweis liegt bei Vermietung vor.
Lage des Objektes
Zentrale und dennoch ruhige Lage in München-Schwabing. Das Rückgebäude befindet sich in einem kleinen Garten. Es sind nur wenige Gehminuten zu den U-Bahnstationen Münchner Freiheit
und Bonner Platz. Cafés, Restaurants und Einkaufsmöglichkeiten in der Nähe. Auf Wunsch kann ein kleiner Außenbereich zur Benutzung ausgewiesen werden. Ebenso könnte ein Stellplatz vermietet werden.
Infrastruktur (im Umkreis von 5 km):
Apotheke, Lebensmittel-Discount, Allgemeinmediziner, Kindergarten, Grundschule, Realschule, Gymnasium, Öffentliche Verkehrsmittel
und Bonner Platz. Cafés, Restaurants und Einkaufsmöglichkeiten in der Nähe. Auf Wunsch kann ein kleiner Außenbereich zur Benutzung ausgewiesen werden. Ebenso könnte ein Stellplatz vermietet werden.
Infrastruktur (im Umkreis von 5 km):
Apotheke, Lebensmittel-Discount, Allgemeinmediziner, Kindergarten, Grundschule, Realschule, Gymnasium, Öffentliche Verkehrsmittel
Sonstige Informationen
Heizungsart: Zentralheizung
Energieträger: Öl
Energieausweis nicht vorhanden
Makleranfragen nicht erwünscht. Nach § 7 UWG sind unaufgeforderte Kontaktaufnahmen durch Makler ohne ausdrückliche Einwilligung des Empfängers verboten!
ohne-makler (OM) ist weder Anbieter noch Vermittler der Immobilie. OM betreibt eine Plattform für Immobilieneigentümer, die unter anderem die gleichzeitige Veröffentlichung einzelner Inserate auf mehreren Immobilienportalen ermöglicht. Die Inhalte dieser Inserate werden ausschließlich von Dritten verantwortet. Für die Richtigkeit, Vollständigkeit oder Rechtmäßigkeit der Angaben übernimmt OM keine Haftung. Hinweise auf mögliche Rechtsverstöße können jederzeit gemeldet werden und werden nach Prüfung umgehend bearbeitet.
Duschbad
Bad
Arbeitszimmer 1 &2
Flur
Arbeitszimmer Eßbereich
Arbeitszimmer 3
Arbeitszimmer 3
Arbeitszimmer 4
Arbeitszimmer 4 &5
Detail
Detail
Grundriss