Exposé
Objektart:
Büro / Praxen
» Buerohaus
» Miete
Standort: Büro / Praxen »
Deutschland » Niedersachsen » Emsland (Kreis) » Papenburg
Moderne und Tradition - Repräsentatives Bürogebäude in top Lage
Schriftzug für Internetbild
Das Wichtigste auf einen Blick:
| Objektnummer: | 9312192 |
Preise
| Nebenkosten | 0 € |
| Mietpreis pro m² | 0 € |
| Kaufpreis pro m² | 0 € |
Flächen
| Nutzfläche | 31 m² |
| Gesamtfläche | 898 m² |
| Bürofläche | 632 m² |
| Fläche Sonstiges | 227 m² |
| Fläche teilbar ab | 289 m² |
Objekt Adresse
26871 Papenburg
Sonstige Angaben
| Baujahr | 1930 |
| Zimmer | 26 |
| Verfügbar ab | 01.04.2026 oder Später |
| Anzahl der Etagen im Haus | 3 |
| Küche | Einbauküche |
| Boden | Fliesen, Teppich |
| Baujahr (laut Energieausweis) | 1930 |
| Wesentlicher Energieträger | Erdgas Leicht |
| Energieträger/Befeuerung | Gas |
Objektbeschreibung
Repräsentatives Bürogebäude in 1A-Lage von Papenburg – moderne Arbeitswelten in historischem Ambiente
In absoluter Top-Lage von Papenburg präsentiert sich dieses eindrucksvolle Bürogebäude als perfekte Symbiose aus Tradition und Moderne. Der Ursprung des Gebäudes geht auf das Jahr 1930 zurück, wurde jedoch im Laufe der Jahre umfassend modernisiert und durch einen zeitgemäßen Anbau von 2009 erweitert. So entstand ein repräsentatives Ensemble, das sowohl architektonisch als auch funktional höchsten Ansprüchen gerecht wird.
Mit einer Gesamtfläche von rund 898 m² und einer Bürofläche von ca. 632 m² bietet das Gebäude optimale Bedingungen für Unternehmen, Praxen oder Dienstleister, die Wert auf Qualität, Lage und eine angenehme Arbeitsatmosphäre legen.
Bereits beim Betreten des Hauses spürt man den besonderen Charakter dieses Objektes. Großzügige Eingangsbereiche mit hochwertigen Fliesenböden, helle Räume und eine durchdachte Grundrissgestaltung schaffen ein repräsentatives und zugleich funktionales Umfeld. Das Gebäude erstreckt sich über drei Etagen, wobei jede Etage eine abgeschlossene Mieteinheit mit separaten Damen- und Herren-WCs darstellt.
Die Räume sind hell, freundlich und flexibel nutzbar – ideal für Einzel- oder Großraumbüros, Praxisräume, Schulungs- oder Beratungsflächen. Die hochwertigen Teppichböden in den Büroräumen, kombiniert mit modernen Deckenleuchten und großen Fensterflächen, schaffen ein angenehmes Arbeitsklima.
Der Anbau von 2009 ergänzt das historische Hauptgebäude perfekt und ist zusätzlich mit einer Klimaanlage ausgestattet – ideal für die warmen Sommermonate und höchsten Komfort.
Dank der neuen Erdgasheizung aus 2023 ist das Objekt zudem auf einem modernen energetischen Stand. Die laufenden Nebenkosten sind mit rund 1.000 € monatlich für das gesamte Gebäude moderat und transparent kalkuliert.
Möbel und Ausstattungselemente können auf Wunsch übernommen werden, sodass ein unkomplizierter Einzug oder eine sofortige Nutzung möglich ist.
In absoluter Top-Lage von Papenburg präsentiert sich dieses eindrucksvolle Bürogebäude als perfekte Symbiose aus Tradition und Moderne. Der Ursprung des Gebäudes geht auf das Jahr 1930 zurück, wurde jedoch im Laufe der Jahre umfassend modernisiert und durch einen zeitgemäßen Anbau von 2009 erweitert. So entstand ein repräsentatives Ensemble, das sowohl architektonisch als auch funktional höchsten Ansprüchen gerecht wird.
Mit einer Gesamtfläche von rund 898 m² und einer Bürofläche von ca. 632 m² bietet das Gebäude optimale Bedingungen für Unternehmen, Praxen oder Dienstleister, die Wert auf Qualität, Lage und eine angenehme Arbeitsatmosphäre legen.
Bereits beim Betreten des Hauses spürt man den besonderen Charakter dieses Objektes. Großzügige Eingangsbereiche mit hochwertigen Fliesenböden, helle Räume und eine durchdachte Grundrissgestaltung schaffen ein repräsentatives und zugleich funktionales Umfeld. Das Gebäude erstreckt sich über drei Etagen, wobei jede Etage eine abgeschlossene Mieteinheit mit separaten Damen- und Herren-WCs darstellt.
Die Räume sind hell, freundlich und flexibel nutzbar – ideal für Einzel- oder Großraumbüros, Praxisräume, Schulungs- oder Beratungsflächen. Die hochwertigen Teppichböden in den Büroräumen, kombiniert mit modernen Deckenleuchten und großen Fensterflächen, schaffen ein angenehmes Arbeitsklima.
Der Anbau von 2009 ergänzt das historische Hauptgebäude perfekt und ist zusätzlich mit einer Klimaanlage ausgestattet – ideal für die warmen Sommermonate und höchsten Komfort.
Dank der neuen Erdgasheizung aus 2023 ist das Objekt zudem auf einem modernen energetischen Stand. Die laufenden Nebenkosten sind mit rund 1.000 € monatlich für das gesamte Gebäude moderat und transparent kalkuliert.
Möbel und Ausstattungselemente können auf Wunsch übernommen werden, sodass ein unkomplizierter Einzug oder eine sofortige Nutzung möglich ist.
Ausstattung
Ausstattung & Zustand
Das Gebäude befindet sich in einem ausgezeichneten, gepflegten Zustand.
Hervorzuheben sind unter anderem:
- Hochwertige Teppichböden in allen Büroräumen
- Fliesenböden in Eingangs- und Flurbereichen
- Neue Erdgasheizung (2023)
- Klimatisierte Räume im Anbau
- Moderne Elektroinstallation und Netzwerkverkabelung
- Großzügige Fensterflächen für lichtdurchflutete Räume
- Separate Sanitärräume (Damen/Herren) auf jeder Etage
- Möblierung auf Wunsch übernehmbar
Das Gebäude strahlt Professionalität aus und ist so konzipiert, dass sich Mitarbeiter, Kunden und Patienten gleichermaßen wohlfühlen. Ein Bürogebäude mit Charakter, Komfort und Potenzial – hier verbinden sich repräsentative Architektur, moderne Ausstattung und eine Top-Lage zu einer Immobilie, die in Papenburg ihresgleichen sucht. Ob Arztpraxis, Dienstleistungsbüro oder Unternehmenszentrale: Dieses Objekt bietet den idealen Rahmen für anspruchsvolle Mieter, die ihren Standort bewusst wählen.
Das Gebäude befindet sich in einem ausgezeichneten, gepflegten Zustand.
Hervorzuheben sind unter anderem:
- Hochwertige Teppichböden in allen Büroräumen
- Fliesenböden in Eingangs- und Flurbereichen
- Neue Erdgasheizung (2023)
- Klimatisierte Räume im Anbau
- Moderne Elektroinstallation und Netzwerkverkabelung
- Großzügige Fensterflächen für lichtdurchflutete Räume
- Separate Sanitärräume (Damen/Herren) auf jeder Etage
- Möblierung auf Wunsch übernehmbar
Das Gebäude strahlt Professionalität aus und ist so konzipiert, dass sich Mitarbeiter, Kunden und Patienten gleichermaßen wohlfühlen. Ein Bürogebäude mit Charakter, Komfort und Potenzial – hier verbinden sich repräsentative Architektur, moderne Ausstattung und eine Top-Lage zu einer Immobilie, die in Papenburg ihresgleichen sucht. Ob Arztpraxis, Dienstleistungsbüro oder Unternehmenszentrale: Dieses Objekt bietet den idealen Rahmen für anspruchsvolle Mieter, die ihren Standort bewusst wählen.
Lage des Objektes
Das Bürogebäude befindet sich in einer begehrten, zentralen Lage von Papenburg, einer Stadt, die für ihre maritime Geschichte und wirtschaftliche Stärke bekannt ist. Die Anbindung an das örtliche Verkehrsnetz ist hervorragend – ob mit dem Auto, dem Fahrrad oder öffentlichen Verkehrsmitteln.
Im direkten Umfeld befinden sich zahlreiche Einzelhandelsgeschäfte, Restaurants, Banken und medizinische Einrichtungen, was die Lage sowohl für Mitarbeiter als auch für Kunden äußerst attraktiv macht. Parkmöglichkeiten sind in der näheren Umgebung ausreichend vorhanden.
Papenburg ist als Wirtschaftsstandort stark etabliert und bietet Unternehmen ein positives Umfeld mit wachsendem Dienstleistungssektor, innovativer Infrastruktur und einem hohen Lebenswert.
Im direkten Umfeld befinden sich zahlreiche Einzelhandelsgeschäfte, Restaurants, Banken und medizinische Einrichtungen, was die Lage sowohl für Mitarbeiter als auch für Kunden äußerst attraktiv macht. Parkmöglichkeiten sind in der näheren Umgebung ausreichend vorhanden.
Papenburg ist als Wirtschaftsstandort stark etabliert und bietet Unternehmen ein positives Umfeld mit wachsendem Dienstleistungssektor, innovativer Infrastruktur und einem hohen Lebenswert.
Sonstige Informationen
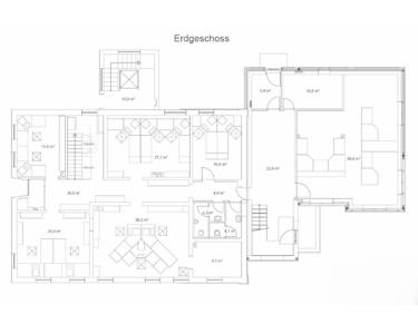
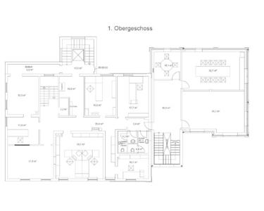
Flächenaufteilung:
Erdgeschoss:
Bürofläche - 8 Räumen ca. 199,20 m²
Nutzflächen ca. 8,30 m²
Verkehrsflächen (Flure) ca. 88,60 m²
1.Obergeschoss:
Bürofläche - 11 Räumen ca. 211,0 m²
Nutzflächen ca. 10,80 m²
Verkehrsflächen (Flure) ca. 84,70 m²
2.Obergeschoss:
Bürofläche - 6 Räumen ca. 222,20 m²
Nutzflächen ca. 12,40 m²
Verkehrsflächen (Flure) ca. 54,60 m²
Die Raumstruktur bietet zahlreiche Möglichkeiten für Einzelmieter oder mehrere Parteien. Jede Etage kann bei Bedarf eigenständig vermietet werden, wodurch sich das Objekt auch ideal für gemeinschaftlich genutzte Geschäftsgebäude oder medizinische Versorgungszentren eignet.
Modernisiertes Gebäude von 1930
Anbau 2014
Hausansicht
Hausansicht hinten mit Stellplätzen
PKW-Stellplätze
Fahrradstellplätze
Büro
Besprechungsram
Besprechnungsraum
Flur
Flur
Flur
Treppenaufgang
Büro
Flur
Grundriss EG
Grundriss 1.OG
Grundriss 2.OG