Exposé
Objektart:
Haus
» Doppelhaushaelfte
» Kauf
Standort: Haus »
Deutschland » Baden-Württemberg » Rastatt (Kreis) » Bühl , Baden
*** Angebot für eine Doppelhaushälfte in KfW-EE-40***
Doppelhaus -Ansicht
Angeboten von:
1.2.3. Bauberatung - Horst Hellman
Bahnhofstr. 66
76751 Jockgrim
Telefon:01727689327
Fax:072719812221
Ansprechpartner/in
Herr Horst Hellmann| Telefon: | +49 172 7689327 |
| Mobil | +49 172 7689327 |
| Fax: | +49 7271 9812221 |
Das Wichtigste auf einen Blick:
| Objektnummer: | 9311605 |
Preise
| Kaufpreis | 391.100 € |
| Nebenkosten | keine Angabe |
Flächen
| Wohnfläche | 114,98 m² |
| Nutzfläche | 122,8 m² |
| Grundstücksfläche | 309 m² |
Objekt Adresse
77815 Bühl , Baden
- Baden-Württemberg
Sonstige Angaben
| Baujahr | 2026 |
| Zimmer | 3 |
| Verfügbar ab | keine Angabe |
| Bad | 1 |
| Anzahl der Etagen im Haus | 2 |
| Küche | Offene Küche |
| Bad | 1 |
| Bad | Dusche, Wanne, Fenster |
| Boden | Fliesen, Estrich |
| Heizungsart | Fußbodenheizung |
| Energieträger/Befeuerung | Luft-Wärme-Pumpe |
Objektbeschreibung
Ihre energieffiziente, neue Doppelhaushälfte!!!
Auf gute Nachbarschaft: Gemeinsam bauen
Dieses moderne Doppelhaus fällt durch die Gestaltung der Carports auch als optisch dominante Eingangsüberdachung sofort ins Auge. Bauen Sie das Doppelhaus zusammen mit symphatischen Baupartnern oder bauen Sie es allein und vermieten die zweite Doppelhaushälfte.
Vielleicht wollen auch die Eltern oder erwachsenen Kinder ganz nah und doch getrennt mit Privatspäre bei Ihnen wohnen?
Innen bieten die Doppelhaushälften die klassische Planung:
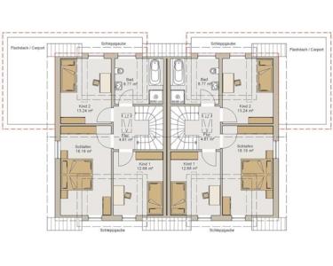
Unten wird gewohnt, die Schlafzimmer sind oben, wobei das Elternschlafzimmer mit 18 m² besonders groß geplant wurde.
Die Doppelhaushälfte wird im Energeieffizienzstandard EE 40 erstellt.
Auf gute Nachbarschaft: Gemeinsam bauen
Dieses moderne Doppelhaus fällt durch die Gestaltung der Carports auch als optisch dominante Eingangsüberdachung sofort ins Auge. Bauen Sie das Doppelhaus zusammen mit symphatischen Baupartnern oder bauen Sie es allein und vermieten die zweite Doppelhaushälfte.
Vielleicht wollen auch die Eltern oder erwachsenen Kinder ganz nah und doch getrennt mit Privatspäre bei Ihnen wohnen?
Innen bieten die Doppelhaushälften die klassische Planung:
Unten wird gewohnt, die Schlafzimmer sind oben, wobei das Elternschlafzimmer mit 18 m² besonders groß geplant wurde.
Die Doppelhaushälfte wird im Energeieffizienzstandard EE 40 erstellt.
Ausstattung
Unser Angebot beinhaltet das Grundstück und 1 Doppelhaushälfte 38-119-125 inkl. gemäß Bau-und Leistungsbeschreibung.
Dieses Haus - von unserem Herrsteller: Keitel-Haus GmbH wird in Ausbaustufe 3 (Fast Fertig) angeboten.
In der Ausstattung „Fast Fertig“ sind bei KEITEL-Haus entscheidende Mehrleistungen wie folgt schon im Standard der Bauleistungsbeschreibung (BLB) enthalten.
* Architektenleistung & Statik
* Bodenplatte mit seitlicher Perimeterdämmung und Erdungsband
* Ausstattung: Gehoben
* Heizungsart: Wärmepumpentechnik
* Estrich und Fußbodenheizung
* Außenputz (farbig ohne Mehrpreis)
* Trockenbau
* Pfettendach aus KVH (Konstruktions- Vollholz)
* Dachsteine (Firma Braas u.a.)
* Dachrinnen und Regenfallrohre
* Innen- und Außenfensterbänke aus Marmor
* Aluminium Rollläden
* Treppenanlage aus Vollholz- Buche
* Bodeneinschubtreppe
* Sicherheits-Thermohaustür (farbig!) in RCN2
* Fenster mit Pilzkopfverriegelung, 3-fach-Verglasung (6 Kammer Profile)
* Elektroausstattung (Smarthome auf Anfrage)
* Heizung-Sanitär-Rohmontage & Endmontage
* Sanitärobjekte und Fliesenarbeiten in Bad, Gäste-WC und Hauswirtschaftsraum
* Bodengleiche- geflieste Dusche (ohne Duschtasse!)
* Wärme- und Schalldämmung
* Höchster Individualisierungsgrad
* Blower- Door Test nach DIN 13829 für EnEV - Abnahmemessungen aus DIN V 4108-7 durch.
* Statik
* Miet-Bautoiletten und Arbeitsschutzgerüste
* Bemusterung in eigener Ausstellung in Rot am See/Brettheim
* 360° Betreuung vom Erstkontakt bis zum Einzug.
* In allen unseren Häusern werden nur hochwertige Markenprodukte von namhaften Herstellern verwendet.
* Endabnahme durch einen unabhängigen Sachverständigen.
+ Die dargestellten Grundrisse können ohne Mehrkosten individuell umgeplant werden insofern die Gesamtwohnfläche gleich bleibt.
+ Die Gesamtwohnfläche (größer oder kleiner) kann gegen Preiskorrektur (+/-) geändert angeboten werden.
Zu erbringende Eigenleistungen sind:
- Tapezier- und Malerarbeiten/Spachtelarbeiten,
- Bodenbeläge (Bad, Gäste-WC & Technikraum sind bereits gefliest!!!)
- Innentüren.
Dieses Haus - von unserem Herrsteller: Keitel-Haus GmbH wird in Ausbaustufe 3 (Fast Fertig) angeboten.
In der Ausstattung „Fast Fertig“ sind bei KEITEL-Haus entscheidende Mehrleistungen wie folgt schon im Standard der Bauleistungsbeschreibung (BLB) enthalten.
* Architektenleistung & Statik
* Bodenplatte mit seitlicher Perimeterdämmung und Erdungsband
* Ausstattung: Gehoben
* Heizungsart: Wärmepumpentechnik
* Estrich und Fußbodenheizung
* Außenputz (farbig ohne Mehrpreis)
* Trockenbau
* Pfettendach aus KVH (Konstruktions- Vollholz)
* Dachsteine (Firma Braas u.a.)
* Dachrinnen und Regenfallrohre
* Innen- und Außenfensterbänke aus Marmor
* Aluminium Rollläden
* Treppenanlage aus Vollholz- Buche
* Bodeneinschubtreppe
* Sicherheits-Thermohaustür (farbig!) in RCN2
* Fenster mit Pilzkopfverriegelung, 3-fach-Verglasung (6 Kammer Profile)
* Elektroausstattung (Smarthome auf Anfrage)
* Heizung-Sanitär-Rohmontage & Endmontage
* Sanitärobjekte und Fliesenarbeiten in Bad, Gäste-WC und Hauswirtschaftsraum
* Bodengleiche- geflieste Dusche (ohne Duschtasse!)
* Wärme- und Schalldämmung
* Höchster Individualisierungsgrad
* Blower- Door Test nach DIN 13829 für EnEV - Abnahmemessungen aus DIN V 4108-7 durch.
* Statik
* Miet-Bautoiletten und Arbeitsschutzgerüste
* Bemusterung in eigener Ausstellung in Rot am See/Brettheim
* 360° Betreuung vom Erstkontakt bis zum Einzug.
* In allen unseren Häusern werden nur hochwertige Markenprodukte von namhaften Herstellern verwendet.
* Endabnahme durch einen unabhängigen Sachverständigen.
+ Die dargestellten Grundrisse können ohne Mehrkosten individuell umgeplant werden insofern die Gesamtwohnfläche gleich bleibt.
+ Die Gesamtwohnfläche (größer oder kleiner) kann gegen Preiskorrektur (+/-) geändert angeboten werden.
Zu erbringende Eigenleistungen sind:
- Tapezier- und Malerarbeiten/Spachtelarbeiten,
- Bodenbeläge (Bad, Gäste-WC & Technikraum sind bereits gefliest!!!)
- Innentüren.
Lage des Objektes
Das Grundstück befindet sich in Bühl, OT Moos.
Das Grundstück ist über einen externen Partner/Makler/Eigentümer zu erwerben.
Das Grundstück ist, nach Auskunft des Verkäufers erschlossen. Das Grundstück ist sofort bebaubar.
Es handelt sich um ein Grundstück in Erbpacht.
Bitte haben Sie Verständnis, dass wir ohne ein persönliches Gespräch über das Haus keine Grundstücksdaten weiterleiten.
Sie haben bereits ein Grundstück? Dann lassen Sie sich beraten, wie wir Ihre Hausbauwünsche erfüllen können.
Sie möchten ein anderes Haus auf diesem Grundstück, oder Sie möchten ein anderes Grundstück zu diesem Haus? Dann rufen Sie uns einfach an - wir beraten Sie sehr gerne.
Das Grundstück ist über einen externen Partner/Makler/Eigentümer zu erwerben.
Das Grundstück ist, nach Auskunft des Verkäufers erschlossen. Das Grundstück ist sofort bebaubar.
Es handelt sich um ein Grundstück in Erbpacht.
Bitte haben Sie Verständnis, dass wir ohne ein persönliches Gespräch über das Haus keine Grundstücksdaten weiterleiten.
Sie haben bereits ein Grundstück? Dann lassen Sie sich beraten, wie wir Ihre Hausbauwünsche erfüllen können.
Sie möchten ein anderes Haus auf diesem Grundstück, oder Sie möchten ein anderes Grundstück zu diesem Haus? Dann rufen Sie uns einfach an - wir beraten Sie sehr gerne.
Sonstige Informationen
INDIVIDUELLE TRAUMHÄUSER
Ihre Vorteile:
* Festpreisgarantie 18 Monate
* Alle Häuser sind bereits im Standard mehr als 50 % besser als es die ENEV-Anforderungen
* Ausstattung mit deutschen Markenprodukten
* Individuelles Bauen nach Ihren Wünschen
* mehr als 1.000 Haustypen: schlüsselfertig, energieeffizient - in zertifizierter Qualität.
* wirtschaftliche Planungssicherheit für Sie
* Alles aus einer Hand
DH-238-38-125_Erdgeschoss
DH-238-38-125_Obergeschoss