Exposé
Objektart:
Wohnung
» Etage
» Miete
Standort: Wohnung »
Deutschland » Sachsen » Weißeritzkreis (Kreis) » Freital
3-Raum-Wohnung mit neuem Bad vor Einzug!
Außenansicht
Das Wichtigste auf einen Blick:
| Objektnummer: | 9306982 |
Preise
| Warmmiete | 637 € |
| Kaltmiete (netto) | 408 € |
| Nebenkosten | 99 € |
Flächen
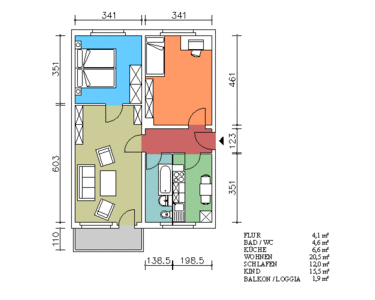
| Wohnfläche | 65,2 m² |
Objekt Adresse
Glück-Auf-Str. 7a
01705 Freital
- Sachsen
Sonstige Angaben
| Baujahr | 1977 |
| Letzte Modernisierung | 2003 |
| Zimmer | 3 |
| Verfügbar ab | nach Renovierung |
| Inserat befindet sich im Stockwerk | 4 |
| Bad | Wanne, Fenster |
| Boden | Linoleum |
| Balkone | 1 |
| Keller | Ja |
| Energieausweistyp | Verbrauch |
| Gültig bis | 2028-07-09 |
| Energieverbrauchkennwert | 98,90 kWh/(m²*a) |
| Energieträger/Befeuerung | Fernwärme |
Objektbeschreibung
Das Objekt liegt im Wohngebiet Freital-Zauckerode. Neben mehreren Kindertageseinrichtungen gibt es ein Ärztehaus sowie Einkaufsmöglichkeiten und eine Schule sowie ein Parkhaus.
Ausstattung
Badmodernisierung vor Neubezug,erneuerte Innentüren, zentrale WW-Versorgung im Objekt, Groß-Antennengemeinschaft+schnelles Internet im Wohngebiet verfügbar, Tür-Wechselsprechanlage
Lage des Objektes
Freital, eine freundliche Stadt, liegt eingebettet zwischen den sanften Ausläufern des östlichen Erzgebirges und unmittelbar vor den Toren der Kunst- und Kulturmetropole Dresden. Das Wahrzeichen der Stadt ist der Windberg. Erholung können Sie finden im 'Freizeit-/Erholungszentrum HAINS', bei einer gemütlichen Fahrt mit der Weißeritztalbahn, bei einem Besuch im Schloss Burgk, wo man sich über die Bergbautradition von Freital informieren kann, oder bei einer Wanderung durch das schöne Umland. Die Stadt Freital entwickelte sich in den letzten Jahren zu einem reizvollen Standort der Industrie und des Gewerbes, des Wohnens und der Freizeit. Die weitere Umgebung ist mit der S-Bahn, dem Bus oder dem eigenen Auto (Dresden-Zentrum in ca. 15 min) leicht erreichbar. In weniger als einer Stunde, bei einer schönen Fahrt durch das Elbtal, gelangt man entweder nach Meißen oder in die Sächsische Schweiz. Einkaufsmöglichkeiten sind verteilt im gesamten Stadtgebiet ausreichend vorhanden. In der Nähe befindlich: Grundschule, Realschule, Hauptschule, Gymnasium, Kindertagesstätte, Nahverkehrsanbindung, Einkaufsmöglichkeit.
Sonstige Informationen
Bad mit Wanne, Bad mit Fenster, Boden: Fliesen/Stein
separate Küche, Küche mit Fenster, Anschluss für Elektroherd u. Geschirrspüler
Trocknen im Hof, Trockenraum (Keller)
PVC-Belag (außer Bad), Balkon, Fernwärme, Abstell: Keller, 18 Monate Mietbindung
Grundriss: Alle Maße (in cm) können abweichen und sind in der Wohnung zu überprüfen! Die von uns gemachten Angaben haben wir nach bestem Wissen und Gewissen und den uns vorliegenden Informationen zusammengestellt. Eine Gewähr für diese Angaben können wir nicht übernehmen. Wichtige Zahlen und Informationen sind am Objekt zu überprüfen und ggf. vom Vermieter schriftlich zu bestätigen. Zwischenvermietung bleibt vorbehalten.
Es wird eine Beitrittsgebühr iHv. 25 € erhoben.
Außenansicht
Grundriss
2708081-Kinderzimmer
2708091-Küche
2708111-Wohnzimmer
2708121-Schlafzimmer