Exposé
Objektart:
Büro / Praxen
» Buerohaus
» Miete
Standort: Büro / Praxen »
Deutschland » Sachsen » Leipzig, Stadt (Kreis) » Leipzig
BUERO.flächen im BLAUEN HECHT
Außenansicht
Das Wichtigste auf einen Blick:
| Objektnummer: | 9306893 |
Preise
| Miete für das Objekt | Auf Anfrage |
| Nebenkosten | keine Angabe |
| Mietpreis pro m² | 15 € |
Flächen
| Bürofläche | 752,88 m² |
| Bürofläche | 537,7 m² |
| Fläche teilbar ab | 537,7 m² |
| Maklerprovision | provisionsfrei |
Objekt Adresse
Nikolaistraße 39-45
04109 Leipzig
Sonstige Angaben
| Verfügbar ab | keine Angabe |
Objektbeschreibung
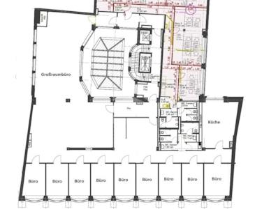
Das Geschäftshaus mit dem markanten Namen erhielt diesen von dem damals ansässigen Gasthof ZUM BLAUEN HECHT. Heute verfügt das liebevoll sanierte und hochwertig ausgestattete Geschäftshaus über Ladenflächen im Erdgeschoss und Büroflächen in den Obergeschossen. Die Büroetagen werden durch zwei Aufzugsanlagen und über zwei Treppenhäuser erschlossen. Die hellen loftartigen Flächen sind individuell nach dem Raumprofil des Mieters aufteilbar und eignen sich sowohl für eine Einzelraumaufteilung als auch ein großzügiges Großraumbüro.
Aktuell stehen im Objekt folgende Flächen zur Anmietung zur Verfügung:
- ca. 152, 89m² Ladenfläche im Erdgeschoss
- ca. 752,88 m² im 3.Obergeschoss teilbar ab 256,87m²
- ca. 721,10m² im 5. Obergeschoss
Die Flächen verfügt über folgende Grundausstattung:
- Datenverkabelung in Bodentanks
- großer Küchen & Aufenthaltsbereich
- getrennte Sanitäranlagen
- teilweise Klimatisierung vorhanden oder Nachrüstung möglich
PKW-Stellplätze stehen in den umliegenden Tiefgaragen zur Anmietung zur Verfügung.
Aktuell stehen im Objekt folgende Flächen zur Anmietung zur Verfügung:
- ca. 152, 89m² Ladenfläche im Erdgeschoss
- ca. 752,88 m² im 3.Obergeschoss teilbar ab 256,87m²
- ca. 721,10m² im 5. Obergeschoss
Die Flächen verfügt über folgende Grundausstattung:
- Datenverkabelung in Bodentanks
- großer Küchen & Aufenthaltsbereich
- getrennte Sanitäranlagen
- teilweise Klimatisierung vorhanden oder Nachrüstung möglich
PKW-Stellplätze stehen in den umliegenden Tiefgaragen zur Anmietung zur Verfügung.
Lage des Objektes
Die zentrale Lage und das gewachsene, vielfältige Umfeld haben die historische Innenstadt zu einem der beliebtesten Bürostandorte werden lassen. Alle wichtigen Einrichtungen wie das Neue Rathaus, die verschiedensten Banken, die Leipziger Universität und der fußläufig erreichbare Hauptbahnhof sind von hier aus innerhalb weniger Minuten zu erreichen. Über den Innenstadtring und die B2 sind sowohl die Autobahnanbindungen als auch diverse Stadtteile gut zu erreichen. Im Objekt haben sich bereits die unterschiedlichsten Branchen angesiedelt.
Sonstige Informationen
Der Mietpreis richtet sich nach Ausstattung, Mietvertragslaufzeit und Lage im Objekt und liegt ca. zwischen 15,00 und 17,00 EUR/m² zzgl. Nebenkosten. Gern unterbreiten wir Ihnen Ihr persönliches Mietangebot.
BUEROanmietung leicht gemacht?
Bitte sprechen Sie uns an, gern stellen wir Ihnen eine Auswahl geeigneter Büroflächenangebote zusammen. Für Fragen, ein persönliches Gespräch oder auch eine persönliche Terminvereinbarung stehen wir Ihnen gern telefonisch unter 0341 | 5643000 zur Verfügung.
Passage
Büro
Büro
Flur
Küche
Eingangsbereich
Besprechungsraum
Objekt-Bild
Grundriss Ausbau 3. OG