Exposé
Objektart:
Grundstück
» Kauf
Standort: Grundstück »
Deutschland » Sachsen-Anhalt » Saalekreis (Kreis) » Schkopau
Top-Bauland für Ihr Einfamilienhaus zum kleinen Preis
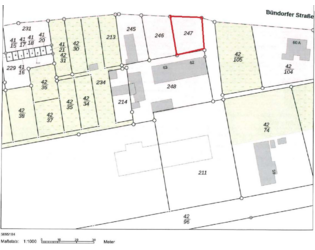
Flurkarte Flurstück 247
Angeboten von:
Marko Künne Immobilien
Käthe-Kollwitz-Str. 58c
04109 Leipzig
Deutschland
Telefon:+49(0)341-4429566
Fax:+49(0)341-2253930
www.kuenne-immobilien.de
| Telefon: | 0341 442 9566 |
| Fax: | 0341 2253930 |
Das Wichtigste auf einen Blick:
| Objektnummer: | 9304745 |
Preise
| Kaufpreis | 38.830 € |
| Nebenkosten | keine Angabe |
| Kaufpreis pro m² | 110 € |
Flächen
| Grundstücksfläche | 353 m² |
Objekt Adresse
06258 Schkopau
- Sachsen-Anhalt
Sonstige Angaben
| Verfügbar ab | keine Angabe |
Objektbeschreibung
Zum Verkauf steht ein 353 qm großes Grundstück in Schkopau. Das Grundstück ist vollständig erschlossen und sieht bevorzugt eine Bebauung mit einem Einfamilienhaus vor.
" frisch, engagiert, solide "
Die Künne Immobilien Gruppe ist professioneller Dienstleister der Immobilienbranche und steht Ihnen in den Bereichen Projektentwicklung, Verkauf, Vermietung, Verwaltung und Facility Management zur Verfügung.
Für weitere Informationen und Einblicke besuchen Sie unsere Homepage: www.kuenne-gruppe.de Sie wollen Ihre Immobilie verkaufen? Egal ob Mehrfamilien- oder Einfamilienhaus, Eigentumswohnung, Grundstück oder Neubau- bzw. Bauträgerprojekt. Wir vermitteln kompetent, transparent und zügig Ihre Immobilie, bundesweit.
" frisch, engagiert, solide "
Die Künne Immobilien Gruppe ist professioneller Dienstleister der Immobilienbranche und steht Ihnen in den Bereichen Projektentwicklung, Verkauf, Vermietung, Verwaltung und Facility Management zur Verfügung.
Für weitere Informationen und Einblicke besuchen Sie unsere Homepage: www.kuenne-gruppe.de Sie wollen Ihre Immobilie verkaufen? Egal ob Mehrfamilien- oder Einfamilienhaus, Eigentumswohnung, Grundstück oder Neubau- bzw. Bauträgerprojekt. Wir vermitteln kompetent, transparent und zügig Ihre Immobilie, bundesweit.
Lage des Objektes
Schkopau ist eine Gemeinde im Saalekreis in Sachsen-Anhalt. Der Ort Schkopau liegt rund 30 km westlich von Leipzig, 6 km nördlich von Merseburg und 11 km südlich von Halle (Saale).
Die direkte Nachbarschaft ist von dörflicher Wohnbebauung in Form von Ein- und Zweifamilienhäusern sowie Hofgrundstücken geprägt. Es befinden sich auch vereinzelte Gewerbebetriebe in der nähren Umgebung.
Verkehrsnetz:
- Durch die Gemeinde verlaufen die Bundesstraßen B91 und B181.
- Überregional ist Schkopau durch die Bundesautobahn A38 angebunden. Auch die Bundesautobahnen A9 , A14 und
A143
befinden sich in der Nähe.
- Im Schienenverkehr gibt es RB-Anschlüsse. Der nächste IC-Anschluss befindet sich im rund 10km entfernten Halle.
- Der nächstgelegene Flughafen ist der Flughafen Leipzig/Halle, welcher ca. 30km entfernt liegt.
Die direkte Nachbarschaft ist von dörflicher Wohnbebauung in Form von Ein- und Zweifamilienhäusern sowie Hofgrundstücken geprägt. Es befinden sich auch vereinzelte Gewerbebetriebe in der nähren Umgebung.
Verkehrsnetz:
- Durch die Gemeinde verlaufen die Bundesstraßen B91 und B181.
- Überregional ist Schkopau durch die Bundesautobahn A38 angebunden. Auch die Bundesautobahnen A9 , A14 und
A143
befinden sich in der Nähe.
- Im Schienenverkehr gibt es RB-Anschlüsse. Der nächste IC-Anschluss befindet sich im rund 10km entfernten Halle.
- Der nächstgelegene Flughafen ist der Flughafen Leipzig/Halle, welcher ca. 30km entfernt liegt.
Luftbild
Grundstücke