Exposé
Objektart:
Grundstück
» Wohnen
» Kauf
Standort: Grundstück »
Deutschland » Sachsen » Leipzig, Stadt (Kreis) » Leipzig
Zentrumsnahes Grundstück inkl. Baugenehmigung für freistehende Villa
Vogelperspektive Grundstück
Angeboten von:
Marko Künne Immobilien
Käthe-Kollwitz-Str. 58c
04109 Leipzig
Deutschland
Telefon:+49(0)341-4429566
Fax:+49(0)341-2253930
www.kuenne-immobilien.de
| Telefon: | 0341 442 9566 |
| Fax: | 0341 2253930 |
Das Wichtigste auf einen Blick:
| Objektnummer: | 9303458 |
Preise
| Kaufpreis | 825.000 € |
| Nebenkosten | keine Angabe |
Flächen
| Wohnfläche | 673,52 m² |
| Grundstücksfläche | 1.400 m² |
Objekt Adresse
04129 Leipzig
- Sachsen
Sonstige Angaben
| Verfügbar ab | 2024 |
| Terrassen | 1 |
Objektbeschreibung
Zum Verkauf steht ein Grundstück inklusive Baugenehmigung für ein villenartiges Mehrfamilienhaus mit über 670qm Wohnfläche.
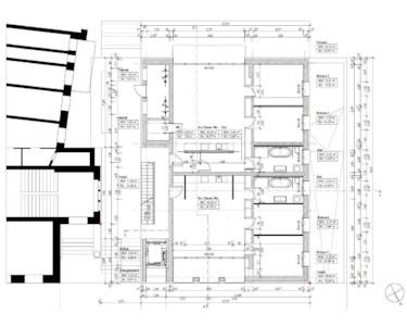
Die Planung sieht vor, ein Mehrfamilienhaus mit 7 Wohneinheiten und eine Tiefgarage zu errichten. Als Variante können auch 8 Wohnungen entstehen, wenn das Erdgeschoß in zwei Einheiten geteilt wird. Im Erdgeschoß ist auch eine Gewerbeeinheit für ein ruhiges Gewerbe/Praxis möglich.
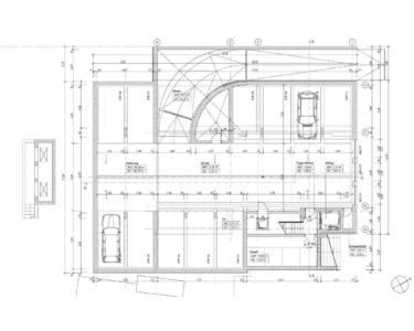
Das Gesamtgrundstück, auf dem sich bereits eine historische Stadtvilla befindet und welches um diesen exklusiven Neubau erweitert wird, bilden gemeinsam eine WEG und stehen auf einem ca. 1400m² großen Grundstück. Das bereits bestehende in der Gründerzeit errichtete Gebäude ist bereits nach WEG aufgeteilt und durch den Neubau wird die WEG erweitert - beide Häuser zusammen bilden dann eine Eigentümergemeinschaft. Im Kellergeschoß des Neubaus befindet sich eine Tiefgarage, wo auch 5 Stellplätze für die Eigentümer der anderen WEG untergebracht werden. Der nach Westen ausgerichtete Garten bietet viel Platz für Erholung.
Die Wilhelm-Sammet-Straße in Eutritzsch ist ein historischer und ruhiger Straßenzug, gesäumt von alleeartigem alten Baumbestand, historischen Zaunanlagen und geschichtsträchtigen hochwertigen Wohnhäusern und ehemaligen Fabriken, die bereits einer Nutzung als Lofts übergeführt wurden.
" frisch, engagiert, solide "
Die Künne Immobilien Gruppe ist professioneller Dienstleister der Immobilienbranche und steht Ihnen in den Bereichen Projektentwicklung, Verkauf, Vermietung, Verwaltung und Facility Management zur Verfügung.
Für weitere Informationen und Einblicke besuchen Sie unsere Homepage: www.kuenne-gruppe.de Sie wollen Ihre Immobilie verkaufen? Egal ob Mehrfamilien- oder Einfamilienhaus, Eigentumswohnung, Grundstück oder Neubau- bzw. Bauträgerprojekt. Wir vermitteln kompetent, transparent und zügig Ihre Immobilie, bundesweit.
Die Planung sieht vor, ein Mehrfamilienhaus mit 7 Wohneinheiten und eine Tiefgarage zu errichten. Als Variante können auch 8 Wohnungen entstehen, wenn das Erdgeschoß in zwei Einheiten geteilt wird. Im Erdgeschoß ist auch eine Gewerbeeinheit für ein ruhiges Gewerbe/Praxis möglich.
Das Gesamtgrundstück, auf dem sich bereits eine historische Stadtvilla befindet und welches um diesen exklusiven Neubau erweitert wird, bilden gemeinsam eine WEG und stehen auf einem ca. 1400m² großen Grundstück. Das bereits bestehende in der Gründerzeit errichtete Gebäude ist bereits nach WEG aufgeteilt und durch den Neubau wird die WEG erweitert - beide Häuser zusammen bilden dann eine Eigentümergemeinschaft. Im Kellergeschoß des Neubaus befindet sich eine Tiefgarage, wo auch 5 Stellplätze für die Eigentümer der anderen WEG untergebracht werden. Der nach Westen ausgerichtete Garten bietet viel Platz für Erholung.
Die Wilhelm-Sammet-Straße in Eutritzsch ist ein historischer und ruhiger Straßenzug, gesäumt von alleeartigem alten Baumbestand, historischen Zaunanlagen und geschichtsträchtigen hochwertigen Wohnhäusern und ehemaligen Fabriken, die bereits einer Nutzung als Lofts übergeführt wurden.
" frisch, engagiert, solide "
Die Künne Immobilien Gruppe ist professioneller Dienstleister der Immobilienbranche und steht Ihnen in den Bereichen Projektentwicklung, Verkauf, Vermietung, Verwaltung und Facility Management zur Verfügung.
Für weitere Informationen und Einblicke besuchen Sie unsere Homepage: www.kuenne-gruppe.de Sie wollen Ihre Immobilie verkaufen? Egal ob Mehrfamilien- oder Einfamilienhaus, Eigentumswohnung, Grundstück oder Neubau- bzw. Bauträgerprojekt. Wir vermitteln kompetent, transparent und zügig Ihre Immobilie, bundesweit.
Lage des Objektes
Eutritzsch ist ein ruhiges Wohngebiet mit bürgerlichem Flair. Das Rosental, eine Parklandschaft mitten in der Stadt, und der angrenzende Zoologische Garten, der Zoo der Zukunft, sind nicht weit entfernt - an einem sonnigen Tag lassen sich die Strecken sogar zu Fuß zurücklegen.
Der Stadtteil erweist sich als überaus attraktives Wohnviertel in sehr guter Lage: das Stadtzentrum ist nicht weit entfernt und kann bequem mit den Tramlinien 4 und 12 erreicht werden. Darüber hinaus besteht eine gute Verkehrsanbindung mit S-Bahn und Straßenbahn zu BMW, Porsche und DHL.
Der Stadtteil erweist sich als überaus attraktives Wohnviertel in sehr guter Lage: das Stadtzentrum ist nicht weit entfernt und kann bequem mit den Tramlinien 4 und 12 erreicht werden. Darüber hinaus besteht eine gute Verkehrsanbindung mit S-Bahn und Straßenbahn zu BMW, Porsche und DHL.
Vogelperspektive Grundstück
Vogelperspektive Grundstück
Straßenperspektive
Visualisierung Straßenansicht
Rückansicht
Rückansicht 2
Längsschnitt B-B
Fassade Nordost
Beispiel Wohnzimmer
Beispiel Küche
Beispiel Bad
Grundriss Erdgeschoss
Grundriss 1.-2. OG
Grundriss Tiefgarage