Exposé
Objektart:
Haus
» Einfamilienhaus
» Kauf
Standort: Haus »
Deutschland » Sachsen » Leipzig, Stadt (Kreis) » Leipzig
Ihre Insel mitten in der Stadt! Moderne Stadtvilla in bester Lage
Rückansicht
Angeboten von:
Marko Künne Immobilien
Käthe-Kollwitz-Str. 58c
04109 Leipzig
Deutschland
Telefon:+49(0)341-4429566
Fax:+49(0)341-2253930
www.kuenne-immobilien.de
| Telefon: | 0341 442 9566 |
| Fax: | 0341 2253930 |
Das Wichtigste auf einen Blick:
| Objektnummer: | 9302126 |
Preise
| Kaufpreis | 1.600.000 € |
| Nebenkosten | keine Angabe |
Flächen
| Wohnfläche | 215,3 m² |
| Grundstücksfläche | 291,67 m² |
Objekt Adresse
04103 Leipzig
- Sachsen
Sonstige Angaben
| Baujahr | 2022 |
| Zimmer | 5 |
| Verfügbar ab | nach Vereinbarung |
| Anzahl der Etagen im Haus | 2 |
| Bad | Dusche, Wanne, Fenster |
| Balkone | 1 |
| Heizungsart | Fußbodenheizung |
Beschreibung der Immobilie
Ihre eigene Insel mitten in der Stadt – detailverliebt, modern und gleichermaßen perfekt für junge Familien, Paare und Individualisten. Zum Verkauf steht eine schlüsselfertige Stadtvilla mit einer Wohnfläche von ca. 215,3 m² in unmittelbarer Nähe zum Leipziger Stadtzentrum. Hierbei formen hoher Standard und Moderne die bestmögliche Symbiose für ihr Wohlbefinden. Das insgesamt 291,67 m²-große Grundstück befindet sich im hinteren Teil der Inselstraße 17a. Die Zuwegung ist über die gemeinsame Hofdurchfahrt des Vorderhauses und entsprechende Wegerechte gesichert.
Geplant ist das Bauprojekt in folgendem Umfang:
Das lichtdurchflutete Haus soll zwei Etagen, 5 Zimmer, eine Garage sowie eine sonnige Dachterrasse erhalten, welche zum Verweilen einlädt. Im gesamten Wohnbereich gibt es eine moderne Fußbodenheizung, in den Bädern zudem noch Heizkörper welche als Handtuchtrockner genutzt werden können.
Zum Wärme-, Schall- und Sichtschutz erhalten alle Fenster und Fenstertüren in den Außenwänden elektrisch angetriebene Rollläden.
Sie können Ihr neues Zuhause individuell in Eigenleistung nach Ihren Vorstellungen gestalten oder wir werden in Sachen Innenraum für Sie aktiv!
Starke Leistungspakete lassen keine Wünsche offen:
Paket "Wand und Decke"
• Reinigung von Wand- und Deckenflächen
• Teilspachtelung von Wand- und Deckenflächen
• Anbringung von Malervlies an Wand und Deckenflächen
• Grundierung von Wand- und Deckenflächen
• Streichen von Wand- und Deckenflächen mit einer Silikat-Innenwandfarbe; Farbton weiß ungetönt
Gesamtpreis zzgl. zum Kaufpreis 20.000,00 € Brutto.
Paket "Böden"
• Lieferung und Verlegung von Industrie-Hochkantlamellenparkett, Eiche 10 mm, geölte Oberfläche
• Lieferung und Verlegung von Sockelleisten, Cube 58x16 mm in Eiche
• Angebot gilt für alle Räume ohne Fliesenbelag
Gesamtpreis zzgl. zum Kaufpreis 20.000,00 € Brutto.
Natürlich bringen wir Ihnen das Projekt auch gern in unserem Firmensitz in Leipzig näher. Vereinbaren Sie hierzu mit einem unserer Kollegen einen Termin. Wir freuen uns auf Sie!
" frisch, engagiert, solide "
Die Künne Immobilien Gruppe ist professioneller Dienstleister der Immobilienbranche und steht Ihnen in den Bereichen Projektentwicklung, Verkauf, Vermietung, Verwaltung und Facility Management zur Verfügung.
Für weitere Informationen und Einblicke besuchen Sie unsere Homepage: www.kuenne-gruppe.de Sie wollen Ihre Immobilie verkaufen? Egal ob Mehrfamilien- oder Einfamilienhaus, Eigentumswohnung, Grundstück oder Neubau- bzw. Bauträgerprojekt. Wir vermitteln kompetent, transparent und zügig Ihre Immobilie, bundesweit.
Geplant ist das Bauprojekt in folgendem Umfang:
Das lichtdurchflutete Haus soll zwei Etagen, 5 Zimmer, eine Garage sowie eine sonnige Dachterrasse erhalten, welche zum Verweilen einlädt. Im gesamten Wohnbereich gibt es eine moderne Fußbodenheizung, in den Bädern zudem noch Heizkörper welche als Handtuchtrockner genutzt werden können.
Zum Wärme-, Schall- und Sichtschutz erhalten alle Fenster und Fenstertüren in den Außenwänden elektrisch angetriebene Rollläden.
Sie können Ihr neues Zuhause individuell in Eigenleistung nach Ihren Vorstellungen gestalten oder wir werden in Sachen Innenraum für Sie aktiv!
Starke Leistungspakete lassen keine Wünsche offen:
Paket "Wand und Decke"
• Reinigung von Wand- und Deckenflächen
• Teilspachtelung von Wand- und Deckenflächen
• Anbringung von Malervlies an Wand und Deckenflächen
• Grundierung von Wand- und Deckenflächen
• Streichen von Wand- und Deckenflächen mit einer Silikat-Innenwandfarbe; Farbton weiß ungetönt
Gesamtpreis zzgl. zum Kaufpreis 20.000,00 € Brutto.
Paket "Böden"
• Lieferung und Verlegung von Industrie-Hochkantlamellenparkett, Eiche 10 mm, geölte Oberfläche
• Lieferung und Verlegung von Sockelleisten, Cube 58x16 mm in Eiche
• Angebot gilt für alle Räume ohne Fliesenbelag
Gesamtpreis zzgl. zum Kaufpreis 20.000,00 € Brutto.
Natürlich bringen wir Ihnen das Projekt auch gern in unserem Firmensitz in Leipzig näher. Vereinbaren Sie hierzu mit einem unserer Kollegen einen Termin. Wir freuen uns auf Sie!
" frisch, engagiert, solide "
Die Künne Immobilien Gruppe ist professioneller Dienstleister der Immobilienbranche und steht Ihnen in den Bereichen Projektentwicklung, Verkauf, Vermietung, Verwaltung und Facility Management zur Verfügung.
Für weitere Informationen und Einblicke besuchen Sie unsere Homepage: www.kuenne-gruppe.de Sie wollen Ihre Immobilie verkaufen? Egal ob Mehrfamilien- oder Einfamilienhaus, Eigentumswohnung, Grundstück oder Neubau- bzw. Bauträgerprojekt. Wir vermitteln kompetent, transparent und zügig Ihre Immobilie, bundesweit.
Lage & Infrastruktur
Leipzig blickt auf eine lange und historisch wertvolle Geschichte zurück. Vor über 1.000 Jahren begann die Stadt am Schnittpunkt der
wichtigsten Handelswege zu existieren. Viele wichtige Ereignisse werden immer mit dem Namen Leipzig in Verbindung stehen.
Das heutige Leipzig präsentiert sich als dynamische Wirtschafts- und Kulturzentrum in Mitteldeutschland. Das Herz der Stadt schlägt
in dem nur etwa 1 Quadratkilometer großen, kompakten Zentrum.
In den nach 1990 sorgfältig restaurierten historischen Messepalästen und Passagen laden heute Geschäfte, Restaurants und Cafés in großer Zahl zum Bummeln und Verweilen ein. Was Sie auch suchen, in Leipzig liegt alles Gute nah: Kulturhighlights für Musik- und Kunstfreunde, Kaffeehauskultur und Traditionsgaststätten, Shopping in historischen Handelshöfen und Passagen, Erholungs- und Freizeiterlebnisse der besonderen Art und nicht zuletzt ein buntes vielseitiges Nachtleben.
Die hohe Anziehungskraft der Stadt hält den Wohnungsmarkt dynamisch und Neubau-Immobilien sind stark gefragt.
Unmittelbar östlich von der Leipziger Innenstadt, umschlossen von der Brandenburger und der Dresdner Straße, befindet sich das Zentrum-Ost, eines der kleineren Viertel der Stadt. Das sogenannte "Graphische Viertel" ist ein beliebter und lebhafter Leipziger Stadtteil, der gleichermaßen Raum für Arbeit und Wohnen bietet und eine ganz eigene dynamische Geschäftigkeit besitzt. Einrichtungen des Buchgewerbes und der Medienprofessionen lassen sich überall im Viertel finden. Einkaufsmöglichkeiten und Supermärkte sind im neuen Medienviertel ebenfalls vorhanden. Findet man nicht, was man sucht, so bietet das Zentrum mehr als genug Asuwahl für alle Arten von Wünschen.
wichtigsten Handelswege zu existieren. Viele wichtige Ereignisse werden immer mit dem Namen Leipzig in Verbindung stehen.
Das heutige Leipzig präsentiert sich als dynamische Wirtschafts- und Kulturzentrum in Mitteldeutschland. Das Herz der Stadt schlägt
in dem nur etwa 1 Quadratkilometer großen, kompakten Zentrum.
In den nach 1990 sorgfältig restaurierten historischen Messepalästen und Passagen laden heute Geschäfte, Restaurants und Cafés in großer Zahl zum Bummeln und Verweilen ein. Was Sie auch suchen, in Leipzig liegt alles Gute nah: Kulturhighlights für Musik- und Kunstfreunde, Kaffeehauskultur und Traditionsgaststätten, Shopping in historischen Handelshöfen und Passagen, Erholungs- und Freizeiterlebnisse der besonderen Art und nicht zuletzt ein buntes vielseitiges Nachtleben.
Die hohe Anziehungskraft der Stadt hält den Wohnungsmarkt dynamisch und Neubau-Immobilien sind stark gefragt.
Unmittelbar östlich von der Leipziger Innenstadt, umschlossen von der Brandenburger und der Dresdner Straße, befindet sich das Zentrum-Ost, eines der kleineren Viertel der Stadt. Das sogenannte "Graphische Viertel" ist ein beliebter und lebhafter Leipziger Stadtteil, der gleichermaßen Raum für Arbeit und Wohnen bietet und eine ganz eigene dynamische Geschäftigkeit besitzt. Einrichtungen des Buchgewerbes und der Medienprofessionen lassen sich überall im Viertel finden. Einkaufsmöglichkeiten und Supermärkte sind im neuen Medienviertel ebenfalls vorhanden. Findet man nicht, was man sucht, so bietet das Zentrum mehr als genug Asuwahl für alle Arten von Wünschen.
Hausansicht
Stellplatzseite
Ansicht Süd_West
Vogelperspektive
Ansicht Nord_Ost
Lagekarte_Inselstraße17a
Flurkarte
Grundriss EG
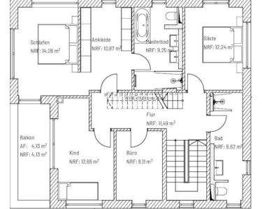
Grundriss 1OG
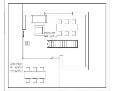
Grundriss DG