Exposé
Objektart:
Grundstück
» Wohnen
» Kauf
Standort: Grundstück »
Deutschland » Sachsen » Leipzig, Stadt (Kreis) » Leipzig
Leipzig, Zentrale Lage - Baugrundstück mit Baugenehm. für 19 Whg. + 3 Stadthäuser, Denkmal-AfA mögl.!
Ansicht Heinrichstraße
Angeboten von:
Marko Künne Immobilien
Käthe-Kollwitz-Str. 58c
04109 Leipzig
Deutschland
Telefon:+49(0)341-4429566
Fax:+49(0)341-2253930
www.kuenne-immobilien.de
| Telefon: | 0341 442 9566 |
| Fax: | 0341 2253930 |
Das Wichtigste auf einen Blick:
| Objektnummer: | 9302180 |
Preise
| Kaufpreis | 2.575.000 € |
| Nebenkosten | keine Angabe |
| Kaufpreis pro m² | 2262,74 € |
Flächen
| Grundstücksfläche | 1.138 m² |
Objekt Adresse
04317 Leipzig
- Sachsen
Sonstige Angaben
| Verfügbar ab | keine Angabe |
Objektbeschreibung
Bei diesem interessanten Immobilienangebot handelt es sich um ein Baugrundstück im Stadtteil Leipzig-Reudnitz. Das 1.138m² große Grundstück ist voll erschlossen und besteht aus drei zusammenhängenden Flurstücken.
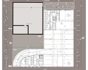
Auf dem Grundstück steht derzeit ein 2-geschossiges ehemaliges Fabrikgebäude, welches unter Denkmalschutz steht. Geplant ist eine Umnutzung des Bestandes zu 3 Stadthäusern. Außerdem ist der Bau von 2 Neubaugebäuden als Vorder- und Hinterhaus vorgesehen, die Platz für 19 Wohneinheiten schaffen.
Die gesamte Wohnfläche beträgt insgesamt ca. 1.840,57 m². Sie teilt sich in zwei Mehrfamilienhäuser mit 2-4-Zimmer-Wohnungen und einer Wohnfläche zwischen ca. 48-108m² und einem Bestandsobjekt (Umbau 3 Stadthäuser) mit einer Gesamtfläche von 292,90 m² auf.
Die 3 Stadthäuser, welche im denkmalgeschützten Bereich entstehen, sollen mit jeweils 4 Zimmern über eine Wohnfläche von ca. 90-101 m² verfügen. Für den Großteil der Wohnungen sind Balkone/Loggien beziehungsweise Terrassen geplant. Jedes Stadthaus erhält einen Privatgarten als Sondernutzungsrecht und eine Dachterrasse. Im Untergeschoss sind Kellerräume, sowie wie auch 18 Stellplätze vorgesehen. Ein Aufzug rundet das gesamte Objekt ab.
Das Gebäude wird in Energieeffizienzklasse 55 errichtet. Derzeit ist die Beheizung über eine Luft-Wärmepumpe geplant.
Das Grundstück wird INKLUSIVE VORLIEGENDER BAUGENEHMIGUNG für die Planungen veräußert.
" frisch, engagiert, solide "
Die Künne Immobilien Gruppe ist professioneller Dienstleister der Immobilienbranche und steht Ihnen in den Bereichen Projektentwicklung, Verkauf, Vermietung, Verwaltung und Facility Management zur Verfügung.
Für weitere Informationen und Einblicke besuchen Sie unsere Homepage: www.kuenne-gruppe.de Sie wollen Ihre Immobilie verkaufen? Egal ob Mehrfamilien- oder Einfamilienhaus, Eigentumswohnung, Grundstück oder Neubau- bzw. Bauträgerprojekt. Wir vermitteln kompetent, transparent und zügig Ihre Immobilie, bundesweit.
Auf dem Grundstück steht derzeit ein 2-geschossiges ehemaliges Fabrikgebäude, welches unter Denkmalschutz steht. Geplant ist eine Umnutzung des Bestandes zu 3 Stadthäusern. Außerdem ist der Bau von 2 Neubaugebäuden als Vorder- und Hinterhaus vorgesehen, die Platz für 19 Wohneinheiten schaffen.
Die gesamte Wohnfläche beträgt insgesamt ca. 1.840,57 m². Sie teilt sich in zwei Mehrfamilienhäuser mit 2-4-Zimmer-Wohnungen und einer Wohnfläche zwischen ca. 48-108m² und einem Bestandsobjekt (Umbau 3 Stadthäuser) mit einer Gesamtfläche von 292,90 m² auf.
Die 3 Stadthäuser, welche im denkmalgeschützten Bereich entstehen, sollen mit jeweils 4 Zimmern über eine Wohnfläche von ca. 90-101 m² verfügen. Für den Großteil der Wohnungen sind Balkone/Loggien beziehungsweise Terrassen geplant. Jedes Stadthaus erhält einen Privatgarten als Sondernutzungsrecht und eine Dachterrasse. Im Untergeschoss sind Kellerräume, sowie wie auch 18 Stellplätze vorgesehen. Ein Aufzug rundet das gesamte Objekt ab.
Das Gebäude wird in Energieeffizienzklasse 55 errichtet. Derzeit ist die Beheizung über eine Luft-Wärmepumpe geplant.
Das Grundstück wird INKLUSIVE VORLIEGENDER BAUGENEHMIGUNG für die Planungen veräußert.
" frisch, engagiert, solide "
Die Künne Immobilien Gruppe ist professioneller Dienstleister der Immobilienbranche und steht Ihnen in den Bereichen Projektentwicklung, Verkauf, Vermietung, Verwaltung und Facility Management zur Verfügung.
Für weitere Informationen und Einblicke besuchen Sie unsere Homepage: www.kuenne-gruppe.de Sie wollen Ihre Immobilie verkaufen? Egal ob Mehrfamilien- oder Einfamilienhaus, Eigentumswohnung, Grundstück oder Neubau- bzw. Bauträgerprojekt. Wir vermitteln kompetent, transparent und zügig Ihre Immobilie, bundesweit.
Lage des Objektes
Die Stadt Leipzig zeichnet sich aus durch eine zentrale Lage und kurze Wege, tolerante Menschen und Natur pur.
Im Südosten Leipzigs, unweit vom Zentrum gelegen, bietet Reudnitz vielfältige Wohnmöglichkeiten. Das Stadtbild des dynamisch aufstrebenden Viertels wird vor allem durch Gründerzeitbauten aus der Zeit um 1900 geprägt und wurde in den letzten Jahren um architektonisch ansprechende Neubauten erweitert. Reudnitz ist aus dem Dornröschenschlaf erwacht, sodass sich auch hier ein buntes Stadtteilleben mit Jugendzentren, Kneipen und Clubs entwickelt hat. Entlang der Hauptachsen Riebeck-, Prager- und Dresdner Straße finden sich verschiedene Einkaufs- und Dienstleistungsangebote. Die Reudnitzer Brauerei ist Anlaufpunkt für gastronomisches und kulturelles Genießen. Raum für Entspannung im Grünen bieten der Lene-Voigt-Park sowie der Friedenspark mit Botanischem Garten im südlichen Teil von Reudnitz.
Das Viertel ist sehr gut an das städtische Tram-Netz angebunden. Die wichtigsten Linien erreicht man schnell zu Fuß, so dass andere Ortsteile und der Fernverkehr leicht zugänglich sind. Der Weg zum exklusiven Shopping im Stadtzentrum beansprucht mit der Tram lediglich 10 bis 15 Minuten.
Im Südosten Leipzigs, unweit vom Zentrum gelegen, bietet Reudnitz vielfältige Wohnmöglichkeiten. Das Stadtbild des dynamisch aufstrebenden Viertels wird vor allem durch Gründerzeitbauten aus der Zeit um 1900 geprägt und wurde in den letzten Jahren um architektonisch ansprechende Neubauten erweitert. Reudnitz ist aus dem Dornröschenschlaf erwacht, sodass sich auch hier ein buntes Stadtteilleben mit Jugendzentren, Kneipen und Clubs entwickelt hat. Entlang der Hauptachsen Riebeck-, Prager- und Dresdner Straße finden sich verschiedene Einkaufs- und Dienstleistungsangebote. Die Reudnitzer Brauerei ist Anlaufpunkt für gastronomisches und kulturelles Genießen. Raum für Entspannung im Grünen bieten der Lene-Voigt-Park sowie der Friedenspark mit Botanischem Garten im südlichen Teil von Reudnitz.
Das Viertel ist sehr gut an das städtische Tram-Netz angebunden. Die wichtigsten Linien erreicht man schnell zu Fuß, so dass andere Ortsteile und der Fernverkehr leicht zugänglich sind. Der Weg zum exklusiven Shopping im Stadtzentrum beansprucht mit der Tram lediglich 10 bis 15 Minuten.
Ansicht Rückgebäude
Ansicht Hof Vorderhaus
Ansicht Hof Rückgebäude
Schnitt A-A
Schnitt B-B
Leipzig Lene-Voigt Park
Außenansicht
Grundstück
ehemaliges Fabrikgebäude
Gebäude innen
Gebäude innen
Treppe
Gebäude innen
Gebäude innen
Gebäude innen
Gebäude innen
Leipzig Drohne
Grundriss Dachaufsicht
Grundriss EG
Grundriss 1 OG
Grundriss 2 OG
Grundriss 3 OG
Grundriss DG
Grundriss UG