Exposé
Objektart:
Büro / Praxen
» Praxis
» Miete
Standort: Büro / Praxen »
Deutschland » Hessen » Main-Taunus-Kreis (Kreis) » Bad Soden / Ts.
Praxis / Büroräume in Bad Soden zum Vermieten zum 1.4.2026
Rückseite
Das Wichtigste auf einen Blick:
| Objektnummer: | 9301769 |
Preise
| Kaltmiete (netto) | 2.150 € |
| Nebenkosten | 260 € |
| Kaution | 6.450 € |
Flächen
| Gesamtfläche | 123 m² |
| Bürofläche | 123 m² |
| Maklerprovision | keine Provision, courtagefrei |
Objekt Adresse
Königsteiner Straße 17
65812 Bad Soden / Ts.
- Hessen
Sonstige Angaben
| Baujahr | 1987 |
| Verfügbar ab | 01.04.2026 |
| Anzahl der Etagen im Haus | 1 |
| Inserat befindet sich im Stockwerk | 1 |
| Küche | Einbauküche |
| Boden | Parkett |
| Keller | Ja |
| Energieausweistyp | Verbrauch |
| Heizungsart | Fußbodenheizung |
| Energieträger/Befeuerung | Gas |
Objektbeschreibung
Zum 1.4.2026 suchen wir Nachmieter für unsere Praxisräume in Bad Soden.
Die Praxis befindet sich im 1. OG eines Ärztehauses (Orthopädie / physikalische Therapie / Psychotherapie) und wird derzeit von zwei Gynäkologinnen geführt.
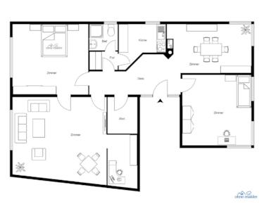
Die Praxisräume bieten auf 123 m2 ein großzügiges Entree, eine Anmeldung, zwei Behandlungszimmer (30+20m2), ein Wartezimmer (20m2) sowie ein Labor, ein Tageslicht-WC und einen weiteren kleinen Behandlungsraum.
Die Räume sind lichtdurchflutet, haben eine Deckenhöhe von 2,7 m, Fußbodenheizung, und einen versiegelten Parkettboden. Zur Praxis gehören ein Archivraum im Keller und drei Stellplätze.
Die Praxis befindet sich im 1. OG eines Ärztehauses (Orthopädie / physikalische Therapie / Psychotherapie) und wird derzeit von zwei Gynäkologinnen geführt.
Die Praxisräume bieten auf 123 m2 ein großzügiges Entree, eine Anmeldung, zwei Behandlungszimmer (30+20m2), ein Wartezimmer (20m2) sowie ein Labor, ein Tageslicht-WC und einen weiteren kleinen Behandlungsraum.
Die Räume sind lichtdurchflutet, haben eine Deckenhöhe von 2,7 m, Fußbodenheizung, und einen versiegelten Parkettboden. Zur Praxis gehören ein Archivraum im Keller und drei Stellplätze.
Ausstattung
Keller, Einbauküche, Gäste-WC, Parkett
Bemerkungen:
Die Räume befinden sich im 1.OG eines dreistöckigen Ärztehauses mit drei Parteien. Es handelt sich hierbei um einen Neubau der ehemaligen Villa Katharina, welcher 1987 fertiggestellt wurde.
Das Treppenhaus ist komplett mit weißem Carrara Marmor ausgestattet und bietet ein repräsentatives Ambiente. Die Praxisräume haben eine Deckenhöhe von 2,7 m und große lichtdurchflutete Fenster. Dadurch wird der Raumeindruck positiv gesteigert. Die Fußbodenheizung bietet ein gutes Raumklima. Das Parkett und der Stuck runden diesen Eindruck ab.
Bemerkungen:
Die Räume befinden sich im 1.OG eines dreistöckigen Ärztehauses mit drei Parteien. Es handelt sich hierbei um einen Neubau der ehemaligen Villa Katharina, welcher 1987 fertiggestellt wurde.
Das Treppenhaus ist komplett mit weißem Carrara Marmor ausgestattet und bietet ein repräsentatives Ambiente. Die Praxisräume haben eine Deckenhöhe von 2,7 m und große lichtdurchflutete Fenster. Dadurch wird der Raumeindruck positiv gesteigert. Die Fußbodenheizung bietet ein gutes Raumklima. Das Parkett und der Stuck runden diesen Eindruck ab.
Lage des Objektes
Die Praxisräume befinden sich in zentraler Lage von Bad Soden am Taunus.
Eine Bushaltestelle befindet sich gegenüber der Praxis.
Der Bahnhof sowie die S-Bahn-Station sind in wenigen Gehminuten erreichbar und gewährleisten eine gute Anbindung an den öffentlichen Nahverkehr.
Die Stadt Bad Soden hat eine hohe Lebensqualität, sie liegt am Südhang des Taunus und bietet eine hervorragend ausgebaute Infrastruktur mit sämtlichen wichtigen Einrichtungen des täglichen Bedarfs. Hierzu zählen auch Einkaufsmöglichkeiten, kulturelle Angebote, Restaurants. Bad Soden ist auch familienfreundlich durch die Angebote der Kinderbetreuung und Grundschulen.
Bad Soden zählt zu den begehrten Standorten im Vordertaunus, da sie
naturnahes Wohnen mit guter Erreichbarkeit verbindet.
Die Anbindung an die S-Bahn-Linie S3 verbindet Bad Soden direkt mit dem Frankfurter Hauptbahnhof und wichtigen Zwischenstationen wie Sulzbach, Schwalbach, Eschborn und Rödelheim. Mehrere Buslinien ergänzen das Nahverkehrsnetz und schaffen direkte Verbindungen in die umliegenden Städte und Gemeinden.
Über die Schnellstraße B8 ist die Autobahn A66 in wenigen Minuten erreichbar. Dadurch lassen sich sowohl das Wiesbadener als auch das Frankfurter Kreuz – zwei zentrale Verkehrsknotenpunkte – schnell erreichen. Die Frankfurter Innenstadt sowie der internationale Flughafen sind jeweils in etwa 15 Minuten erreichbar.
Infrastruktur (im Umkreis von 5 km):
Apotheke, Lebensmittel-Discount, Allgemeinmediziner, Kindergarten, Grundschule, Öffentliche Verkehrsmittel
Eine Bushaltestelle befindet sich gegenüber der Praxis.
Der Bahnhof sowie die S-Bahn-Station sind in wenigen Gehminuten erreichbar und gewährleisten eine gute Anbindung an den öffentlichen Nahverkehr.
Die Stadt Bad Soden hat eine hohe Lebensqualität, sie liegt am Südhang des Taunus und bietet eine hervorragend ausgebaute Infrastruktur mit sämtlichen wichtigen Einrichtungen des täglichen Bedarfs. Hierzu zählen auch Einkaufsmöglichkeiten, kulturelle Angebote, Restaurants. Bad Soden ist auch familienfreundlich durch die Angebote der Kinderbetreuung und Grundschulen.
Bad Soden zählt zu den begehrten Standorten im Vordertaunus, da sie
naturnahes Wohnen mit guter Erreichbarkeit verbindet.
Die Anbindung an die S-Bahn-Linie S3 verbindet Bad Soden direkt mit dem Frankfurter Hauptbahnhof und wichtigen Zwischenstationen wie Sulzbach, Schwalbach, Eschborn und Rödelheim. Mehrere Buslinien ergänzen das Nahverkehrsnetz und schaffen direkte Verbindungen in die umliegenden Städte und Gemeinden.
Über die Schnellstraße B8 ist die Autobahn A66 in wenigen Minuten erreichbar. Dadurch lassen sich sowohl das Wiesbadener als auch das Frankfurter Kreuz – zwei zentrale Verkehrsknotenpunkte – schnell erreichen. Die Frankfurter Innenstadt sowie der internationale Flughafen sind jeweils in etwa 15 Minuten erreichbar.
Infrastruktur (im Umkreis von 5 km):
Apotheke, Lebensmittel-Discount, Allgemeinmediziner, Kindergarten, Grundschule, Öffentliche Verkehrsmittel
Sonstige Informationen
Heizungsart: Fußbodenheizung
Energieträger: Gas
ohne-makler (OM) ist weder Anbieter noch Vermittler der Immobilie. OM betreibt eine Plattform für Immobilieneigentümer, die unter anderem die gleichzeitige Veröffentlichung einzelner Inserate auf mehreren Immobilienportalen ermöglicht. Die Inhalte dieser Inserate werden ausschließlich von Dritten verantwortet. Für die Richtigkeit, Vollständigkeit oder Rechtmäßigkeit der Angaben übernimmt OM keine Haftung. Hinweise auf mögliche Rechtsverstöße können jederzeit gemeldet werden und werden nach Prüfung umgehend bearbeitet.
Vorderseite
Vorderseite
Rückseite
Rückseite
Praxiseingang
Treppenhaus
Treppenhaus
Behandlung 1
Behandlung 1
Behandlung 1
Behandlung 2
Behandlung 2
Behandlung 2
Anmeldung
Labor
Wartezimmer
Entree
Entree
Energieausweis
Wartezimmer
Wartezimmer
Flur
Flur
Anmeldung
Behandlung 1
Behandlung 1
Behandlung 2
Behandlung 2
Labor
Aktueller Grundriss