Exposé
Objektart:
Hallen / Lager / Produktion
» Halle
» Kauf
Standort: Hallen / Lager / Produktion »
Deutschland » Nordrhein-Westfalen » Kleve (Kreis) » Kleve
Kleve: Vielseitige Werkstatthalle mit moderner Ausstattung und PV-Anlage
Das Wichtigste auf einen Blick:
| Objektnummer: | 9301165 |
Preise
| Kaufpreis | 1.650.000 € |
| Nebenkosten | keine Angabe |
Flächen
| Gesamtfläche | 919,49 m² |
| Bürofläche | 149,67 m² |
| Grundstücksfläche | 2.936 m² |
| Maklerprovision | 1,19% vom Kaufpreis (inkl. MwSt.) |
Objekt Adresse
47533 Kleve
- Nordrhein-Westfalen
Sonstige Angaben
| Verfügbar ab | keine Angabe |
Objektbeschreibung
Am Rande von Kleve zentral im Gewerbiegebiet gelegen, umgeben von weiteren Gewerbeimmobilien, liegt diese Werkstatthalle.
Grundstück:
Das Grundstück mit einer Fläche von ca. 2.936 m² und weiteren 747 m² eintragen, ist noch nicht vollkommen bebaut und läßt somit dem neuen Besitzer noch Möglichkeiten offen. Der Außenbereich bietet großzügige Lager- und Stellflächen – ideal für Material, Fahrzeuge oder Fuhrpark.
Baujahr
Fertigstellung ca. 2011 in Skelettbauweise errichtet.
Hallenfläche:
ca. 769,82 m²
Büro- und Sozialräume:
ca. 215,1 m²
Beschreibung
Die isolierte Halle mit Betonboden, 80 mm dicken Sandwichelementen für die Fassade und im Dach 100/140 mm, massiven Sockel, Dachüberstand für bessere Klimabedingungen im Sommer und im Winter, ist vom Eigentümer selbst erichtet wurden. Die Halle wurde so gebaut, dass problemlos ein weiteres Element angebaut werden kann. Neben der Halle ist genügend Platz, um auch eine zweite Zuwegung für den neu errichteten Teil der Halle, zu schaffen.
Aufteilung Hallenbereich
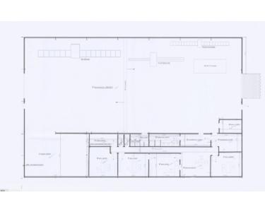
moderne isolierte Halle (7 m bis Traufe) bzw. Produktionsbereich und Lager mit Kranbahn (Tragkraft von 5 t), Rolltor von ca. 4,25 m Höhe und 5 m Breite.
In der Halle befindet sich ein Technikraum und eine Toilette für die Mitarbeiter.
Aufteilung Verwaltung und Sozialräume
Erdgeschoss: Empfangsbereich, vier geräumige Büroräume, Küche, Pausenraum, Umkleideraum, Waschraum, WC-Anlagen
Fenster
Kunststofffenster mit Isolierverglasung im Bürobereich sorgen für gute Wärmedämmung und Tageslichtkomfort.
Dach
Auf dem nach Süden ausgerichteten Dächern des Bürotraktes und der Montagehalle wurde eine 80,96 kWp Photovoltaikanlage installiert und vermietet.
Der Mietvertrag läuft derzeit noch bis 2031.
Heizungsanlage
Gazheizung aus 2011 und ein Jahresenergiebedarf von 104 kWh/m²a
Photovoltaikanlage:
Gesamtleistung: 80,96 kWp
Gesamtfläche: 647,68 m²
Fazit
Vielseitig modern und erweiterungsfähige Halle sucht neuen Eigentümer.
In einem individuellen persönlichen Gespräch können wir Ihnen die Möglichkeiten des Gewerbes erläutern. Überzeugen Sie sich selbst von der Vielfältigkeit und der Lage des modernen Hallenkomplexes und vereinabren SIe einen individuellen Besichtigungstermin.
Grundstück:
Das Grundstück mit einer Fläche von ca. 2.936 m² und weiteren 747 m² eintragen, ist noch nicht vollkommen bebaut und läßt somit dem neuen Besitzer noch Möglichkeiten offen. Der Außenbereich bietet großzügige Lager- und Stellflächen – ideal für Material, Fahrzeuge oder Fuhrpark.
Baujahr
Fertigstellung ca. 2011 in Skelettbauweise errichtet.
Hallenfläche:
ca. 769,82 m²
Büro- und Sozialräume:
ca. 215,1 m²
Beschreibung
Die isolierte Halle mit Betonboden, 80 mm dicken Sandwichelementen für die Fassade und im Dach 100/140 mm, massiven Sockel, Dachüberstand für bessere Klimabedingungen im Sommer und im Winter, ist vom Eigentümer selbst erichtet wurden. Die Halle wurde so gebaut, dass problemlos ein weiteres Element angebaut werden kann. Neben der Halle ist genügend Platz, um auch eine zweite Zuwegung für den neu errichteten Teil der Halle, zu schaffen.
Aufteilung Hallenbereich
moderne isolierte Halle (7 m bis Traufe) bzw. Produktionsbereich und Lager mit Kranbahn (Tragkraft von 5 t), Rolltor von ca. 4,25 m Höhe und 5 m Breite.
In der Halle befindet sich ein Technikraum und eine Toilette für die Mitarbeiter.
Aufteilung Verwaltung und Sozialräume
Erdgeschoss: Empfangsbereich, vier geräumige Büroräume, Küche, Pausenraum, Umkleideraum, Waschraum, WC-Anlagen
Fenster
Kunststofffenster mit Isolierverglasung im Bürobereich sorgen für gute Wärmedämmung und Tageslichtkomfort.
Dach
Auf dem nach Süden ausgerichteten Dächern des Bürotraktes und der Montagehalle wurde eine 80,96 kWp Photovoltaikanlage installiert und vermietet.
Der Mietvertrag läuft derzeit noch bis 2031.
Heizungsanlage
Gazheizung aus 2011 und ein Jahresenergiebedarf von 104 kWh/m²a
Photovoltaikanlage:
Gesamtleistung: 80,96 kWp
Gesamtfläche: 647,68 m²
Fazit
Vielseitig modern und erweiterungsfähige Halle sucht neuen Eigentümer.
In einem individuellen persönlichen Gespräch können wir Ihnen die Möglichkeiten des Gewerbes erläutern. Überzeugen Sie sich selbst von der Vielfältigkeit und der Lage des modernen Hallenkomplexes und vereinabren SIe einen individuellen Besichtigungstermin.
Sonstige Informationen
Übernahme:
Nach Absprache mit dem Verkäufer
Besichtigungen:
Nur nach vorheriger Terminabsprache mit Rücksicht auf den Verkäufer. Terminabsprache unter: +49 2828 92199 (Büro Emmerich-Elten), +49 2824-965211 (Büro Kalkar), +49 2874 902572 (Büro Isselburg-Bocholt)
Provision:
Vom Verkäufer sowie Käufer sind mit Abschluss des Kaufvertrages eine Vermittlungs- bzw. Nachweisprovision vom Gesamtkaufpreis an die Rainer Elsmann Immobilien - Immobilienteam Niederrhein GmbH zu zahlen. Die Provisionshöhe entnehmen Sie bitte den Angaben in der Broschüre bzw. auf unserer Webseite.
Hinweis:
Sind mehrere Kaufinteressenten für die Immobilie vorhanden, wird der Verkäufer seine Verkaufsentscheidung treffen; gegebenenfalls kann es zu einem Bieterverfahren kommen.
Der Makler wird die Entscheidungen den Kaufinteressenten übermitteln. Wir weisen daraufhin, dass den Kaufinteressenten keine Schadensersatzansprüche zustehen weder gegen den Verkäufer noch gegen den Makler. Deshalb Vorsicht bei Vorleistungen (z.B. Gutachterkosten)
Allgemein:
Sämtliche, in diesem Angebot enthaltenen Angaben, Zeichnungen, Abmessungen und Preisangaben beruhen auf Angaben des Verkäufers, oder eines Dritten. Die Benennungen der Räume/Zimmer beziehen sich auf die aktuelle Nutzung und ggf. nicht auf die baurechtlichen Genehmigungen. Insbesondere im Falle älterer, bewohnter oder umgebauter Immobilien kann letzten Endes nicht immer gewährleistet werden, dass der neueste Stand der Technik eingehalten ist und das Objekt daneben allen Anforderungen Stand hält. Der Makler übernimmt in der Folge keine Gewähr für die Richtigkeit der von ihm lediglich weitergegebenen Informationen zur Beschaffenheit der Immobilie und/oder deren uneingeschränkter Eignung zu einer vorgesehenen Nutzung. Soweit der Makler neben der eigenen Sorgfalt auch für eigene Auskünfte haftet, ist diese Haftung auf grobe Fahrlässigkeit oder vorsätzliches Handeln beschränkt. Es gelten die allgemeinen Geschäftsbedingungen.
Übersetzungen:
Die Übersetzungen auf unserer Webseite erfolgen automatisch mit Deepl.
Informatie voor Nederlanders:
Wij spreken Nederlands!
Daarnaast begeleiden wij Nederlanders niet alleen bij de aankoop van een huis in Duitsland en alles wat daarbij komt kijken maar ook bij de emigratie naar Duitsland. Neem gewoon contact met ons op en laat u informeren!
Lageplan