Exposé
Objektart:
Büro / Praxen
» Bueroflaeche
» Miete
Standort: Büro / Praxen »
Deutschland » Berlin » Berlin, Stadt (Kreis) » Berlin
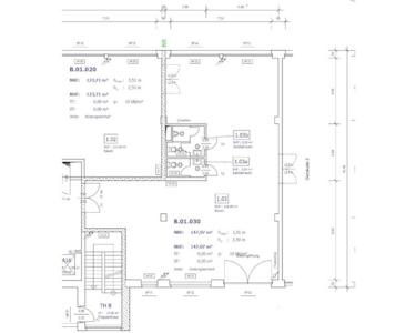
Bürostandort für kleine bis mittlere Unternehmen – 147,07 m² im Econopark Berlin-Marzahn
Bürofläche zum Innenhof
Das Wichtigste auf einen Blick:
| Objektnummer: | 9294775 |
Preise
| Kaltmiete (netto) | 1.778 € |
| Nebenkosten | 50 € |
| Kaution | 5.334 € |
Flächen
| Gesamtfläche | 156,43 m² |
| Bürofläche | 147,07 m² |
| Maklerprovision | keine Provision, courtagefrei |
Objekt Adresse
Döbelner Straße 2a Aufgang B
12627 Berlin
- Berlin
Sonstige Angaben
| Baujahr | 1999 |
| Verfügbar ab | sofort |
| Garage/Stellplätze | 1 |
| Anzahl der Etagen im Haus | 1 |
| Inserat befindet sich im Stockwerk | 1 |
| Boden | Teppich |
| Fahrstuhl | Ja |
| Garage/Stellplätze | 1 |
| Heizungsart | Zentralheizung |
| Energieträger/Befeuerung | Gas |
Objektbeschreibung
Wir suchen ab sofort einen Nachmieter für unsere Gewerbeeinheit.
Die Vermietung läuft über die GSG Berlin GmbH. Die Miete entspricht unserer aktuellen Miethöhe, kann bei einer Neuvermietung jedoch ggf. angepasst werden.
• ruhiges Büro mit ca. 147 m² Nutzfläche auf einer Etage
• im 1. OG gelegen
• viel Tageslicht für eine optimale Arbeitsatmosphäre
• Gegensprech- und Klingelanlage
• Wachschutz
• Highspeed-Internet möglich
• Küche sowie D/H WC-Anlagen vorhanden
• Zugang zu Lasten- und Personenaufzügen vorhanden
• digitales Wegeleitsystem
• Betreuung des Objektes durch festen Hausmeister
Ausstattung Bürobereich:
• Teppichboden
• frisch eingebaute Küchenzeile
• ausreichend Steckdosen für 4–6 Arbeitsplätze
• Markisen an allen Fenstern zur optimalen Verschattung
Ausstattung Lagerbereich:
• Starkstromdosen installiert
• gute Beleuchtung im Flur- und Lagerbereich
• Markisen an allen Fenstern zur optimalen Verschattung
Die Einheit eignet sich ideal für Unternehmen, die Büro- und Lagerflächen kombinieren möchten.
Die Vermietung läuft über die GSG Berlin GmbH. Die Miete entspricht unserer aktuellen Miethöhe, kann bei einer Neuvermietung jedoch ggf. angepasst werden.
• ruhiges Büro mit ca. 147 m² Nutzfläche auf einer Etage
• im 1. OG gelegen
• viel Tageslicht für eine optimale Arbeitsatmosphäre
• Gegensprech- und Klingelanlage
• Wachschutz
• Highspeed-Internet möglich
• Küche sowie D/H WC-Anlagen vorhanden
• Zugang zu Lasten- und Personenaufzügen vorhanden
• digitales Wegeleitsystem
• Betreuung des Objektes durch festen Hausmeister
Ausstattung Bürobereich:
• Teppichboden
• frisch eingebaute Küchenzeile
• ausreichend Steckdosen für 4–6 Arbeitsplätze
• Markisen an allen Fenstern zur optimalen Verschattung
Ausstattung Lagerbereich:
• Starkstromdosen installiert
• gute Beleuchtung im Flur- und Lagerbereich
• Markisen an allen Fenstern zur optimalen Verschattung
Die Einheit eignet sich ideal für Unternehmen, die Büro- und Lagerflächen kombinieren möchten.
Ausstattung
Fahrstuhl, Teppichboden, Sonstiges (s. Text)
Lage des Objektes
Gute Anbindung über die Landsberger Allee/Landsberger Chaussee
• Schnelle Verbindung ans Umland über den Berliner Ring
• Zwei Straßenbahnstationen (M6, M18) am U-Bahnhof Hellersdorf/Alice-Salomon-Platz
Der Econopark Döbelner Straße liegt in einer lebendigen Umgebung mit zahlreichen Wohngebieten, Einzelhandelsgeschäften und Dienstleistungsbetrieben. In der Nähe befinden sich auch Sport- und Freizeiteinrichtungen, die für eine ausgewogene Work-Life-Balance sorgen.
Nur zwei Straßenbahnstationen (M6, M18) entfernt, am U-Bahnhof Hellersdorf/Alice-Salomon-Platz, finden Sie das Einkaufs- und Kulturzentrum Helle Mitte. Dieses Zentrum beherbergt den Dienstsitz des Bezirksamtes Marzahn-Hellersdorf, ein Ärztehaus und eine Rettungsstelle. Darüber hinaus bietet es vielfältige Einkaufsmöglichkeiten, Indoor-Klettern und Gastronomie, die den Alltag bereichern.
Infrastruktur (im Umkreis von 5 km):
Apotheke, Lebensmittel-Discount, Allgemeinmediziner, Kindergarten, Grundschule, Gymnasium, Gesamtschule, Öffentliche Verkehrsmittel
• Schnelle Verbindung ans Umland über den Berliner Ring
• Zwei Straßenbahnstationen (M6, M18) am U-Bahnhof Hellersdorf/Alice-Salomon-Platz
Der Econopark Döbelner Straße liegt in einer lebendigen Umgebung mit zahlreichen Wohngebieten, Einzelhandelsgeschäften und Dienstleistungsbetrieben. In der Nähe befinden sich auch Sport- und Freizeiteinrichtungen, die für eine ausgewogene Work-Life-Balance sorgen.
Nur zwei Straßenbahnstationen (M6, M18) entfernt, am U-Bahnhof Hellersdorf/Alice-Salomon-Platz, finden Sie das Einkaufs- und Kulturzentrum Helle Mitte. Dieses Zentrum beherbergt den Dienstsitz des Bezirksamtes Marzahn-Hellersdorf, ein Ärztehaus und eine Rettungsstelle. Darüber hinaus bietet es vielfältige Einkaufsmöglichkeiten, Indoor-Klettern und Gastronomie, die den Alltag bereichern.
Infrastruktur (im Umkreis von 5 km):
Apotheke, Lebensmittel-Discount, Allgemeinmediziner, Kindergarten, Grundschule, Gymnasium, Gesamtschule, Öffentliche Verkehrsmittel
Sonstige Informationen
Heizungsart: Zentralheizung
Energieträger: Gas
Energieausweis nicht vorhanden
Makleranfragen nicht erwünscht. Nach § 7 UWG sind unaufgeforderte Kontaktaufnahmen durch Makler ohne ausdrückliche Einwilligung des Empfängers verboten!
ohne-makler (OM) ist weder Anbieter noch Vermittler der Immobilie. OM betreibt eine Plattform für Immobilieneigentümer, die unter anderem die gleichzeitige Veröffentlichung einzelner Inserate auf mehreren Immobilienportalen ermöglicht. Die Inhalte dieser Inserate werden ausschließlich von Dritten verantwortet. Für die Richtigkeit, Vollständigkeit oder Rechtmäßigkeit der Angaben übernimmt OM keine Haftung. Hinweise auf mögliche Rechtsverstöße können jederzeit gemeldet werden und werden nach Prüfung umgehend bearbeitet.
Küchenzeile
mittige Lager-/ Bürofläche
Lager- / Bürofläche zur Straße
Toiletten (Damen und Herren)
Flur Personen und Lastenaufzug
Eingangstür vom Büro
Grundriss