Exposé
Objektart:
Hallen / Lager / Produktion
» Halle
» Miete
Standort: Hallen / Lager / Produktion »
Deutschland » Nordrhein-Westfalen » Mettmann (Kreis) » Ratingen - Lintorf
Lagern - Arbeiten - Ausstellen - Oldtimer .... alles was das Herz begehrt
Das Wichtigste auf einen Blick:
| Objektnummer: | 9294749 |
Preise
| Kaltmiete (netto) | 2.000 € |
| Nebenkosten | 100 € |
Flächen
| Gesamtfläche | 240 m² |
| Freifläche | 60 m² |
| Maklerprovision | keine Provision, courtagefrei |
Objekt Adresse
40885 Ratingen - Lintorf
- Nordrhein-Westfalen
Sonstige Angaben
| Baujahr | 2025 |
| Verfügbar ab | nach Absprache |
| Heizungsart | Fußbodenheizung |
| Energieträger/Befeuerung | Luft-Wärme-Pumpe |
Objektbeschreibung
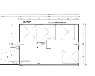
Erstbezug Neubau Fertigstellung November 2025
- gut gedämmte beheizbare Halle mit Thermo-Sandwich-Paneelen und Gründach
- Maße: 12,27 m x 18,10 m. Höhe 6,25 m - Zwischenboden kann eingezogen werden
- ebenerdige Rolltore - 4,50 m Breite x 4,00 m Höhe
- Starkstrom / Wasser / Abwasser
- Strombezug über PV-Anlage möglich
- Glasfaseranschluss
-beheizt mittels Betonkernaktivierung / Wärmepumpe
- Hallenboden: Industrieboden
- Lichtbänder in den Toren + große Lichtkuppel
- WC - Anschluss Teeküche möglich
- abgeschlossenes Gelände
- Miete zzgl. 19% Umsatzsteuer
- gut gedämmte beheizbare Halle mit Thermo-Sandwich-Paneelen und Gründach
- Maße: 12,27 m x 18,10 m. Höhe 6,25 m - Zwischenboden kann eingezogen werden
- ebenerdige Rolltore - 4,50 m Breite x 4,00 m Höhe
- Starkstrom / Wasser / Abwasser
- Strombezug über PV-Anlage möglich
- Glasfaseranschluss
-beheizt mittels Betonkernaktivierung / Wärmepumpe
- Hallenboden: Industrieboden
- Lichtbänder in den Toren + große Lichtkuppel
- WC - Anschluss Teeküche möglich
- abgeschlossenes Gelände
- Miete zzgl. 19% Umsatzsteuer
Lage des Objektes
Die Halle liegt in Ratingen-Lintorf in unmittelbarer Nähe zur A 52 / A 3
Sonstige Informationen
Heizungsart: Fußbodenheizung
Energieträger: Luft-/Wasserwärme
Energieausweis nicht vorhanden
Makleranfragen nicht erwünscht. Nach § 7 UWG sind unaufgeforderte Kontaktaufnahmen durch Makler ohne ausdrückliche Einwilligung des Empfängers verboten!
ohne-makler (OM) ist weder Anbieter noch Vermittler der Immobilie. OM betreibt eine Plattform für Immobilieneigentümer, die unter anderem die gleichzeitige Veröffentlichung einzelner Inserate auf mehreren Immobilienportalen ermöglicht. Die Inhalte dieser Inserate werden ausschließlich von Dritten verantwortet. Für die Richtigkeit, Vollständigkeit oder Rechtmäßigkeit der Angaben übernimmt OM keine Haftung. Hinweise auf mögliche Rechtsverstöße können jederzeit gemeldet werden und werden nach Prüfung umgehend bearbeitet.