Exposé
Objektart:
Grundstück
» Wohnen
» Kauf
Standort: Grundstück »
Deutschland » Bayern » Starnberg (Kreis) » Feldafing
Hanggrundstück für Neubau-EFH im Herzen Feldafings
Hanggrundstück
Das Wichtigste auf einen Blick:
| Objektnummer: | 9294615 |
Preise
| Kaufpreis | 449.000 € |
| Nebenkosten | keine Angabe |
Flächen
| Grundstücksfläche | 272 m² |
| Maklerprovision | keine Provision, courtagefrei |
Objekt Adresse
82340 Feldafing
- Bayern
Sonstige Angaben
| Verfügbar ab | sofort |
Objektbeschreibung
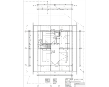
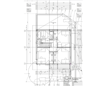
Zum Verkauf kommt ein Grundstück in Feldafing am Starnberger See. Das Hanggrundstück in ruhiger Ortslage weist eine Größe von 272 m² auf und ist bebaubar mit einem Einfamilienhaus. Eine Baugenehmigung für ein Einfamilienhaus mit ca. 150 m² Wohnfläche liegt bereits vor.
HIGHLIGHTS:
* Baugenehmigung liegt vor
* Bodengutachten liegt vor
* Bauvertragsangebot liegt vor (kein Muss)
* Moderne, zeitlose Architektur geplant
HIGHLIGHTS:
* Baugenehmigung liegt vor
* Bodengutachten liegt vor
* Bauvertragsangebot liegt vor (kein Muss)
* Moderne, zeitlose Architektur geplant
Lage des Objektes
Feldafing ist ein malerisches Städtchen am Westufer des Starnberger Sees. Der Ort ist bekannt für seine idyllische Lage und seine reizvolle Umgebung. Die natürliche Schönheit der Umgebung lädt zu Outdoor-Aktivitäten ein. Spaziergänge entlang des Sees, Wanderungen durch die nahegelegenen Wälder und Radtouren durch die malerische Landschaft sind nur einige der Möglichkeiten, die Feldafing bietet. Außerdem finden Bewohner eine Auswahl an gemütlichen Restaurants, Cafés und Geschäften vor, in denen die lokale Küche und Handwerkskunst genossen werden kann.
Infrastruktur (im Umkreis von 5 km):
Apotheke, Lebensmittel-Discount, Allgemeinmediziner, Kindergarten, Grundschule, Hauptschule, Realschule, Gymnasium, Öffentliche Verkehrsmittel
Infrastruktur (im Umkreis von 5 km):
Apotheke, Lebensmittel-Discount, Allgemeinmediziner, Kindergarten, Grundschule, Hauptschule, Realschule, Gymnasium, Öffentliche Verkehrsmittel
Sonstige Informationen
ohne-makler (OM) ist weder Anbieter noch Vermittler der Immobilie. OM betreibt eine Plattform für Immobilieneigentümer, die unter anderem die gleichzeitige Veröffentlichung einzelner Inserate auf mehreren Immobilienportalen ermöglicht. Die Inhalte dieser Inserate werden ausschließlich von Dritten verantwortet. Für die Richtigkeit, Vollständigkeit oder Rechtmäßigkeit der Angaben übernimmt OM keine Haftung. Hinweise auf mögliche Rechtsverstöße können jederzeit gemeldet werden und werden nach Prüfung umgehend bearbeitet.
Hanggrundstück
Visualisierung Baugenehmigung
Visualisierung Baugenehmigung