Exposé
Objektart:
Einzelhandel
» Einzelhandel
» Miete
Standort: Einzelhandel »
Deutschland » Niedersachsen » Osnabrück, Stadt (Kreis) » Osnabrück
Gewerbefläche in zentraler Lage von Osnabrück
Das Wichtigste auf einen Blick:
| Objektnummer: | 9292839 |
Preise
| Kaltmiete (netto) | 1.000 € |
| Nebenkosten | keine Angabe |
Flächen
| Gesamtfläche | 167,04 m² |
| Maklerprovision | keine Provision, courtagefrei |
Objekt Adresse
Süster Str. 14
49074 Osnabrück
- Niedersachsen
Sonstige Angaben
| Verfügbar ab | sofort |
| Inserat befindet sich im Stockwerk | 0 |
| Barrierefrei | |
| Keller | Ja |
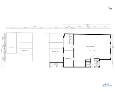
Objektbeschreibung
Die zur Vermietung stehende Gewerbefläche umfasst insgesamt 167,04 m² und bietet vielseitige Nutzungsmöglichkeiten für Einzelhandel oder Büro. Der Grundriss ist überwiegend offen gestaltet und erlaubt eine flexible Raumaufteilung. Ergänzt wird die Fläche durch ein separates Büro, eine Küche sowie ein WC. Ein Kellerraum steht als Lager- oder Archivfläche zur Verfügung. Optional können bis zu vier Stellplätze direkt am Objekt angemietet werden.
Ausstattung
Keller, Barrierefrei
Bemerkungen:
- Gesamtfläche: 167,04 m²
- Offene und helle Hauptfläche
- Separates Büro
- Küche und WC vorhanden
- Kellerraum als Lager oder Archiv nutzbar
- Bis zu 4 Stellplätze optional anmietbar
- Flexible Nutzungsmöglichkeiten für Handel oder Büro
Bemerkungen:
- Gesamtfläche: 167,04 m²
- Offene und helle Hauptfläche
- Separates Büro
- Küche und WC vorhanden
- Kellerraum als Lager oder Archiv nutzbar
- Bis zu 4 Stellplätze optional anmietbar
- Flexible Nutzungsmöglichkeiten für Handel oder Büro
Lage des Objektes
Die Immobilie befindet sich in zentraler Lage von Osnabrück. Durch die gute Anbindung an das städtische Verkehrsnetz ist der Standort sowohl für Kunden als auch für Mitarbeiter optimal erreichbar. In unmittelbarer Umgebung befinden sich zahlreiche Geschäfte, Dienstleister und Gastronomieangebote, wodurch eine hohe Frequenz und Sichtbarkeit gewährleistet ist.
Infrastruktur (im Umkreis von 5 km):
Apotheke, Lebensmittel-Discount, Allgemeinmediziner, Grundschule, Öffentliche Verkehrsmittel
Infrastruktur (im Umkreis von 5 km):
Apotheke, Lebensmittel-Discount, Allgemeinmediziner, Grundschule, Öffentliche Verkehrsmittel
Sonstige Informationen
Energieausweis nicht vorhanden
Makleranfragen nicht erwünscht. Nach § 7 UWG sind unaufgeforderte Kontaktaufnahmen durch Makler ohne ausdrückliche Einwilligung des Empfängers verboten!
ohne-makler (OM) ist weder Anbieter noch Vermittler der Immobilie. OM betreibt eine Plattform für Immobilieneigentümer, die unter anderem die gleichzeitige Veröffentlichung einzelner Inserate auf mehreren Immobilienportalen ermöglicht. Die Inhalte dieser Inserate werden ausschließlich von Dritten verantwortet. Für die Richtigkeit, Vollständigkeit oder Rechtmäßigkeit der Angaben übernimmt OM keine Haftung. Hinweise auf mögliche Rechtsverstöße können jederzeit gemeldet werden und werden nach Prüfung umgehend bearbeitet.