Exposé
Objektart:
Büro / Praxen
» Bueroflaeche
» Miete
Standort: Büro / Praxen »
Deutschland » Baden-Württemberg » Rottweil (Kreis) » Schramberg
Büro- oder Praxisfläche
Das Wichtigste auf einen Blick:
| Objektnummer: | 9291680 |
Preise
| Kaltmiete (netto) | 671 € |
| Nebenkosten | keine Angabe |
Flächen
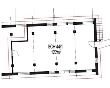
| Gesamtfläche | 122 m² |
| Bürofläche | 122 m² |
| Maklerprovision | keine Provision, courtagefrei |
Objekt Adresse
Schiltachstraße 44
78713 Schramberg
- Baden-Württemberg
Sonstige Angaben
| Verfügbar ab | sofort |
| Inserat befindet sich im Stockwerk | 1 |
| Boden | Parkett |
| Heizungsart | Zentralheizung |
| Energieträger/Befeuerung | Gas |
Objektbeschreibung
Die Mietfläche im 1. Obergeschoss überzeugt durch ihre vielseitigen Nutzungsmöglichkeiten, sei es als Praxis oder Büroraum. Die Räume wurden modernisiert und verbinden eine charmante industrielle Atmosphäre mit zeitgemäßem Komfort. Helle Fensterfronten, ein gepflegter Parkettboden und die großzügige, offene Gestaltung schaffen ein angenehmes Arbeitsumfeld. Eine eigene Toilette sowie eine kleine Teeküche runden das Angebot ab.
Ausstattung
Parkett
Lage des Objektes
Die Fläche befindet sich im Majolika Firmenpark in Schramberg, nur wenige Gehminuten von der Innenstadt entfernt. In unmittelbarer Umgebung liegen Supermärkte, Restaurants, ein Friseur sowie eine Tankstelle. Parkplätze stehen direkt vor dem Gebäude zur Verfügung, zusätzlich gibt es eine E-Ladesäule. Mit über 100 ansässigen Unternehmen ist der Gewerbepark ein lebendiger Standort, der sowohl für Mitarbeitende als auch für Kundschaft sehr gut erreichbar ist.
Infrastruktur (im Umkreis von 5 km):
Apotheke, Lebensmittel-Discount, Allgemeinmediziner, Kindergarten, Grundschule, Hauptschule, Realschule, Gymnasium, Öffentliche Verkehrsmittel
Infrastruktur (im Umkreis von 5 km):
Apotheke, Lebensmittel-Discount, Allgemeinmediziner, Kindergarten, Grundschule, Hauptschule, Realschule, Gymnasium, Öffentliche Verkehrsmittel
Sonstige Informationen
Heizungsart: Zentralheizung
Energieträger: Gas
Energieausweis nicht vorhanden
Makleranfragen nicht erwünscht. Nach § 7 UWG sind unaufgeforderte Kontaktaufnahmen durch Makler ohne ausdrückliche Einwilligung des Empfängers verboten!
ohne-makler (OM) ist weder Anbieter noch Vermittler der Immobilie. OM betreibt eine Plattform für Immobilieneigentümer, die unter anderem die gleichzeitige Veröffentlichung einzelner Inserate auf mehreren Immobilienportalen ermöglicht. Die Inhalte dieser Inserate werden ausschließlich von Dritten verantwortet. Für die Richtigkeit, Vollständigkeit oder Rechtmäßigkeit der Angaben übernimmt OM keine Haftung. Hinweise auf mögliche Rechtsverstöße können jederzeit gemeldet werden und werden nach Prüfung umgehend bearbeitet.