Exposé
Objektart:
Büro / Praxen
» Buerohaus
» Miete
Standort: Büro / Praxen »
Deutschland » Sachsen » Leipzig, Stadt (Kreis) » Leipzig
BUERO. & PRAXIS.Fläche im Zentrum des Waldstraßenviertels teilbar ab 75m²
Außenansicht
Das Wichtigste auf einen Blick:
| Objektnummer: | 9290473 |
Preise
| Miete für das Objekt | Auf Anfrage |
| Nebenkosten | keine Angabe |
| Mietpreis pro m² | 15,58 € |
Flächen
| Bürofläche | 160,46 m² |
| Bürofläche | 75,7 m² |
| Fläche teilbar ab | 75,7 m² |
| Maklerprovision | provisionsfrei |
Objekt Adresse
Tschaikowskistraße 16
04105 Leipzig
Sonstige Angaben
| Zimmer | 6 |
| Verfügbar ab | keine Angabe |
Beschreibung der Immobilie
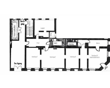
Im Erdgeschoss eines liebevoll sanierten Gründerzeithauses aus dem Jahr 1895 im beliebten Waldstraßenviertel steht eine flexibel nutzbare Gewerbeeinheit zur Vermietung. Die Fläche liegt ebenerdig und wurde zuletzt als Ausstellungs- und Verkaufsraum für italienisches Designmobiliar genutzt. Sämtliche Räume verfügen über Tageslicht, sind mit Parkett oder Fliesen ausgestattet und können teilweise durch Trockenbauarbeiten noch geöffnet werden. Die typischen Kapseldecken des Altbaus wurden weitgehend erhalten und unterstreichen den historischen Charme.
Der Zugang erfolgt über einen repräsentativen Eingangsbereich an der Gebäudeecke; ein zweiter Zugang mit Anlieferungsmöglichkeit befindet sich in der Hinrichsenstraße. Fahrradstellplätze sind vorhanden. Im Haus haben sich bereits sowoh Büro-, sowie Praxisnutzer als auch eine Kanzlei angesiedelt.
Es besteht außerdem die Möglichkeit einen weiteren Straßenzugang zu schaffen, so dass die Einheit in zwei Einheiten von 75,70 m² und 84,76 m² aufgeteilt werden könnte.
Der Zugang erfolgt über einen repräsentativen Eingangsbereich an der Gebäudeecke; ein zweiter Zugang mit Anlieferungsmöglichkeit befindet sich in der Hinrichsenstraße. Fahrradstellplätze sind vorhanden. Im Haus haben sich bereits sowoh Büro-, sowie Praxisnutzer als auch eine Kanzlei angesiedelt.
Es besteht außerdem die Möglichkeit einen weiteren Straßenzugang zu schaffen, so dass die Einheit in zwei Einheiten von 75,70 m² und 84,76 m² aufgeteilt werden könnte.
Lage & Infrastruktur
Die Gewerbefläche befindet sich im Zentrum des historischen Waldstraßenviertels – einem der größten geschlossenen Gründerzeitareale Europas. Dieses Viertel besticht durch seine beeindruckende Architektur, die von eleganten klassizistischen Stadthäusern bis zu kunstvollen Jugendstilvillen reicht. Die Tschaikowskistraße, eine ruhige Seitenstraße, vereint die Nähe zur Innenstadt mit dem besonderen Flair eines gewachsenen Wohnumfelds. Einkaufsmöglichkeiten, gastronomische Angebote und Anbindungen an den öffentlichen Nahverkehr sind bequem in wenigen Minuten zu Fuß erreichbar – ideal sowohl für Kunden als auch für Mitarbeitende.
Sonstige Informationen
Der Mietpreis richtet sich nach Ausstattung, Mietvertragslaufzeit und Lage im Objekt und liegt ca. zwischen 15,58 und 17,58 EUR/m² zzgl. Nebenkosten. Gern unterbreiten wir Ihnen Ihr persönliches Mietangebot.
BUEROanmietung leicht gemacht?
Bitte sprechen Sie uns an, gern stellen wir Ihnen eine Auswahl geeigneter Büroflächenangebote zusammen.
Für Fragen, ein persönliches Gespräch oder auch eine persönliche Terminvereinbarung
stehen wir Ihnen gern telefonisch unter 0341 | 5643000 zur Verfügung.
Außenansicht
Innenansicht
Innenansicht
Innenansicht
Grundriss