Exposé
Objektart:
Wohnung
» Erdgeschoss
» Kauf
Standort: Wohnung »
Deutschland » Sachsen » Chemnitz, Stadt (Kreis) » Chemnitz
Zentral gelegene Eigentumswohnung in gepflegtem Mehrfamilienhaus
Rückansicht
Angeboten von:
Marko Künne Immobilien
Käthe-Kollwitz-Str. 58c
04109 Leipzig
Deutschland
Telefon:+49(0)341-4429566
Fax:+49(0)341-2253930
www.kuenne-immobilien.de
| Telefon: | 0341 442 9566 |
| Fax: | 0341 2253930 |
Das Wichtigste auf einen Blick:
| Objektnummer: | 9290371 |
Preise
| Kaufpreis | 63.500 € |
| Nebenkosten | keine Angabe |
| Kaufpreis pro m² | 1094,83 € |
| Hausgeld | 263,03 € |
Flächen
| Wohnfläche | 58 m² |
| Maklerprovision | 3.778,-€ |
Objekt Adresse
09111 Chemnitz
- Sachsen
Sonstige Angaben
| Zimmer | 2 |
| Verfügbar ab | keine Angabe |
| Heizungsart | Zentralheizung |
| Wesentlicher Energieträger | Fernwärme |
| Energieträger/Befeuerung | Fernwärme |
Objektbeschreibung
Die vermietete 2-Raum-Wohnung befindet sich in einer ruhigen, sehr zentralen Wohnlage von Chemnitz.
2007/2008 wurde das gesamte Wohnhaus umfassend saniert und modernisiert.
Die Wohnung selbst verfügt über ca. 58,00 m² Wohnfläche mit Einbauküche.
2025 wurde sie für ca. 5,51 €/m² zzgl. 25€ für die Einbauküche vermietet.
' frisch, engagiert, solide '
Die Künne Immobilien Gruppe ist professioneller Dienstleister der Immobilienbranche und steht Ihnen in den Bereichen Projektentwicklung, Verkauf, Vermietung, Verwaltung und Facility Management zur Verfügung. Für weitere Informationen und Einblicke besuchen Sie unsere Homepage: www.kuenne-gruppe.de
Sie wollen Ihre Immobilie verkaufen? Egal ob Mehrfamilien- oder Einfamilienhaus, Eigentumswohnung, Grundstück oder Neubau- bzw. Bauträgerprojekt. Wir vermitteln kompetent, transparent und zügig Ihre Immobilie, bundesweit.
2007/2008 wurde das gesamte Wohnhaus umfassend saniert und modernisiert.
Die Wohnung selbst verfügt über ca. 58,00 m² Wohnfläche mit Einbauküche.
2025 wurde sie für ca. 5,51 €/m² zzgl. 25€ für die Einbauküche vermietet.
' frisch, engagiert, solide '
Die Künne Immobilien Gruppe ist professioneller Dienstleister der Immobilienbranche und steht Ihnen in den Bereichen Projektentwicklung, Verkauf, Vermietung, Verwaltung und Facility Management zur Verfügung. Für weitere Informationen und Einblicke besuchen Sie unsere Homepage: www.kuenne-gruppe.de
Sie wollen Ihre Immobilie verkaufen? Egal ob Mehrfamilien- oder Einfamilienhaus, Eigentumswohnung, Grundstück oder Neubau- bzw. Bauträgerprojekt. Wir vermitteln kompetent, transparent und zügig Ihre Immobilie, bundesweit.
Lage des Objektes
Die Universitätsstadt Chemnitz zählt zu den wachstumsstärksten Städten in Sachsen und hat derzeit ca. 247.000 Einwohner. Die moderne Industriemetropole bietet attraktive Wohnungen, Einkaufszentren, Grünanlagen und Parks sowie eine vielfältige Kulturszene. Intellektuelles Zentrum ist die Technische Universität Chemnitz samt Forschungseinrichtungen rund um den Technologie Campus. Derzeit studieren ca. 13.000 Studenten in der Stadt.
Chemnitz ist lebendig, offen für Neues und nennt sich berechtigt "Stadt der Moderne". Neben einer ausgeprägten sozialen Infrastruktur mit einem ansprechenden Kinderbetreuungsangebot, ist die Stadt verkehrstechnisch, durch die Autobahnen A4, A72 und weitere Bundesstraßen, sehr gut an das Umland angebunden.
Chemnitz ist lebendig, offen für Neues und nennt sich berechtigt "Stadt der Moderne". Neben einer ausgeprägten sozialen Infrastruktur mit einem ansprechenden Kinderbetreuungsangebot, ist die Stadt verkehrstechnisch, durch die Autobahnen A4, A72 und weitere Bundesstraßen, sehr gut an das Umland angebunden.
Sonstige Informationen
Alle Angaben sind ohne Gewähr und basieren ausschließlich auf Informationen, die uns von unserem Auftraggeber zur Verfügung gestellt wurden. Wir übernehmen keine Gewähr für die Vollständigkeit, Richtigkeit und Aktualität dieser Angaben.
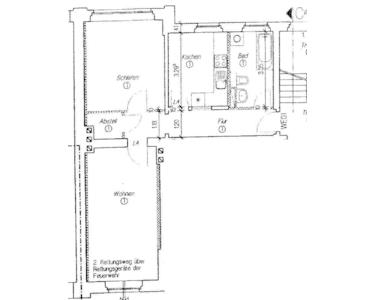
Grundriss WE 01