Exposé
Objektart:
Haus
» Einfamilienhaus
» Kauf
Standort: Haus »
Deutschland » Bayern » Landshut (Kreis) » Landshut
AIGNER – Viel Raum für Familie, Arbeit und Ideen – vielseitiges Einfamilienhaus in ruhiger Hanglage
Luftaufnahme
Das Wichtigste auf einen Blick:
| Objektnummer: | 9289847 |
Preise
| Kaufpreis | 775.000 € |
| Nebenkosten | keine Angabe |
Flächen
| Wohnfläche | 266 m² |
| Nutzfläche | 0 m² |
| Grundstücksfläche | 693 m² |
| Maklerprovision | 3,57% |
Objekt Adresse
84036 Landshut
Sonstige Angaben
| Baujahr | 1987 |
| Zimmer | 8 |
| Verfügbar ab | ab sofort verfügbar |
| Bad | 3 |
| Garage/Stellplätze | 2 |
| Bad | 3 |
| Garage/Stellplätze | 2 |
| Heizungsart | Zentralheizung |
| Energieträger/Befeuerung | Öl |
Objektbeschreibung
Dieses charmante Einfamilienhaus aus den Jahren 1986/1987 besticht durch Großzügigkeit und vielseitige Nutzungsmöglichkeiten über drei Ebenen. Auf einem sonnigen, ruhigen Grundstück entstehen ideale Voraussetzungen für Familien, die Wohnen und Arbeiten harmonisch vereinen möchten.
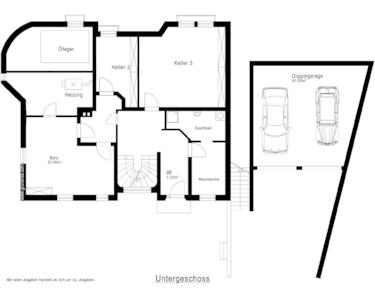
Durch die Hanglage ist das Untergeschoss ebenerdig von der Straße aus erreichbar und eignet sich hervorragend als Büro, Praxis- oder Kanzleibereich. Große Fenster sorgen für viel Tageslicht, und ein separates Duschbad auf dieser Ebene erhöht den Komfort. So lassen sich Berufliches und Privates optimal trennen – ideal auch für den Empfang von Kundinnen und Kunden.
Im Erdgeschoss steht der Mittelpunkt des Familienlebens im Vordergrund: eine großzügige Wohnküche mit angrenzendem Ess- bzw. Aufenthaltsbereich, in dem ein gemütlicher Kachelofen für wohltuende Wärme sorgt. Das separate Wohnzimmer bietet direkten Zugang zur sonnigen Südterrasse – perfekt für entspannte Stunden im Freien. Ein Gästezimmer und ein zweiter Hauseingang erweitern die Nutzungsmöglichkeiten dieses Geschosses zusätzlich.
Im Dachgeschoss warten zwei helle Schlafzimmer mit Zugang zu einem gemeinsamen Balkon, ein geräumiges Hauptbad (noch individuell gestaltbar), ein separates Duschbad sowie ein Studio mit eigener kleiner Küche und Balkon. Diese flexible Raumschaffung bietet zahlreiche Optionen – als Gästebereich, Atelier oder Rückzugsort für Jugendliche.
Der nicht ausgebaute Dachspitz mit hoher Decke bietet weiteren Stauraum und Potenzial für kreative Ausbauideen. Eine große Doppelgarage mit angrenzender Werkstatt rundet das Angebot ab.
Das Haus präsentiert sich in sehr gepflegtem und ordentlichem Zustand, überzeugt durch seine solide Bauweise und den großzügigen Grundriss, der vielfältige Nutzungsmöglichkeiten ermöglicht.
Durch die Hanglage ist das Untergeschoss ebenerdig von der Straße aus erreichbar und eignet sich hervorragend als Büro, Praxis- oder Kanzleibereich. Große Fenster sorgen für viel Tageslicht, und ein separates Duschbad auf dieser Ebene erhöht den Komfort. So lassen sich Berufliches und Privates optimal trennen – ideal auch für den Empfang von Kundinnen und Kunden.
Im Erdgeschoss steht der Mittelpunkt des Familienlebens im Vordergrund: eine großzügige Wohnküche mit angrenzendem Ess- bzw. Aufenthaltsbereich, in dem ein gemütlicher Kachelofen für wohltuende Wärme sorgt. Das separate Wohnzimmer bietet direkten Zugang zur sonnigen Südterrasse – perfekt für entspannte Stunden im Freien. Ein Gästezimmer und ein zweiter Hauseingang erweitern die Nutzungsmöglichkeiten dieses Geschosses zusätzlich.
Im Dachgeschoss warten zwei helle Schlafzimmer mit Zugang zu einem gemeinsamen Balkon, ein geräumiges Hauptbad (noch individuell gestaltbar), ein separates Duschbad sowie ein Studio mit eigener kleiner Küche und Balkon. Diese flexible Raumschaffung bietet zahlreiche Optionen – als Gästebereich, Atelier oder Rückzugsort für Jugendliche.
Der nicht ausgebaute Dachspitz mit hoher Decke bietet weiteren Stauraum und Potenzial für kreative Ausbauideen. Eine große Doppelgarage mit angrenzender Werkstatt rundet das Angebot ab.
Das Haus präsentiert sich in sehr gepflegtem und ordentlichem Zustand, überzeugt durch seine solide Bauweise und den großzügigen Grundriss, der vielfältige Nutzungsmöglichkeiten ermöglicht.
Ausstattung
* große, sehr gut nutzbare Zimmer
* Wohnzimmer mit Zugang in den Garten und Südterrasse
+ große, gemütliche Wohnküche mit angrenzendem Esszimmer/ Stube
* 5 sep. Schlafzimmer
* 2 sep. Duschbäder
* ein Hauptbad mit Badewanne (muss renoviert, bzw. fertiggestellt werden)
* großzügiges Treppenhaus/ Dielen
* zwei Hauseingänge, so dass man wunderbar Wohnen und Arbeiten trennen kann
* 2 Balkone
* sonniges Grundstück mit tollem Blick
*Außenjalousien
* große Doppelgarage
* sep. Werkstatt
... und vieles mehr!
Bei den ausgestatteten Zimmern handelt es sich um Visualisierungen / Einrichtungsbeispiele!
* Wohnzimmer mit Zugang in den Garten und Südterrasse
+ große, gemütliche Wohnküche mit angrenzendem Esszimmer/ Stube
* 5 sep. Schlafzimmer
* 2 sep. Duschbäder
* ein Hauptbad mit Badewanne (muss renoviert, bzw. fertiggestellt werden)
* großzügiges Treppenhaus/ Dielen
* zwei Hauseingänge, so dass man wunderbar Wohnen und Arbeiten trennen kann
* 2 Balkone
* sonniges Grundstück mit tollem Blick
*Außenjalousien
* große Doppelgarage
* sep. Werkstatt
... und vieles mehr!
Bei den ausgestatteten Zimmern handelt es sich um Visualisierungen / Einrichtungsbeispiele!
Lage des Objektes
Das Einfamilienhaus befindet sich in einer der begehrtesten Wohnlagen Landshuts – am Birkenberg / Metzental im Stadtteil Achdorf. Diese ruhige und grüne Umgebung überzeugt durch beeindruckende Weitblicke, ein hohes Maß an Privatsphäre und ein ausgesprochen angenehmes Wohnumfeld.
Die Lage ist ideal für Pendler: Über die nahegelegene Autobahn A92 erreichen Sie sowohl München als auch den Flughafen in kurzer Zeit. Gleichzeitig profitieren Sie von der hohen Lebensqualität Landshuts mit seiner historischen Altstadt, vielfältigen Freizeitangeboten, Schulen, Ärzten und zahlreichen Einkaufsmöglichkeiten.
Im direkten Umfeld finden sich Kindergärten, Schulen, das Kreiskrankenhaus sowie verschiedene Einkaufsmöglichkeiten für den täglichen Bedarf. Die hervorragende Anbindung an das Stadtzentrum und die umliegenden Städte macht diesen Standort besonders attraktiv.
Ein weit verzweigtes Netz an Spazier- und Radwegen lädt dazu ein, die Natur direkt vor der Haustür zu genießen – ob beim Joggen, Radfahren oder entspannten Spaziergängen. Familien profitieren von der Nähe zu zahlreichen Freizeit- und Ausflugszielen, Badeseen und Erholungsgebieten. Gleichzeitig sind sowohl die Landshuter Innenstadt als auch München bequem erreichbar, sodass Sie auch das kulturelle und kulinarische Angebot der Großstadt nutzen können.
Diese Lage verbindet Ruhe, Natur und Stadtnähe – und bietet damit ein ideales Umfeld für Familien, die Lebensqualität und Erholung schätzen.
Die Lage ist ideal für Pendler: Über die nahegelegene Autobahn A92 erreichen Sie sowohl München als auch den Flughafen in kurzer Zeit. Gleichzeitig profitieren Sie von der hohen Lebensqualität Landshuts mit seiner historischen Altstadt, vielfältigen Freizeitangeboten, Schulen, Ärzten und zahlreichen Einkaufsmöglichkeiten.
Im direkten Umfeld finden sich Kindergärten, Schulen, das Kreiskrankenhaus sowie verschiedene Einkaufsmöglichkeiten für den täglichen Bedarf. Die hervorragende Anbindung an das Stadtzentrum und die umliegenden Städte macht diesen Standort besonders attraktiv.
Ein weit verzweigtes Netz an Spazier- und Radwegen lädt dazu ein, die Natur direkt vor der Haustür zu genießen – ob beim Joggen, Radfahren oder entspannten Spaziergängen. Familien profitieren von der Nähe zu zahlreichen Freizeit- und Ausflugszielen, Badeseen und Erholungsgebieten. Gleichzeitig sind sowohl die Landshuter Innenstadt als auch München bequem erreichbar, sodass Sie auch das kulturelle und kulinarische Angebot der Großstadt nutzen können.
Diese Lage verbindet Ruhe, Natur und Stadtnähe – und bietet damit ein ideales Umfeld für Familien, die Lebensqualität und Erholung schätzen.
Sonstige Informationen
Baujahr: 1987
Heizungsart: Zentralheizung
Befeuerung/Energieträger: Öl
Energieausweistyp: Verbrauchsausweis
Energiekennwert: 110,4 kWh/(m²*a)
Energieeffizienzklasse: D
Stube visualisiert
Wohnzimmer visualisiert
Küche visualisiert
Lage
Duschbad
Grundriss Erdgeschoss
Grundriss Dachgeschoss
Grundriss Untergeschoss - ebenerdig begehbar