Exposé
Objektart:
Haus
» Doppelhaushaelfte
» Kauf
Standort: Haus »
Deutschland » Bayern » München, Landeshauptstadt (Kreis) » München
Neubau einer DHH mit Keller in südlicher Ausrichtung in ruhiger Toplage in Bogenhausen-Denning
Hausansicht
Das Wichtigste auf einen Blick:
| Objektnummer: | 9289206 |
Preise
| Kaufpreis | 1.564.000 € |
| Nebenkosten | keine Angabe |
Flächen
| Wohnfläche | 150 m² |
| Nutzfläche | 57 m² |
| Grundstücksfläche | 354 m² |
| Maklerprovision | -Auf den Grundstückskaufpreis 1,79% inkl. MwSt. |
Objekt Adresse
81929 München
Sonstige Angaben
| Baujahr | 2026 |
| Zimmer | 5 |
| Verfügbar ab | Ende 2026 |
| Anzahl der Etagen im Haus | 3 |
| Heizungsart | Fußbodenheizung |
| Energieträger/Befeuerung | Luft-Wärme-Pumpe |
Objektbeschreibung
Diese moderne Doppelhaushälfte (EG+OG+DG+KG) entsteht im Münchner Stadtteil Bogenhausen-Denning in sehr beliebter Lage. Das Haus wird massiv in Ziegelbauweise mit modernem Wärmedämmverbundsystem gebaut und bietet Ihnen flexible Grundrisse. Es wird nach neuesten energetischen Standards für Sie gebaut. Das Haus wird voll unterkellert errichtet. Die Wohnfläche beträgt ca. 150 m², die Grundfläche nach DIN 277 (ohne Keller) beträgt ca. 177 m². Die Kellerfläche beträgt ca. 57 m² (Nutzfläche). Das Haus wurde mit 5 Zimmern geplant, kann aber ganz nach Ihrem persönlichen Bedarf angepasst werden. Die dargestellten Grundrisse sind Beispiele seitens des Generalübernehmers und können noch individuell angepasst werden. Zu dem Haus wurde ein Stellplatz geplant, welcher preislich noch dazukommt oder in Eigenleistung errichtet wird. Alle Fenster sind aus Kunststoff, 3-fach verglast und mit elektrischen Rollläden ausgestattet. Eine moderne Photovoltaik-Anlage ist bereits im Preis inbegriffen. Die Grundstücks- und Haustechnik werden nach aktuellem Standard geplant. Zur effizienten Beheizung ist eine moderne Luft/Wasser-Wärmepumpe vorgesehen. Die angestrebte Bauzeit für ein Haus ohne Keller beträgt 1 Jahr ab Baubeginn. Wenn das Haus auf Bodenplatte (ohne Keller) gebaut wird, dann wird die Zahlung des Hauspreises erst nach Hausübergabe fällig, wenn mit Keller gebaut wird, dann werden 30% nach Kellerübergabe und 70% nach Hausübergabe fällig. Weitere Informationen übermitteln wir gerne anhand der Bauleistungsbeschreibung.
Zum Verkauf stehen 2 Doppelhaushälften:
DHH1: 150 m² Wfl., 361 m² Grund, reserviert
DHH2: 150 m² Wfl., 354 m² Grund, 1.564.000€
Zum Verkauf stehen 2 Doppelhaushälften:
DHH1: 150 m² Wfl., 361 m² Grund, reserviert
DHH2: 150 m² Wfl., 354 m² Grund, 1.564.000€
Ausstattung
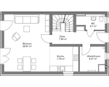
Die Doppelhaushälfte verfügt über insgesamt 3 Etagen und einen Keller (EG+OG+DG+Keller). Im Erdgeschoß befinden sich der große Wohn- Essbereich, die Küche, ein Abstellraum, eine Diele, und ein WC. Im Obergeschoß sind das Schlafzimmer, zwei Kinderzimmer, und ein Bad. Im Dachgeschoss ist ein geräumiges Studio. Im ausgebauten Keller befindet sich 2 Kellerräume und der Hauswirtschaftsraum. Die genaue Aufteilung ist noch genau bestimm- und variierbar.
Das Haus verfügt über eine hochwertige Ausstattung und ist mit allen wichtigen Details ausgestattet. Zu diesen gehören unter anderem:
- Massive Ziegelbauweise mit Wärmedämmverbundsystem und weißer Putzfassade.
- Hochwertige Kunststofffenster mit Dreifachverglasung.
- Elektrische Rollläden mit Aluminiumpanzer.
- Moderne Luft/Wasser-Wärmepumpe mit großem Warmwasserspeicher.
- Moderne Photovoltaik-Anlage
- Fußbodenheizung in den Wohnbereichen (mit Einzelraumregelung / Raumthermostaten). Die Anlage ist energieeffizient ausgelegt und kann in Kombination mit der Wärmepumpe auch kühlen.
- Ausgebauter Keller
- Kontrollierte Lüftungsanlage (zentral, Schutz der Gebäudehülle vor Feuchte).
- Hochwertiges Fliesenpaket (Badezimmer, Gäste-WC, Diele, Flure, Küche) und Markensanitärobjekte.
- Innentüren mit pflegeleichter CPL-Oberfläche (verschiedene Farbvarianten wählbar).
- Stahlholmtreppe mit massiven Holzstufen.
- Außenfensterbänke aus Aluminium (bei Putzfassade) / Innenfensterbänke in Naturstein oder Werkstein.
- Umfangreiche Elektroinstallation sowie Leerrohr-Vorrüstung für spätere Erweiterungen.
- Schutz- und Serviceleistungen: baubegleitende Organisation und Versicherungen sind Bestandteil des Angebots. Individuelle Qualitätsprüfungen und Zusatzversicherungen sind möglich.
Baunebenkosten:
Baunebenkosten in Höhe von ca. 44.000€ sind bereits im Kaufpreis inbegriffen!
Dazu gehören z.B. Hausanschlüsse, Baustrom, Bauwasser, Allgemeine Gebühren (Herstellungsbeiträge, Genehmigungen), Vermessungskosten, Teilungskosten, Eventualkosten (Gemeinsame Zuwegung, Bordsteinabsenkung) etc..
Auch Abrisskosten i.H.v. ca. 30.000€ sind bereits in den Kaufpreis einkalkuliert
Beim Abschluss eines Hausbauvertrages bis zum 31.12.2025 erhalten Sie einen Bemusterungsgutschein i.H.v. 9.500 €. Eine große Auswahl an schicken Fensterelementen, sicheren Haustüren, Wohlfühl-Badewannen und vieles mehr warten bereits auf Sie!
Die genaue Aufstellung der Baunebenkosten erhalten Sie im Rahmen eines individuellen Investitionsplanes
Das Haus verfügt über eine hochwertige Ausstattung und ist mit allen wichtigen Details ausgestattet. Zu diesen gehören unter anderem:
- Massive Ziegelbauweise mit Wärmedämmverbundsystem und weißer Putzfassade.
- Hochwertige Kunststofffenster mit Dreifachverglasung.
- Elektrische Rollläden mit Aluminiumpanzer.
- Moderne Luft/Wasser-Wärmepumpe mit großem Warmwasserspeicher.
- Moderne Photovoltaik-Anlage
- Fußbodenheizung in den Wohnbereichen (mit Einzelraumregelung / Raumthermostaten). Die Anlage ist energieeffizient ausgelegt und kann in Kombination mit der Wärmepumpe auch kühlen.
- Ausgebauter Keller
- Kontrollierte Lüftungsanlage (zentral, Schutz der Gebäudehülle vor Feuchte).
- Hochwertiges Fliesenpaket (Badezimmer, Gäste-WC, Diele, Flure, Küche) und Markensanitärobjekte.
- Innentüren mit pflegeleichter CPL-Oberfläche (verschiedene Farbvarianten wählbar).
- Stahlholmtreppe mit massiven Holzstufen.
- Außenfensterbänke aus Aluminium (bei Putzfassade) / Innenfensterbänke in Naturstein oder Werkstein.
- Umfangreiche Elektroinstallation sowie Leerrohr-Vorrüstung für spätere Erweiterungen.
- Schutz- und Serviceleistungen: baubegleitende Organisation und Versicherungen sind Bestandteil des Angebots. Individuelle Qualitätsprüfungen und Zusatzversicherungen sind möglich.
Baunebenkosten:
Baunebenkosten in Höhe von ca. 44.000€ sind bereits im Kaufpreis inbegriffen!
Dazu gehören z.B. Hausanschlüsse, Baustrom, Bauwasser, Allgemeine Gebühren (Herstellungsbeiträge, Genehmigungen), Vermessungskosten, Teilungskosten, Eventualkosten (Gemeinsame Zuwegung, Bordsteinabsenkung) etc..
Auch Abrisskosten i.H.v. ca. 30.000€ sind bereits in den Kaufpreis einkalkuliert
Beim Abschluss eines Hausbauvertrages bis zum 31.12.2025 erhalten Sie einen Bemusterungsgutschein i.H.v. 9.500 €. Eine große Auswahl an schicken Fensterelementen, sicheren Haustüren, Wohlfühl-Badewannen und vieles mehr warten bereits auf Sie!
Die genaue Aufstellung der Baunebenkosten erhalten Sie im Rahmen eines individuellen Investitionsplanes
Lage des Objektes
Bogenhausen-Denning ist eines der attraktivsten Stadtviertel in München, das durch seine ruhige und grüne Umgebung besticht. Die Wohngegend ist geprägt von gepflegten Einfamilienhäusern, Doppelhaushälften, Reihenhäusern und großzügigen Grünflächen, die zum Entspannen und Erholen einladen. Besonders Familien schätzen die hohe Lebensqualität und die ausgezeichnete Infrastruktur des Viertels.
Ein herausragendes Merkmal von Bogenhausen-Denning ist die hervorragende Anbindung an den öffentlichen Nahverkehr. Die nächste S-Bahn-Station ist bequem in ca. 8 Minuten zu Fuß erreichbar. Von dort aus gelangt man schnell und unkompliziert in die Münchner Innenstadt und zu anderen wichtigen Zielen in der Region. Zusätzlich ergänzen mehrere Buslinien die Verkehrsanbindung und sorgen dafür, dass man jederzeit mobil bleibt.
Neben der guten Verkehrsanbindung bietet Bogenhausen auch eine Vielzahl von Einkaufsmöglichkeiten, Restaurants, Cafés und Dienstleistungen, die den Alltag erleichtern. Schulen, Kindergärten und Freizeiteinrichtungen sind ebenfalls gut erreichbar, was das Viertel besonders attraktiv für Familien macht.
Insgesamt bietet Bogenhausen-Denning eine harmonische Kombination aus städtischem Komfort und naturnahem Wohnen, was es zu einem sehr begehrten Wohnort in München macht.
Ein herausragendes Merkmal von Bogenhausen-Denning ist die hervorragende Anbindung an den öffentlichen Nahverkehr. Die nächste S-Bahn-Station ist bequem in ca. 8 Minuten zu Fuß erreichbar. Von dort aus gelangt man schnell und unkompliziert in die Münchner Innenstadt und zu anderen wichtigen Zielen in der Region. Zusätzlich ergänzen mehrere Buslinien die Verkehrsanbindung und sorgen dafür, dass man jederzeit mobil bleibt.
Neben der guten Verkehrsanbindung bietet Bogenhausen auch eine Vielzahl von Einkaufsmöglichkeiten, Restaurants, Cafés und Dienstleistungen, die den Alltag erleichtern. Schulen, Kindergärten und Freizeiteinrichtungen sind ebenfalls gut erreichbar, was das Viertel besonders attraktiv für Familien macht.
Insgesamt bietet Bogenhausen-Denning eine harmonische Kombination aus städtischem Komfort und naturnahem Wohnen, was es zu einem sehr begehrten Wohnort in München macht.
Sonstige Informationen
Haftungsausschluss:
Alle Angaben in diesem Exposé wurden mit größter Sorgfalt zusammengestellt und beruhen auf Informationen, die uns vom Eigentümer bzw. Dritten zur Verfügung gestellt wurden. Eine Gewähr für die Richtigkeit, Vollständigkeit und Aktualität dieser Angaben können wir jedoch nicht übernehmen.
Wohnfläche (WoFlV): 150 m²
Grundfläche (DIN 277): 177 m²
Die genannten Werte dienen zur Orientierung und sind vor Abschluss des Kaufvertrags eigenständig zu prüfen. Maßgeblich sind ausschließlich die im notariellen Kaufvertrag und im Werkvertrag festgelegten Vereinbarungen.
Grundrisse, Visualisierungen und Illustrationen dienen der Veranschaulichung, sind nicht maßstabsgetreu und können optionale Sonderausstattungen zeigen. Ausschlaggebend ist die individuelle Planung mit dem Generalübernehmer.
Zwischenverkauf, Preisänderungen und Irrtümer bleiben ausdrücklich vorbehalten.
Weitere Informationen zu diesem und zu weiteren Objekten finden Sie unter www.Immobilien-Ried.de
Beispiel-Wohnzimmer
Beispiel-Küche-Essbereich
Beispiel-Schlafzimmer
Beispiel-Kinderzimmer
Beispiel-Zimmer
Beispiel-Bad
Grundriss-EG
Grundriss-OG
Grundriss-DG
Grundriss-KG