Exposé
Objektart:
Haus
» Einfamilienhaus
» Kauf
Standort: Haus »
Deutschland » Brandenburg » Potsdam-Mittelmark (Kreis) » Schwielowsee
Einfamilienhaus zur verwirklichung Ihres Wohntraumes am Schwielowsee
Hausansciht Vorderseite
Das Wichtigste auf einen Blick:
| Objektnummer: | 9284927 |
Preise
| Kaufpreis | 545.000 € |
| Nebenkosten | keine Angabe |
Flächen
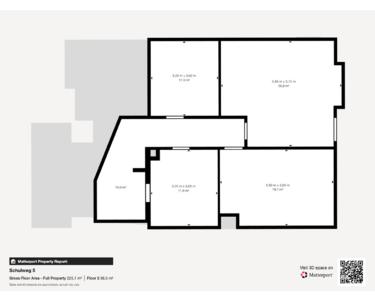
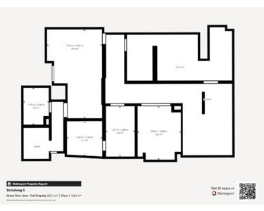
| Wohnfläche | 188,81 m² |
| Grundstücksfläche | 956 m² |
| Maklerprovision | keine Provision, courtagefrei |
Objekt Adresse
Schulweg 5
14548 Schwielowsee
- Brandenburg
Sonstige Angaben
| Baujahr | 1984 |
| Zimmer | 8 |
| Verfügbar ab | nach Absprache |
| Anzahl der Etagen im Haus | 1 |
| Boden | Teppich |
| Balkone | 0 |
| Garten | Ja |
| Terrassen | 1 |
| Keller | Ja |
| Energieausweistyp | Bedarfsausweis |
| Energieeffizienzklasse | H |
| Endenergiebedarf | 292 kWh/(m²*a) |
| Heizungsart | Zentralheizung |
| Energieträger/Befeuerung | Öl |
Objektbeschreibung
Dieses freistehende Einfamilienhaus aus dem Jahr 1984 bietet großzügige Flächen, eine solide Grundstruktur und ein weitläufiges Grundstück in attraktiver Lage – ist jedoch in vielen Bereichen renovierungsbedürftig.
Die Raumaufteilung mit 8 Zimmern auf ca. 189 m² Wohnfläche bietet ideale Voraussetzungen für Familien, Mehrgenerationenwohnen oder kreative Grundrissideen. Das Haus verfügt über eine Terrasse, einen großen Garten und umfangreiches Nebengelass, das vielseitig genutzt werden kann.
Es besteht Modernisierungsbedarf bei:
•Sanitäranlagen
•Bodenbelägen
•Heiztechnik (Ölheizung funktionsfähig, aber veraltet)
•Fenster (überwiegend älter, teilweise auszutauschen)
•Elektrik und energetische Standards
Ein Objekt mit Substanz und vielfältigen Gestaltungsmöglichkeiten.
Der ISFP (Individueller Sanierungsfahrplan) ist bereits erstellt.
Sowohl die Inanspruchnahme von Fördermitteln für die energetische Modernisierung als auch die mögliche Erweiterung des Wohnraumes bieten enormes Entwicklung- und Wertsteigerungspotential.
Die KfW (Kreditantstalt für Wiederaufbau) bietet hier Zinsgünstige Darlehen für die Sanierung an. Zusätzlich zu den sehr günstigen Finanzierungskonditionen besteht die Möglichkeit Tilgungszuschüsse zu erhalten.
Als mögliche Förderprogramme sei an dieser Stelle auf das Programm 261 der KfW und die vorhandene Eigenschaft des sog. WPB (Worst Performing Building) verwiesen.
Die Raumaufteilung mit 8 Zimmern auf ca. 189 m² Wohnfläche bietet ideale Voraussetzungen für Familien, Mehrgenerationenwohnen oder kreative Grundrissideen. Das Haus verfügt über eine Terrasse, einen großen Garten und umfangreiches Nebengelass, das vielseitig genutzt werden kann.
Es besteht Modernisierungsbedarf bei:
•Sanitäranlagen
•Bodenbelägen
•Heiztechnik (Ölheizung funktionsfähig, aber veraltet)
•Fenster (überwiegend älter, teilweise auszutauschen)
•Elektrik und energetische Standards
Ein Objekt mit Substanz und vielfältigen Gestaltungsmöglichkeiten.
Der ISFP (Individueller Sanierungsfahrplan) ist bereits erstellt.
Sowohl die Inanspruchnahme von Fördermitteln für die energetische Modernisierung als auch die mögliche Erweiterung des Wohnraumes bieten enormes Entwicklung- und Wertsteigerungspotential.
Die KfW (Kreditantstalt für Wiederaufbau) bietet hier Zinsgünstige Darlehen für die Sanierung an. Zusätzlich zu den sehr günstigen Finanzierungskonditionen besteht die Möglichkeit Tilgungszuschüsse zu erhalten.
Als mögliche Förderprogramme sei an dieser Stelle auf das Programm 261 der KfW und die vorhandene Eigenschaft des sog. WPB (Worst Performing Building) verwiesen.
Ausstattung
Terrasse, Garten, Keller, Gäste-WC, Kamin, Teppichboden
Lage des Objektes
Schwielowsee – Ortsteil Geltow zählt zu den beliebtesten Wohnlagen südwestlich von Berlin und Potsdam. Ruhig, naturnah und gleichzeitig hervorragend angebunden:
•Badestellen, Bootsanleger, Wald- und Radwege fußläufig
•Kita, Grundschule, Einkaufsmöglichkeiten im Ort
•Busverbindung und Bahnhof Caputh-Geltow in der Nähe
•Potsdam ca. 10 Min., Berlin ca. 35 Min. erreichbar
•Badestellen, Bootsanleger, Wald- und Radwege fußläufig
•Kita, Grundschule, Einkaufsmöglichkeiten im Ort
•Busverbindung und Bahnhof Caputh-Geltow in der Nähe
•Potsdam ca. 10 Min., Berlin ca. 35 Min. erreichbar
Sonstige Informationen
Heizungsart: Zentralheizung
Energieträger: Öl
Impressum:
Bongart Immobilien
Schiffbauerdamm 40
Büro 5405
10117 Berlin
+49 (0) 177 412 22 68
Inhaber: Maximilian Bongart
USt-IdNr.: DE271204680
Gewerbeerlaubnis gem. §34c GewO wurde erteilt durch:
Bezirksamt Mitte von Berlin am 03.03.2009
Zuständige Aufsichtsbehörde:
Bezirksamt Mitte von Berlin, Abt. Wirtschaft
Immobilien und Ordnungsamt
Karl-Marx-Allee 31
10178 Berlin
Makleranfragen nicht erwünscht. Nach § 7 UWG sind unaufgeforderte Kontaktaufnahmen durch Makler ohne ausdrückliche Einwilligung des Empfängers verboten!
ohne-makler (OM) ist weder Anbieter noch Vermittler der Immobilie. OM betreibt eine Plattform für Immobilieneigentümer, die unter anderem die gleichzeitige Veröffentlichung einzelner Inserate auf mehreren Immobilienportalen ermöglicht. Die Inhalte dieser Inserate werden ausschließlich von Dritten verantwortet. Für die Richtigkeit, Vollständigkeit oder Rechtmäßigkeit der Angaben übernimmt OM keine Haftung. Hinweise auf mögliche Rechtsverstöße können jederzeit gemeldet werden und werden nach Prüfung umgehend bearbeitet.
Hausansicht Rückseite
Hausansicht Rückseite
Hausansicht
Garten
Garten
Garten
Badezimmer
Badezimmer
Hauseingangsbereich
Keller
Küche
Küche
Zimmer
Zimmer
Zimmer
Wohnzimmer
Zimmer
Wohnzimmer