Exposé
Objektart:
Büro / Praxen
» Buerohaus
» Miete
Standort: Büro / Praxen »
Deutschland » Sachsen » Leipzig, Stadt (Kreis) » Leipzig
Repräsentative BUERO.fläche mit 164 m² im Musikviertel mit Balkon
Außen
Das Wichtigste auf einen Blick:
| Objektnummer: | 9281859 |
Preise
| Miete für das Objekt | Auf Anfrage |
| Nebenkosten | keine Angabe |
| Mietpreis pro m² | 14 € |
Flächen
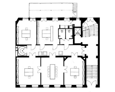
| Bürofläche | 164 m² |
| Bürofläche | 164 m² |
| Fläche teilbar ab | 164 m² |
| Maklerprovision | 1,0 Nettomonatsmiete |
Objekt Adresse
Riemannstraße 54
04107 Leipzig
Sonstige Angaben
| Zimmer | 5 |
| Verfügbar ab | keine Angabe |
Objektbeschreibung
Die klassisch gestaltete Fassade ist ein Blickfang und schafft mit ihren großzügig angelegten Fenstern helle, lichtdurchflutete Räume. Die zum ruhigen Garten gelegene Terrasse verleiht dem Gebäude einen natürlichen Ruhepol und Rückzugsort. Die zur Vermietung stehende Bürofläche liegt im Hochpaterre des Gebäudes und wird über ein denkmalgerecht saniertes und sehr repräsentatives Treppenhaus erschlossen. Die Mietfläche ist aufgrund des Parkettbodens, der Flügeltüren oder auch der Stuckdecken von der Ausstattung her sehr hochwertig und wurde vollumfänglich renoviert. Im Souterrain befindet sich außerdem ein ca. 83 m² Raum, welcher als Konferenzraum, Sozialbereich oder als erweitere Lagerfläche genutzt werden kann.
Die Fläche verfügt über folgende Grundausstattung:
- getrennte Toiletten
- Einbauküche
- Terrasse
- Datenverkabelung
Die Stellplätze befinden sich in der unmittelbaren Umgebung des Gebäudes.
Die Fläche verfügt über folgende Grundausstattung:
- getrennte Toiletten
- Einbauküche
- Terrasse
- Datenverkabelung
Die Stellplätze befinden sich in der unmittelbaren Umgebung des Gebäudes.
Lage des Objektes
Das kernsanierte Gründerzeithaus ist im Leipziger Musikviertel gelegen und bietet in zentraler, verkehrsgünstiger Lage von Leipzig einen idealen Standort für kleinere und mittlere Unternehmen. In direkter Nachbarschaft des Bundesverfassungsgerichts und südlich des Innenstadtrings gelegen, sind innerhalb weniger Minuten auch die Leipziger Innenstadt, der Hauptbahnhof, die B2 als Zubringer zum Autobahnanschluss A 14 als auch die Öffentlichen Verkehrsmittel erreicht.
Sonstige Informationen
Der Mietpreis richtet sich nach Ausstattung, Lage im Gebäude und Vertragslaufzeit und liegt zwischen 14,00 EUR/ m² und 16,00 EUR/ m².
Flächenanmietung leicht gemacht?
Bitte sprechen Sie uns an, gern stellen wir Ihnen eine Auswahl geeigneter Büroflächenangebote zusammen. Für Fragen, ein persönliches Gespräch oder auch eine persönliche Terminvereinbarung stehen wir Ihnen gern telefonisch unter 0341 | 5643000 zur Verfügung.
Hauseingang
Innenansicht
Innenansicht
Innenansicht
Innenansicht
Innenansicht
Innenansicht
Terasse
Souterrain
Grundriss EG