Exposé
Objektart:
Einzelhandel
» Einzelhandel
» Miete
Standort: Einzelhandel »
Deutschland » Niedersachsen » Cloppenburg (Kreis) » Cloppenburg
Gewerbefläche in der Innenstadt mit Parkplatzanbindung
Außenansicht
Das Wichtigste auf einen Blick:
| Objektnummer: | 9280792 |
Preise
| Miete für das Objekt | Auf Anfrage |
| Nebenkosten | keine Angabe |
Flächen
| Gesamtfläche | 1.000 m² |
| Maklerprovision | keine Provision, courtagefrei |
Objekt Adresse
Mühlenstraße 17
49661 Cloppenburg
- Niedersachsen
Sonstige Angaben
| Baujahr | 2000 |
| Verfügbar ab | 01.03.2026 |
| Anzahl der Etagen im Haus | 2 |
| Inserat befindet sich im Stockwerk | 0 |
| Heizungsart | Zentralheizung |
| Energieträger/Befeuerung | Gas |
Objektbeschreibung
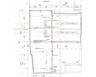
Das Objekt aus dem Jahr 2000 bietet eine moderne Gewerbefläche mit hellen Räumlichkeiten und hohen Decken. Im Erdgeschoss befinden sich ca. 630 qm und im Obergeschoss ca. 360 qm. Das Obergeschoss ist über eine großzügige Treppe erreichbar und es existiert ein Lastaufzug. Aktuell wird sie als Einzelhandel genutzt. Andere Nutzungen wie z.B. medizinische Dienstleistungen sind aber auch aufgrund der Nähe zum Krankenhaus (100 m) denkbar.
Die Fläche ist auch unterteilbar und einzeln zu mieten:
EG: 270 qm mit Sheddach
EG: 360 qm
OG: 360 qm mit Flachdach
Die Fläche ist auch unterteilbar und einzeln zu mieten:
EG: 270 qm mit Sheddach
EG: 360 qm
OG: 360 qm mit Flachdach
Ausstattung
Bemerkungen:
Die Räumlichkeiten besitzen neue LED Beleuchtungen und die 2 WCs wurden 2021 komplett neu gemacht.
Lage des Objektes
Die Immobilie liegt im Stadtzentrum von Cloppenburg zur Bürgermeister-Heukamp-Straße und damit zum großen öffentlichen Parkplatz mit zukünftiger Mobilitätsstation. Vor dem Haus befinden sich zusätzliche Parkplätze. Das Krankenhaus ist nur 100 Meter entfernt.
Sonstige Informationen
Heizungsart: Zentralheizung
Energieträger: Gas
Energieausweis nicht vorhanden
Makleranfragen nicht erwünscht. Nach § 7 UWG sind unaufgeforderte Kontaktaufnahmen durch Makler ohne ausdrückliche Einwilligung des Empfängers verboten!
ohne-makler (OM) ist weder Anbieter noch Vermittler der Immobilie. OM betreibt eine Plattform für Immobilieneigentümer, die unter anderem die gleichzeitige Veröffentlichung einzelner Inserate auf mehreren Immobilienportalen ermöglicht. Die Inhalte dieser Inserate werden ausschließlich von Dritten verantwortet. Für die Richtigkeit, Vollständigkeit oder Rechtmäßigkeit der Angaben übernimmt OM keine Haftung. Hinweise auf mögliche Rechtsverstöße können jederzeit gemeldet werden und werden nach Prüfung umgehend bearbeitet.
Verkaufsraum EG
Treppe ins OG
Verkaufsraum EG
Lastenfahrstuhl
WC
Grundriss EG