Exposé
Objektart:
Büro / Praxen
» Bueroflaeche
» Kauf
Standort: Büro / Praxen »
Deutschland » Bayern » München, Landeshauptstadt (Kreis) » München
3-Zi.-Wohnung mit Airbnb-Genehmigung, Garten & Renditepotenzial im historischen Alt-Perlach
Titelbild
Das Wichtigste auf einen Blick:
| Objektnummer: | 9275325 |
Preise
| Kaufpreis | 699.000 € |
| Nebenkosten | keine Angabe |
| Hausgeld | 419 € |
Flächen
| Wohnfläche | 78 m² |
| Bürofläche | 78 m² |
| Maklerprovision | Es besteht keine Käuferprovision |
Objekt Adresse
Sebastian-Bauer-Straße 3
81737 München
- Bayern
Sonstige Angaben
| Baujahr | 1920 |
| Letzte Modernisierung | 2021 |
| Zimmer | 3 |
| Verfügbar ab | keine Angabe |
| Bad | 1 |
| Küche | Einbauküche |
| Bad | 1 |
| Bad | Dusche |
| Boden | Fliesen, Parkett |
| Balkone | 1 |
| Garten | Ja |
| Keller | Ja |
| Energieausweistyp | Bedarfsausweis |
| Ausstellungsdatum | 28. 02. 2022 |
| Gültig bis | 28.02.2032 |
| Energieeffizienzklasse | B |
| Endenergiebedarf | 56 kWh/(m²*a) |
| Heizungsart | Zentralheizung |
| Wesentlicher Energieträger | Erdgas Leicht |
Objektbeschreibung
Objektbeschreibung
Wo Geschichte auf Moderne trifft: Diese sanierte 3-Zimmer-Wohnung (Büro) mit Terrasse, kleinem Gartenanteil und Außenstellplatz liegt im historischen Ortskern von Alt-Perlach, direkt am Hachinger Bach. Sie vereint den Charme eines gewachsenen Ensembles mit den Vorteilen einer kernsanierten Immobilie.
Besonders hervorzuheben ist die offizielle Genehmigung zur touristischen Kurzzeitvermietung mit bis zu 6 Betten (z. B. über Airbnb oder vergleichbare Plattformen), eine echte Seltenheit in München, da solche Genehmigungen nur in Ausnahmefällen erteilt werden. Das macht dieses Objekt zu einer einzigartigen Chance für Investoren, die vom boomenden Markt für möbliertes Wohnen profitieren möchten.
Aktuell ist die Einheit an einen etablierten Pflegedienst vermietet. Der Staffelmietvertrag läuft bis Mai 2029, bringt monatlich 2.232,08 € Kaltmiete und sichert durch eine jährliche Steigerung von 2 % planbare Einnahmen.
Nach Rücksprache mit dem Mieter wäre jedoch eine Übergabe bzw. Eigennutzung innerhalb von 3 bis 6 Monaten möglich, sollte der Käufer die Einheit selbst nutzen oder neu vermieten wollen.
Auf Basis der aktuellen Miete ergibt sich eine Nettorendite von ca. 3,8 % (inkl. Kaufnebenkosten).
Bei einem Eigenkapitaleinsatz von lediglich 10 % resultiert daraus eine Eigenkapitalrendite (ohne Finanzierungskosten) von rund 38 % – ein außergewöhnlich starkes Verhältnis von Risiko zu Rendite im Münchner Immobilienmarkt.
Durch die genehmigte Kurzzeitvermietung lässt sich das Objekt perspektivisch zudem deutlich ertragreicher bewirtschaften, da die erzielbaren Monatsumsätze im Bereich möblierter Vermietung bzw. als Serviced Apartment erheblich über der aktuellen Langzeitmiete liegen können.
Damit eröffnet sich Ihnen ein seltenes Investment mit mehrfachen Nutzungsperspektiven:
• als sichere Kapitalanlage mit laufender Vermietung,
• zur Eigennutzung in hochwertiger Wohnqualität oder
• als lukrative Kurzzeitvermietung, sobald die Einheit frei wird.
Eine Kombination, die in München kaum ein zweites Mal zu finden ist.
⸻
Highlights im Überblick
• Provisionsfrei für den Käufer
• Genehmigte touristische Kurzzeitvermietung – äußerst selten in München
– Potenzielle Monatsmiete über Booking: ca. 8.000 €
• Derzeit vermietet an einen Pflegedienst (Staffelmietvertrag bis 05/2029)
– Kaltmiete: 2.232,08 €
– Jährliche Steigerung: 2 %
• Nach Rücksprache mit dem Mieter: Übernahme bzw. Eigennutzung innerhalb von 3–6 Monaten möglich
• Zukunftsgerichtete Investition mit verschiedenen Nutzungsmöglichkeiten
• Kernsanierung 2020–2021, neuwertiger Zustand
• Hochwertige Ausstattung, Terrasse mit Gartenanteil, Außenstellplatz & Kellerabteil
• Share Deal möglich – steueroptimierter Erwerb durch Übernahme der Objektgesellschaft
• Übernahme von zwei bestehenden Darlehen möglich
– Zinssätze: 1,43 % und 1,73 % p. a. (jeweils fest bis 2031)
• Verlustvortrag in der Gesellschaft vorhanden und übertragbar
Wo Geschichte auf Moderne trifft: Diese sanierte 3-Zimmer-Wohnung (Büro) mit Terrasse, kleinem Gartenanteil und Außenstellplatz liegt im historischen Ortskern von Alt-Perlach, direkt am Hachinger Bach. Sie vereint den Charme eines gewachsenen Ensembles mit den Vorteilen einer kernsanierten Immobilie.
Besonders hervorzuheben ist die offizielle Genehmigung zur touristischen Kurzzeitvermietung mit bis zu 6 Betten (z. B. über Airbnb oder vergleichbare Plattformen), eine echte Seltenheit in München, da solche Genehmigungen nur in Ausnahmefällen erteilt werden. Das macht dieses Objekt zu einer einzigartigen Chance für Investoren, die vom boomenden Markt für möbliertes Wohnen profitieren möchten.
Aktuell ist die Einheit an einen etablierten Pflegedienst vermietet. Der Staffelmietvertrag läuft bis Mai 2029, bringt monatlich 2.232,08 € Kaltmiete und sichert durch eine jährliche Steigerung von 2 % planbare Einnahmen.
Nach Rücksprache mit dem Mieter wäre jedoch eine Übergabe bzw. Eigennutzung innerhalb von 3 bis 6 Monaten möglich, sollte der Käufer die Einheit selbst nutzen oder neu vermieten wollen.
Auf Basis der aktuellen Miete ergibt sich eine Nettorendite von ca. 3,8 % (inkl. Kaufnebenkosten).
Bei einem Eigenkapitaleinsatz von lediglich 10 % resultiert daraus eine Eigenkapitalrendite (ohne Finanzierungskosten) von rund 38 % – ein außergewöhnlich starkes Verhältnis von Risiko zu Rendite im Münchner Immobilienmarkt.
Durch die genehmigte Kurzzeitvermietung lässt sich das Objekt perspektivisch zudem deutlich ertragreicher bewirtschaften, da die erzielbaren Monatsumsätze im Bereich möblierter Vermietung bzw. als Serviced Apartment erheblich über der aktuellen Langzeitmiete liegen können.
Damit eröffnet sich Ihnen ein seltenes Investment mit mehrfachen Nutzungsperspektiven:
• als sichere Kapitalanlage mit laufender Vermietung,
• zur Eigennutzung in hochwertiger Wohnqualität oder
• als lukrative Kurzzeitvermietung, sobald die Einheit frei wird.
Eine Kombination, die in München kaum ein zweites Mal zu finden ist.
⸻
Highlights im Überblick
• Provisionsfrei für den Käufer
• Genehmigte touristische Kurzzeitvermietung – äußerst selten in München
– Potenzielle Monatsmiete über Booking: ca. 8.000 €
• Derzeit vermietet an einen Pflegedienst (Staffelmietvertrag bis 05/2029)
– Kaltmiete: 2.232,08 €
– Jährliche Steigerung: 2 %
• Nach Rücksprache mit dem Mieter: Übernahme bzw. Eigennutzung innerhalb von 3–6 Monaten möglich
• Zukunftsgerichtete Investition mit verschiedenen Nutzungsmöglichkeiten
• Kernsanierung 2020–2021, neuwertiger Zustand
• Hochwertige Ausstattung, Terrasse mit Gartenanteil, Außenstellplatz & Kellerabteil
• Share Deal möglich – steueroptimierter Erwerb durch Übernahme der Objektgesellschaft
• Übernahme von zwei bestehenden Darlehen möglich
– Zinssätze: 1,43 % und 1,73 % p. a. (jeweils fest bis 2031)
• Verlustvortrag in der Gesellschaft vorhanden und übertragbar
Ausstattung
Ausstattung
Diese Einheit verbindet durchdachte Funktionalität mit zeitgemäßem Komfort:
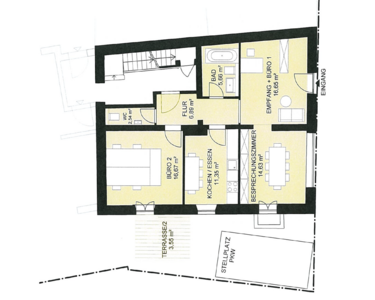
• 3 Zimmer auf ca. 78 m² – optimal geschnitten für Wohnen, Arbeiten oder Vermieten
• Edler Parkettboden in den Wohnräumen & moderne Fliesen in Küche und Bädern
• Helles Duschbad mit eleganten Armaturen
• Separates Gäste-WC – praktisch und wertsteigernd
• Voll ausgestattete Einbauküche (auf Wunsch, nicht im Kaufpreis enthalten)
• Terrasse mit kleinem Gartenanteil – Ihre private Auszeit im Grünen
• Außenstellplatz direkt am Haus sowie praktisches Kellerabteil
Eine Ausstattung, die sowohl Eigennutzer als auch Gäste im Rahmen einer Kurzzeitvermietung überzeugt: hochwertig, funktional und repräsentativ.
Diese Einheit verbindet durchdachte Funktionalität mit zeitgemäßem Komfort:
• 3 Zimmer auf ca. 78 m² – optimal geschnitten für Wohnen, Arbeiten oder Vermieten
• Edler Parkettboden in den Wohnräumen & moderne Fliesen in Küche und Bädern
• Helles Duschbad mit eleganten Armaturen
• Separates Gäste-WC – praktisch und wertsteigernd
• Voll ausgestattete Einbauküche (auf Wunsch, nicht im Kaufpreis enthalten)
• Terrasse mit kleinem Gartenanteil – Ihre private Auszeit im Grünen
• Außenstellplatz direkt am Haus sowie praktisches Kellerabteil
Eine Ausstattung, die sowohl Eigennutzer als auch Gäste im Rahmen einer Kurzzeitvermietung überzeugt: hochwertig, funktional und repräsentativ.
Lage des Objektes
Die Immobilie befindet sich in der begehrten Lage von München-Perlach, einem Stadtteil, der durch seine ruhige Wohnatmosphäre und gleichzeitig hervorragende Anbindung an das Stadtzentrum überzeugt. Die Sebastian-Bauer-Straße liegt im historischen Ortskern Perlach, der mit seinem charmanten Ensemble denkmalgeschützter Gebäude den Charakter und die Einzigartigkeit des Viertels prägt.
Verkehrsanbindung
Die Verkehrsanbindung der Sebastian-Bauer-Straße 3 ist optimal und bietet vielfältige Möglichkeiten, die Münchner Innenstadt und andere Stadtteile schnell und bequem zu erreichen:
• S-Bahn: Die S-Bahn-Station München-Perlach (S7) liegt nur wenige Minuten entfernt und verbindet den Stadtteil direkt mit der Münchner Innenstadt.
• Bus: Die Buslinie 62 befindet sich direkt um die Ecke und bietet eine schnelle Verbindung zum Ostbahnhof, einem zentralen Verkehrsknotenpunkt. Dort haben Sie direkten Zugang zu den Linien U2, S1, S3, S4, S5 und S8, die München umfassend erschließen.
• Autoverkehr: Autofahrer profitieren von der Nähe zur A8 (Richtung Salzburg) sowie zum Mittleren Ring, die beide eine exzellente Anbindung an das überregionale Verkehrsnetz bieten.
Infrastruktur
Die Umgebung überzeugt durch eine ausgezeichnete Infrastruktur, die alle Anforderungen des täglichen Lebens erfüllt:
• Einkaufsmöglichkeiten: Supermärkte, Bäckereien und weitere Geschäfte des täglichen Bedarfs befinden sich in unmittelbarer Nähe und sind bequem zu Fuß erreichbar.
• Bildung und Betreuung: Familien finden ein umfangreiches Bildungsangebot in der Umgebung, darunter Kindergärten, Grundschulen und weiterführende Schulen.
• Gesundheit: Arztpraxen, Apotheken und weitere medizinische Einrichtungen in der Nähe gewährleisten eine umfassende und zuverlässige Versorgung.
Verkehrsanbindung
Die Verkehrsanbindung der Sebastian-Bauer-Straße 3 ist optimal und bietet vielfältige Möglichkeiten, die Münchner Innenstadt und andere Stadtteile schnell und bequem zu erreichen:
• S-Bahn: Die S-Bahn-Station München-Perlach (S7) liegt nur wenige Minuten entfernt und verbindet den Stadtteil direkt mit der Münchner Innenstadt.
• Bus: Die Buslinie 62 befindet sich direkt um die Ecke und bietet eine schnelle Verbindung zum Ostbahnhof, einem zentralen Verkehrsknotenpunkt. Dort haben Sie direkten Zugang zu den Linien U2, S1, S3, S4, S5 und S8, die München umfassend erschließen.
• Autoverkehr: Autofahrer profitieren von der Nähe zur A8 (Richtung Salzburg) sowie zum Mittleren Ring, die beide eine exzellente Anbindung an das überregionale Verkehrsnetz bieten.
Infrastruktur
Die Umgebung überzeugt durch eine ausgezeichnete Infrastruktur, die alle Anforderungen des täglichen Lebens erfüllt:
• Einkaufsmöglichkeiten: Supermärkte, Bäckereien und weitere Geschäfte des täglichen Bedarfs befinden sich in unmittelbarer Nähe und sind bequem zu Fuß erreichbar.
• Bildung und Betreuung: Familien finden ein umfangreiches Bildungsangebot in der Umgebung, darunter Kindergärten, Grundschulen und weiterführende Schulen.
• Gesundheit: Arztpraxen, Apotheken und weitere medizinische Einrichtungen in der Nähe gewährleisten eine umfassende und zuverlässige Versorgung.
Sonstige Informationen
Anfragen über die Immobilienportale werden nur mit vollständiger Adresse und Telefonnummer bearbeitet.
Gerne sind wir für weitere Fragen und Informationen unter Tel.: +49 177 56 36 292 erreichbar.
Alle Angaben stammen vom Eigentümer, der Makler übernimmt hierfür keine Haftung.
Es besteht keine Käuferprovision, wir schließen keinen Maklervertrag mit dem Kaufinteressenten ab, auch die Entgegennahme eines Kaufpreisangebots, die Übermittlung des Exposés und die Vereinbarung des Besichtigungstermins führt nicht zum Abschluss eines Maklervertrages mit dem Kaufinteressenten.
Tipp-Provision!!
Sie kennen jemanden, der seine Immobilie veräußern möchte? Wir sind ständig für unsere Kunden auf der Suche nach geeigneten Objekten. Bei erfolgreicher Vermittlung und Vertragsabschluss zahlen wir Ihnen als Dankeschön eine Tipp-Provision! Nähere Informationen auf Anfrage.
HAFTUNGSAUSSCHLUSS: Trotz regelmäßiger Prüfung von Daten, Bildern und Informationen übernehmen wir keine Haftung für die Richtigkeit der Angaben. Ebenso wenig für die Verfügbarkeit des Angebotes bei Vermietung oder Verkauf. Es gelten unsere Allgemeinen Geschäftsbedingungen.
GELDWÄSCHE: Als Immobilien Maklerunternehmen ist die IMMONEB Immobilien GmbH nach § 2 Abs. 1 Nr. 14 und § 11 Abs. 1, 2 Geldwäschegesetz (GwG) dazu verpflichtet, bei der Begründung einer Geschäftsbeziehung die Identität des Vertragspartners festzustellen und zu überprüfen, bzw. sobald ein ernsthaftes Interesse an der Durchführung des Immobilienkaufvertrages besteht. Hierzu ist es erforderlich, dass wir nach § 11 Abs. 4 GwG die relevanten Daten Ihres Personalausweises festhalten (wenn Sie als natürliche Person handeln) – beispielsweise mittels einer Kopie. Bei einer juristischen Person benötigen wir eine Kopie des Handelsregisterauszugs, aus welchem der wirtschaftlich Berechtigte hervorgeht. Das Geldwäschegesetz sieht vor, dass der Makler die Kopien bzw. Unterlagen fünf Jahre aufbewahren muss. Als unser Vertragspartner haben Sie auch eine Mitwirkungspflicht nach § 11 Abs. 6 GwG.
Konferenzraum
Küche
Bad
Flur
Eingangsbereich
Gäste WC
Treppenhaus
Garten
Garten
Stasse
Park
Park
Grundriss
Grundriss.png