Exposé
Objektart:
Hallen / Lager / Produktion
» Lager
» Kauf
Standort: Hallen / Lager / Produktion »
Deutschland » Nordrhein-Westfalen » Steinfurt (Kreis) » Steinfurt
Gewerbefläche, Z.B. Lager und Büro rund 180 qm, 2 Sektionaltore
Große Sektionaltore elektrisch
Das Wichtigste auf einen Blick:
| Objektnummer: | 9270746 |
Preise
| Kaufpreis | Auf Anfrage |
| Nebenkosten | keine Angabe |
Flächen
| Gesamtfläche | 180 m² |
| Grundstücksfläche | 1.000 m² |
| Maklerprovision | keine Provision, courtagefrei |
Objekt Adresse
48565 Steinfurt
- Nordrhein-Westfalen
Sonstige Angaben
| Baujahr | 1996 |
| Verfügbar ab | nach Absprache |
| Anzahl der Etagen im Haus | 1 |
| Barrierefrei | |
| Heizungsart | Zentralheizung |
| Energieträger/Befeuerung | Gas |
Objektbeschreibung
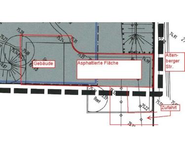
Wir bieten eine Immobilie mit rund 180 qm Gesamtnutzfläche in einem Gewerbe-/Mischgebiet an. Lager-/Großraumgarage / Büro, trocken, isoliert, hochwertig (Dachpfannen, Kupferregenrinnen, etc.), Heizkörper (Zentralheizung) und 2 x Industrielüfter, Büro oder Wohnung (weniger als 50% der Gesamtfläche) im DG Ausbau möglich (Ausbaureserve),
massiv, isoliert, hochwertig, befestigte Zufahrt / Parkplätze, etc. ideal für Gewerbe/Handwerk aber auch Umbau z.B. zu Büro / Praxisfläche, möglich. Grundstück ca. 1.000 qm, Bessere Bilder folgen (derzeit als Garagennutzen, Büro und WC müßten nach eingebaut werden)
massiv, isoliert, hochwertig, befestigte Zufahrt / Parkplätze, etc. ideal für Gewerbe/Handwerk aber auch Umbau z.B. zu Büro / Praxisfläche, möglich. Grundstück ca. 1.000 qm, Bessere Bilder folgen (derzeit als Garagennutzen, Büro und WC müßten nach eingebaut werden)
Ausstattung
Barrierefrei, Sonstiges (s. Text)
Bemerkungen:
Die detaillierte Ausstattung entnehmen Sie bitte dem Exposé, welches wir auf Anforderung per Mail zusenden. Schnelles Profi-Glasfaserinternet ist ebenfalls vorhanden,
Bemerkungen:
Die detaillierte Ausstattung entnehmen Sie bitte dem Exposé, welches wir auf Anforderung per Mail zusenden. Schnelles Profi-Glasfaserinternet ist ebenfalls vorhanden,
Lage des Objektes
Lage:
Das Objekt steht in einem Gewerbegebiet Borghorst Wilmsberg. In der unmittelbaren Umgebung gibt es neben Gewerbeobjekten, sowohl Wohnhäuser als auch landwirtschaftliche Flächen und Wälder. Das Objekt selbst ist gut geschützt, sicher mit Mauer umfriedet.
In Bezug auf Verkehrsmittel ist das Objekt gut angebunden, die nächsten Bushaltestellen sind ca. 100 m entfernt, der nächste Bahnhof (regelmäßig Richtung Münster/Enschede) ca. 3 km. Es gibt verschiedene, quasi parallellaufende Straßen und Bundesstraße z.B. Richtung Münster oder zu den Autobahnen A 31, A1, A3 ca. 15 Minuten (Münster Schloß auch zu Stoßzeiten). Flughafen FMO ca. 20 Minuten.
Es gibt Supermärkte, Bäcker, Tankstellen, Pizza/Imbiss und Geschäfte in der Nähe, ca. 1 km sowie weitere Einkaufsmöglichkeiten im Stadtzentrum ca. 1-3 km.
Ärzte, Banken, Apotheken, Einkaufszentren, Kindergärten, alle Schulformen sind in wenigen ebenfalls ca. 1-3 km erreichbar, die Fachhochschule Steinfurt ist wenige Minuten mit dem Rad, Auto, Bus, Bahn erreichbar.
Infrastruktur (im Umkreis von 5 km):
Apotheke, Lebensmittel-Discount, Allgemeinmediziner, Kindergarten, Grundschule, Hauptschule, Realschule, Gymnasium, Gesamtschule, Öffentliche Verkehrsmittel
Das Objekt steht in einem Gewerbegebiet Borghorst Wilmsberg. In der unmittelbaren Umgebung gibt es neben Gewerbeobjekten, sowohl Wohnhäuser als auch landwirtschaftliche Flächen und Wälder. Das Objekt selbst ist gut geschützt, sicher mit Mauer umfriedet.
In Bezug auf Verkehrsmittel ist das Objekt gut angebunden, die nächsten Bushaltestellen sind ca. 100 m entfernt, der nächste Bahnhof (regelmäßig Richtung Münster/Enschede) ca. 3 km. Es gibt verschiedene, quasi parallellaufende Straßen und Bundesstraße z.B. Richtung Münster oder zu den Autobahnen A 31, A1, A3 ca. 15 Minuten (Münster Schloß auch zu Stoßzeiten). Flughafen FMO ca. 20 Minuten.
Es gibt Supermärkte, Bäcker, Tankstellen, Pizza/Imbiss und Geschäfte in der Nähe, ca. 1 km sowie weitere Einkaufsmöglichkeiten im Stadtzentrum ca. 1-3 km.
Ärzte, Banken, Apotheken, Einkaufszentren, Kindergärten, alle Schulformen sind in wenigen ebenfalls ca. 1-3 km erreichbar, die Fachhochschule Steinfurt ist wenige Minuten mit dem Rad, Auto, Bus, Bahn erreichbar.
Infrastruktur (im Umkreis von 5 km):
Apotheke, Lebensmittel-Discount, Allgemeinmediziner, Kindergarten, Grundschule, Hauptschule, Realschule, Gymnasium, Gesamtschule, Öffentliche Verkehrsmittel
Sonstige Informationen
Heizungsart: Zentralheizung
Energieträger: Gas
Energieausweis nicht vorhanden
Makleranfragen nicht erwünscht. Nach § 7 UWG sind unaufgeforderte Kontaktaufnahmen durch Makler ohne ausdrückliche Einwilligung des Empfängers verboten!
ohne-makler (OM) ist weder Anbieter noch Vermittler der Immobilie. OM betreibt eine Plattform für Immobilieneigentümer, die unter anderem die gleichzeitige Veröffentlichung einzelner Inserate auf mehreren Immobilienportalen ermöglicht. Die Inhalte dieser Inserate werden ausschließlich von Dritten verantwortet. Für die Richtigkeit, Vollständigkeit oder Rechtmäßigkeit der Angaben übernimmt OM keine Haftung. Hinweise auf mögliche Rechtsverstöße können jederzeit gemeldet werden und werden nach Prüfung umgehend bearbeitet.
Eigener Parkplatz befestigt
Fläche
Fläche
Heizgebläse und Radiatoren
Ausbaufläche Dachgeschoss
Derzeitiger Status
Flächen und Höhen
Ca. Grundstücksgröße