Exposé
Objektart:
Haus
» Bungalow
» Kauf
Standort: Haus »
Deutschland » Brandenburg » Potsdam-Mittelmark (Kreis) » Groß Kreutz (Havel)
Baugrundstück perfekt für Ihr Traumhaus
Das Wichtigste auf einen Blick:
| Objektnummer: | 9269290 |
Preise
| Kaufpreis | 409.140 € |
| Nebenkosten | keine Angabe |
Flächen
| Wohnfläche | 67 m² |
| Grundstücksfläche | 1.064 m² |
Objekt Adresse
14550 Groß Kreutz (Havel)
Sonstige Angaben
| Baujahr | 2025 |
| Zimmer | 3 |
| Verfügbar ab | keine Angabe |
| Bad | 1 |
| Anzahl der Etagen im Haus | 1 |
| Küche | Offene Küche |
| Bad | 1 |
| Bad | Dusche, Wanne, Fenster |
| Boden | Fliesen, Laminat |
| Energieausweistyp | Bedarfsausweis |
| Energietyp | KfW-40 |
| Endenergiebedarf | 30.00 kWh/(m²*a) |
| Wesentlicher Energieträger | Strom |
| Energieträger/Befeuerung | Luft-Wärme-Pumpe |
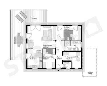
Objektbeschreibung
Willkommen in Ihrem zukünftigen Traum-Bungalow in Groß Kreutz (Havel), einem charmanten Wohngebiet, das Ihnen den idealen Rückzugsort bietet. Dieser individuell projektierte Fertighaus Bungalow ist auf Ihre Wünsche abgestimmt und bietet Ihnen eine Wohnfläche von 67 m², die sich perfekt auf 3 Zimmer verteilt. Genießen Sie die Vorzüge eines durchdachten Raumkonzepts, das Ihnen sowohl ein gemütliches Schlafzimmer als auch ein modernes Badezimmer mit Dusche, Wanne und Fenster sowie ein zusätzliches Gäste-WC bietet. Die Bauweise des Bungalows ermöglicht Ihnen eine barrierefreie Gestaltung, die sowohl für junge Familien als auch für ältere Menschen ideal ist. Hier haben Sie die Möglichkeit, ein Zuhause zu schaffen, das nicht nur schön, sondern auch praktisch ist. Lassen Sie sich von unserem Projekt- und Bau-Konzept überzeugen und gestalten Sie Ihren persönlichen Wohntraum mit STREIF.
Ausstattung
Die gehobene Ausstattung dieses Bungalows lässt keine Wünsche offen. Die Bodenbeläge sind sowohl aus hochwertigen Fliesen als auch aus robustem Laminat gefertigt, die nicht nur optisch ansprechend sind, sondern auch pflegeleicht und langlebig. Die Kombination dieser Materialien sorgt für ein angenehmes Raumklima und eine gemütliche Atmosphäre. Die energieeffiziente Wärmepumpe sorgt zudem für eine umweltfreundliche Beheizung, die Ihre Energiekosten nachhaltig senkt und gleichzeitig höchsten Komfort bietet. Durch den KFW40 Standard erfüllen Sie nicht nur die aktuellen Energieeffizienz-Richtlinien, sondern leisten auch einen Beitrag zum Klimaschutz.
Lage des Objektes
Der Bungalow befindet sich in Groß Kreutz (Havel), einem idyllischen Wohngebiet, das Ihnen eine hervorragende Lebensqualität bietet. Die ruhige Lage ermöglicht Ihnen entspannende Spaziergänge in der Natur und gleichzeitig profitieren Sie von einer guten Anbindung an die Infrastruktur. Einkaufsmöglichkeiten, Schulen und Freizeitangebote sind in der Nähe und leicht erreichbar, sodass Sie alle notwendigen Einrichtungen in Ihrer Umgebung haben. Genießen Sie die Vorzüge eines lebenswerten Umfeldes, in dem Sie sich rundum wohlfühlen können.
Sonstige Informationen
Dieses Objekt wird in der Ausbaustufe 3 - FastFertigPlus angeboten, was bedeutet, dass Sie bei der Erstellung Ihres Hauses aktiv mitarbeiten können. Sie sparen bares Geld, indem Sie Eigenleistungen in Form einer Muskelhypothek einbringen. In dieser Ausbaustufe sind die haustechnischen Gewerke, wie Heizung, Lüftung, Sanitär und Estrich, bereits von einem Fachbetrieb erledigt. Der Preis für den Bungalow beginnt ab 344.375 EUR. Informieren Sie sich gerne bei unserem Bauberater-Team über die verschiedenen Möglichkeiten und stellen Sie gemeinsam mit uns Ihr individuelles Traumhaus zusammen.