Exposé
Objektart:
Wohnung
» Etage
» Kauf
Standort: Wohnung »
Deutschland » Bayern » Eichstätt (Kreis) » Kösching
Kösching: 3 Eigentumswohnungen (76–125 m²) – Einzelverkauf im 2025 kernsanierten MFH
Außenansicht 1
Das Wichtigste auf einen Blick:
| Objektnummer: | 9263656 |
Preise
| Kaufpreis | 379.000 € |
| Nebenkosten | keine Angabe |
Flächen
| Wohnfläche | 76,33 m² |
| Maklerprovision | keine Provision, courtagefrei |
Objekt Adresse
Marieluise-Fleißer-Straße 7
85092 Kösching
- Bayern
Sonstige Angaben
| Baujahr | 1971 |
| Zimmer | 2 |
| Verfügbar ab | nach Absprache |
| Bad | 1 |
| Inserat befindet sich im Stockwerk | 1 |
| Bad | 1 |
| Bad | Wanne |
| Balkone | 1 |
| Garten | Ja |
| Terrassen | 1 |
| Heizungsart | Fußbodenheizung |
| Energieträger/Befeuerung | Luft-Wärme-Pumpe |
Objektbeschreibung
In zentraler und zugleich ruhiger Lage von Kösching entsteht ein kernsaniertes Mehrfamilienhaus mit insgesamt drei Eigentumswohnungen, die einzeln zum Verkauf stehen. Das Gebäude aus dem Jahr 1971 wird bis 2025 umfassend modernisiert und erreicht anschließend den KfW-55-Standard. Eine effiziente Wärmepumpe, neue Fenster mit elektrischen Rollläden sowie sorgfältig ausgewählte Materialien sorgen für geringen Energieverbrauch und hohen Wohnwert.
Hinweis: Die Angaben zu Kaufpreis, Wohnfläche und Zimmerzahl beziehen sich auf Wohnung 2 (2 Zimmer, ca. 76 m², Kaufpreis ab 389.000 €). Zwei weitere, größere Wohnungen stehen ebenfalls zur Verfügung.
Verfügbare Wohnungen (Einzelverkauf)
Wohnung 1 – Erdgeschoss
ca. 125,32 m² · 3 Zimmer · Terrasse & Garten
Kaufpreis: 579.000 €
inkl. 2 Außenstellplätze → 589.000 €
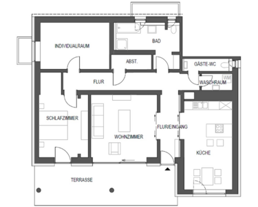
Wohnung 2 – Obergeschoss links
ca. 76,33 m² · 2 Zimmer · Balkon
Kaufpreis: 379.000 €
inkl. 2 Außenstellplätze → 389.000 €
Wohnung 3 – Obergeschoss rechts
ca. 114,85 m² · 4 Zimmer · Balkon
Kaufpreis: 539.000 €
inkl. 2 Außenstellplätze → 549.000 €
Die Einheiten decken Wohnflächen von 76 bis 125 m² ab und sind damit gleichermaßen für Singles, Paare, Familien oder Kapitalanleger interessant. Helle Räume, funktionale Grundrisse und eine Ausstattung auf aktuellem Standard schaffen ein Zuhause mit Komfort und Zukunftsfähigkeit.
Insgesamt stehen 7 Außenstellplätze zur Verfügung.
Objektzustand: Erstbezug nach Sanierung
Hinweis: Die Angaben zu Kaufpreis, Wohnfläche und Zimmerzahl beziehen sich auf Wohnung 2 (2 Zimmer, ca. 76 m², Kaufpreis ab 389.000 €). Zwei weitere, größere Wohnungen stehen ebenfalls zur Verfügung.
Verfügbare Wohnungen (Einzelverkauf)
Wohnung 1 – Erdgeschoss
ca. 125,32 m² · 3 Zimmer · Terrasse & Garten
Kaufpreis: 579.000 €
inkl. 2 Außenstellplätze → 589.000 €
Wohnung 2 – Obergeschoss links
ca. 76,33 m² · 2 Zimmer · Balkon
Kaufpreis: 379.000 €
inkl. 2 Außenstellplätze → 389.000 €
Wohnung 3 – Obergeschoss rechts
ca. 114,85 m² · 4 Zimmer · Balkon
Kaufpreis: 539.000 €
inkl. 2 Außenstellplätze → 549.000 €
Die Einheiten decken Wohnflächen von 76 bis 125 m² ab und sind damit gleichermaßen für Singles, Paare, Familien oder Kapitalanleger interessant. Helle Räume, funktionale Grundrisse und eine Ausstattung auf aktuellem Standard schaffen ein Zuhause mit Komfort und Zukunftsfähigkeit.
Insgesamt stehen 7 Außenstellplätze zur Verfügung.
Objektzustand: Erstbezug nach Sanierung
Ausstattung
Balkon, Terrasse, Garten, Vollbad, Gäste-WC
Bemerkungen:
Kernsanierung 2025, energetischer Standard KfW-55
Wärmepumpe als moderne Heiztechnik
Neue Fenster mit elektrischen Rollläden
Hochwertige Materialien bei Böden und Bädern
Terrassen oder Balkone je nach Wohnung, EG mit Gartenanteil
7 Außenstellplätze am Haus verfügbar
Bemerkungen:
Kernsanierung 2025, energetischer Standard KfW-55
Wärmepumpe als moderne Heiztechnik
Neue Fenster mit elektrischen Rollläden
Hochwertige Materialien bei Böden und Bädern
Terrassen oder Balkone je nach Wohnung, EG mit Gartenanteil
7 Außenstellplätze am Haus verfügbar
Lage des Objektes
Das Mehrfamilienhaus liegt in einer zentral gelegenen, dennoch ruhigen Wohnstraße von Kösching. Einkaufsmöglichkeiten, medizinische Versorgung, Gastronomie sowie Kinderbetreuung und Schulen befinden sich in unmittelbarer Nähe.
Die regionale Anbindung ist hervorragend: Über die A9 erreicht man Ingolstadt, München und Nürnberg in kurzer Zeit. Der nahe Standort von Audi in Ingolstadt stärkt die lokale Wirtschaft und trägt zu einer stabilen Nachfrage nach Wohnungen bei.
Für Ausgleich im Alltag sorgen zahlreiche Freizeitangebote. Grünflächen, Rad- und Wanderwege sowie Sportvereine schaffen attraktive Bedingungen für Erholung und Bewegung. Kösching verbindet damit eine solide Infrastruktur mit einem angenehmen Lebensumfeld.
Infrastruktur (im Umkreis von 5 km):
Apotheke, Lebensmittel-Discount, Allgemeinmediziner, Kindergarten, Grundschule, Hauptschule, Realschule, Öffentliche Verkehrsmittel
Die regionale Anbindung ist hervorragend: Über die A9 erreicht man Ingolstadt, München und Nürnberg in kurzer Zeit. Der nahe Standort von Audi in Ingolstadt stärkt die lokale Wirtschaft und trägt zu einer stabilen Nachfrage nach Wohnungen bei.
Für Ausgleich im Alltag sorgen zahlreiche Freizeitangebote. Grünflächen, Rad- und Wanderwege sowie Sportvereine schaffen attraktive Bedingungen für Erholung und Bewegung. Kösching verbindet damit eine solide Infrastruktur mit einem angenehmen Lebensumfeld.
Infrastruktur (im Umkreis von 5 km):
Apotheke, Lebensmittel-Discount, Allgemeinmediziner, Kindergarten, Grundschule, Hauptschule, Realschule, Öffentliche Verkehrsmittel
Sonstige Informationen
Heizungsart: Fußbodenheizung
Energieträger: Luft-/Wasserwärme
Energieausweis nicht vorhanden
Alle Angaben basieren auf dem aktuellen Planungs- und Informationsstand. Sämtliche Änderungen, insbesondere in Ausstattung, Grundriss oder Materialien bleiben vorbehalten. Visualisierungen und Abbildungen dienen ausschließlich der Illustration und sind unverbindlich.
Impressum
Angaben gemäß § 5 TMG
CIC Invest GmbH
Franz-von-Taxis-Ring 32
93049 Regensburg
Vertreten durch:
Jens Schulz
Regensburg HRB 18683
USt-ID DE284078450
Kontakt
Telefon: +49 941 83097458
E-Mail: contact@cic-invest.com
EU-Streitschlichtung
Die Europäische Kommission stellt eine Plattform zur Online-Streitbeilegung (OS) bereit: https://ec.europa.eu/consumers/odr/.
Unsere E-Mail-Adresse finden Sie oben im Impressum.
Verbraucherstreitbeilegung/Universalschlichtungsstelle
Wir sind nicht bereit oder verpflichtet, an Streitbeilegungsverfahren vor einer Verbraucherschlichtungsstelle teilzunehmen.
ohne-makler (OM) ist weder Anbieter noch Vermittler der Immobilie. OM betreibt eine Plattform für Immobilieneigentümer, die unter anderem die gleichzeitige Veröffentlichung einzelner Inserate auf mehreren Immobilienportalen ermöglicht. Die Inhalte dieser Inserate werden ausschließlich von Dritten verantwortet. Für die Richtigkeit, Vollständigkeit oder Rechtmäßigkeit der Angaben übernimmt OM keine Haftung. Hinweise auf mögliche Rechtsverstöße können jederzeit gemeldet werden und werden nach Prüfung umgehend bearbeitet.
Außenansicht 2
Außenansicht 3
Außenansicht 4
Wohnung 1
Wohnung 1 - Eingang
Wohnung 1 - Flur
Wohnung 1 - Küche/Essbereich 1
Wohnung 1 - Küche/Essbereich
Wohnung 1 - Wohnzimmer
Wohnung 1 - Wohnzimmer
Wohnung 1 - Wohnzimmer
Wohnung 1 - Schlafzimmer
Wohnung 1 - Bad
Wohnung 1 - Bad
Wohnung 2
Wohnung 2 - Küche/Essbereich
Wohnung 2 - Küche/Essbereich
Wohnung 2 - Wohnzimmer
Wohnung 2 - Wohnzimmer
Wohnung 2 - Schlafzimmer
Wohnung 2 - Schlafzimmer
Wohnung 2 - Bad
Wohnung 2 - Bad
Wohnung 2 - Bad
Wohnung 2 - Bad
Wohnung 3
Wohnung 3 - Eingang
Wohnung 3 - Flur
Wohnung 3 - Küche/Essbereich
Wohnung 3 - Küche/Essbereich
Wohnung 3 - Wohnzimmer
Wohnung 3 - Wohnzimmer
Wohnung 3 - Wohnzimmer
Wohnung 3 - Flur DG
Wohnung 3 - Kinderzimmer/Büro
Wohnung 3 - Kinderzimmer/Büro
Wohnung 3 - Kinderzimmer/Büro
Wohnung 3 - Kinderzimmer/Büro
Wohnung 3 - Schlafzimmer
Wohnung 3 - Schlafzimmer
Wohnung 3 - Bad
Wohnung 3 - Bad
Wohnung 3 - Bad
Wohnung 3 - Bad
Wohnung 1
Wohnung 2 OG
Wohnung 2 DG
Wohnung 3 OG
Wohnung 3 DG