Exposé
Objektart:
Haus
» Zweifamilienhaus
» Kauf
Standort: Haus »
Deutschland » Niedersachsen » Schaumburg (Kreis) » Wölpinghausen
Landhaus für zwei Familien
Eingang Wohnung Erdgeschoss
Das Wichtigste auf einen Blick:
| Objektnummer: | 9261952 |
Preise
| Kaufpreis | 449.000 € |
| Nebenkosten | keine Angabe |
Flächen
| Wohnfläche | 293 m² |
| Grundstücksfläche | 1.617 m² |
| Maklerprovision | keine Provision, courtagefrei |
Objekt Adresse
31556 Wölpinghausen
- Niedersachsen
Sonstige Angaben
| Baujahr | 1966 |
| Zimmer | 10 |
| Verfügbar ab | nach Absprache |
| Bad | 2 |
| Garage/Stellplätze | 2 |
| Anzahl der Etagen im Haus | 2 |
| Küche | Einbauküche |
| Bad | 2 |
| Bad | Wanne |
| Boden | Fliesen, Teppich, Parkett |
| Balkone | 0 |
| Garten | Ja |
| Terrassen | 1 |
| Garage/Stellplätze | 2 |
| Keller | Ja |
| Energieausweistyp | Bedarfsausweis |
| Energieeffizienzklasse | D |
| Endenergiebedarf | 128 kWh/(m²*a) |
| Heizungsart | Zentralheizung |
| Energieträger/Befeuerung | Pellet |
Objektbeschreibung
Unser Haus steht auf einem parkähnlichen Grundstück mit schönem Baumbestand. Da es zwei separate Eingänge gibt, können zwei getrennte Wohneinheiten eingerichtet werden.
Ideal für eine große Familie, als Mehrgenerationenhaus oder Eigennutzung plus Vermietung der zweiten Wohnung.
In den Jahren 2010–12 wurden umfangreiche energetische Sanierungsmaßnahmen durchgeführt:
- Einbau neuer Holzfenster mit Dreifach–Isolierverglasung im ganzen Haus
- Dämmung der Kellerdecke
- Schließen der Heizkörpernischen, Einbau neuer Heizkörper und Dämmung der Außenwände im Erdgeschoss
- Dämmung der Erker um 10 cm von außen verstärkt
- Einbau einer Pelletheizung
- Einbau einer Wärmepumpe für Warmwasser
Es liegt ein aktueller bedarfsorientierter Energieausweis vor (3.9.2024). Energieeffizienzklasse D.
Im Außenbereich wurden die Garageneinfahrt und 2018 die Gartenwege neu gepflastert.
Unser Haus verfügt über einen Glasfaseranschluss und bietet genügend Raum zum ungestörten Arbeiten im Homeoffice.
Ideal für eine große Familie, als Mehrgenerationenhaus oder Eigennutzung plus Vermietung der zweiten Wohnung.
In den Jahren 2010–12 wurden umfangreiche energetische Sanierungsmaßnahmen durchgeführt:
- Einbau neuer Holzfenster mit Dreifach–Isolierverglasung im ganzen Haus
- Dämmung der Kellerdecke
- Schließen der Heizkörpernischen, Einbau neuer Heizkörper und Dämmung der Außenwände im Erdgeschoss
- Dämmung der Erker um 10 cm von außen verstärkt
- Einbau einer Pelletheizung
- Einbau einer Wärmepumpe für Warmwasser
Es liegt ein aktueller bedarfsorientierter Energieausweis vor (3.9.2024). Energieeffizienzklasse D.
Im Außenbereich wurden die Garageneinfahrt und 2018 die Gartenwege neu gepflastert.
Unser Haus verfügt über einen Glasfaseranschluss und bietet genügend Raum zum ungestörten Arbeiten im Homeoffice.
Ausstattung
Terrasse, Garten, Keller, Vollbad, Einbauküche, Kamin, Parkett, Teppichboden, Fliesen
Bemerkungen:
- Glasfaseranschluss
- Anschluss an Erdgasnetz vorhanden, derzeit nicht genutzt.
- Im Erdgeschoss gibt es einen Kamin mit Feuerungseinsatz.
Der Garten ist pflegeleicht gestaltet und bietet Kindern viel Raum zum Toben und Spielen. Die Bäume spenden im Sommer natürlichen Schatten und ermöglichen auch bei großer Hitze einen angenehmen Aufenthalt im Freien.
Kinderspielgerät vorhanden.
Das Grundstück ist an drei Seiten von Sandsteinmauern eingegrenzt. An der Westseite neuer Metallzaun.
Bemerkungen:
- Glasfaseranschluss
- Anschluss an Erdgasnetz vorhanden, derzeit nicht genutzt.
- Im Erdgeschoss gibt es einen Kamin mit Feuerungseinsatz.
Der Garten ist pflegeleicht gestaltet und bietet Kindern viel Raum zum Toben und Spielen. Die Bäume spenden im Sommer natürlichen Schatten und ermöglichen auch bei großer Hitze einen angenehmen Aufenthalt im Freien.
Kinderspielgerät vorhanden.
Das Grundstück ist an drei Seiten von Sandsteinmauern eingegrenzt. An der Westseite neuer Metallzaun.
Lage des Objektes
Der Kindergarten befindet sich im Nachbarort (2 km), die Grundschule in Sachsenhagen (4 km, erreichbar mit Schülerbus, zur Haltestelle 300 m Fußweg).
Weiterführende Schulen in Lindhorst (8 km) und Stadthagen (14 km). Auch sie erreichbar mit Schülerbussen bzw. ÖPNV zu den üblichen Unterrichtszeiten.
Nächster Anschluss DB in Lindhorst. (8 km).
Anrufbussystem für individuelle Fahrten .
Nahversorger in Sachsenhagen (4 km), Loccum (8 km) und Hagenburg (8 km), Bergkirchener Hofladen (2 km).
Infrastruktur (im Umkreis von 5 km):
Apotheke, Lebensmittel-Discount, Allgemeinmediziner, Kindergarten, Grundschule, Öffentliche Verkehrsmittel
Weiterführende Schulen in Lindhorst (8 km) und Stadthagen (14 km). Auch sie erreichbar mit Schülerbussen bzw. ÖPNV zu den üblichen Unterrichtszeiten.
Nächster Anschluss DB in Lindhorst. (8 km).
Anrufbussystem für individuelle Fahrten .
Nahversorger in Sachsenhagen (4 km), Loccum (8 km) und Hagenburg (8 km), Bergkirchener Hofladen (2 km).
Infrastruktur (im Umkreis von 5 km):
Apotheke, Lebensmittel-Discount, Allgemeinmediziner, Kindergarten, Grundschule, Öffentliche Verkehrsmittel
Sonstige Informationen
Heizungsart: Zentralheizung
Energieträger: Holzpellets
Makleranfragen nicht erwünscht. Nach § 7 UWG sind unaufgeforderte Kontaktaufnahmen durch Makler ohne ausdrückliche Einwilligung des Empfängers verboten!
ohne-makler (OM) ist weder Anbieter noch Vermittler der Immobilie. OM betreibt eine Plattform für Immobilieneigentümer, die unter anderem die gleichzeitige Veröffentlichung einzelner Inserate auf mehreren Immobilienportalen ermöglicht. Die Inhalte dieser Inserate werden ausschließlich von Dritten verantwortet. Für die Richtigkeit, Vollständigkeit oder Rechtmäßigkeit der Angaben übernimmt OM keine Haftung. Hinweise auf mögliche Rechtsverstöße können jederzeit gemeldet werden und werden nach Prüfung umgehend bearbeitet.
Ansicht von Norden
Sichtgeschützte Terrasse, SO
Sommerliche Blütenpracht
Ein Zimmer im Grünen...
... mit Blick zur Spielecke
Ansicht von Süden
Rosenblüte
Gartenweg Nordwestseite
Eingang Wohnung Dachgeschoss
Flur Erdgeschoss
Wohn-/Esszimmer Erdgeschoss
Kamin...
... mit Sitzecke
Küche Erdgeschoss
Küche EG/Blick zum Essplatz
Bad Erdgeschoss
Flur Dachgeschoss
Schlafzimmer Dachgeschoss
Wohnzimmer Dachgeschoss...
... mit herrlicher Aussicht
Bad Dachgeschoss
Grundriss Keller
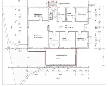
Grundriss Erdgeschoss
Grundriss Dachgeschoss