Exposé
Objektart:
Haus
» Doppelhaushaelfte
» Kauf
Standort: Haus »
Deutschland » Bayern » Landsberg am Lech (Kreis) » Schondorf
AIGNER - Neubau-Doppelhaushälfte für höchste Ansprüche nur wenige Gehminuten vom Ammersee entfernt
Außenansicht
Das Wichtigste auf einen Blick:
| Objektnummer: | 9260692 |
Preise
| Kaufpreis | 1.249.000 € |
| Nebenkosten | keine Angabe |
| Kaufpreis pro m² | 7704 € |
Flächen
| Wohnfläche | 158 m² |
| Nutzfläche | 50 m² |
| Grundstücksfläche | 245 m² |
| Maklerprovision | 0% |
Objekt Adresse
86938 Schondorf
Sonstige Angaben
| Baujahr | 2026 |
| Zimmer | 5 |
| Verfügbar ab | 2026 |
| Bad | 3 |
| Garage/Stellplätze | 1 |
| Küche | Einbauküche |
| Bad | 3 |
| Garage/Stellplätze | 1 |
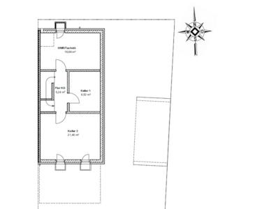
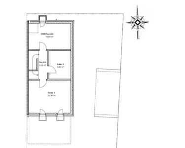
| Keller | Ja |
| Heizungsart | Zentralheizung |
Objektbeschreibung
Diese moderne Doppelhaushälfte im Neubau überzeugt nicht nur durch ihre attraktive Architektur, sondern auch durch durchdachte Raumaufteilung und hochwertige Ausstattung. Auf rund 158m² bietet dieses Haus eine perfekte Kombination aus funktionalem Design und hochwertigem Komfort für Familien.
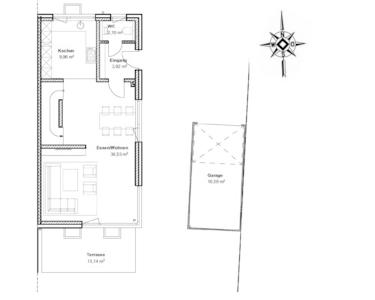
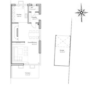
Raumaufteilung und Ausstattung: Im Erdgeschoss empfängt Sie der großzügige offene Wohnbereich mit Wohnküche, die für gesellige Abende und gemeinsames Kochen ideal ist. Bodentiefe Fenster und eine elegante Eckverglasung schaffen eine helle und einladende Atmosphäre. Der offene Schnitt sorgt für ein großzügiges Raumgefühl und ermöglicht eine individuelle Gestaltung Ihrer Möbel. Die Terrasse aus naturbelassenen Lärche-Holzdielen ist direkt vom Wohnbereich zugänglich und lädt zu entspannten Stunden im Freien ein.
Im Obergeschoss erwarten Sie zwei großzügige Kinderzimmer, die genügend Platz für Spiel, Arbeit und Erholung bieten. Das moderne Familienbad im Obergeschoss ist mit hochwertigen Fliesen ausgestattet und bietet alles, was Sie für den Alltag benötigen.
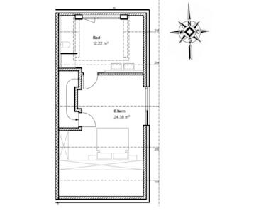
Ein echtes Highlight ist der Elternbereich im Dachgeschoss. Hier finden Sie nicht nur ein komfortables Schlafzimmer, sondern auch ein privates Duschbad. So wird das Dachgeschoss zu Ihrer persönlichen Wohlfühloase, abgetrennt von den restlichen Räumen des Hauses.
Modernste Haustechnik: Die Doppelhaushälfte wird mit einer Luft-Wasser-Wärmepumpe beheizt, die für eine effiziente und umweltfreundliche Wärme sorgt. Eine Fußbodenheizung in allen Geschossen, inklusive Keller, sorgt für behagliche Wärme, die in jedem Raum individuell regulierbar ist. Eine dezentrale Lüftungsanlage gewährleistet eine kontinuierliche Frischluftzufuhr und trägt zu einem gesunden Raumklima bei.
Raumaufteilung und Ausstattung: Im Erdgeschoss empfängt Sie der großzügige offene Wohnbereich mit Wohnküche, die für gesellige Abende und gemeinsames Kochen ideal ist. Bodentiefe Fenster und eine elegante Eckverglasung schaffen eine helle und einladende Atmosphäre. Der offene Schnitt sorgt für ein großzügiges Raumgefühl und ermöglicht eine individuelle Gestaltung Ihrer Möbel. Die Terrasse aus naturbelassenen Lärche-Holzdielen ist direkt vom Wohnbereich zugänglich und lädt zu entspannten Stunden im Freien ein.
Im Obergeschoss erwarten Sie zwei großzügige Kinderzimmer, die genügend Platz für Spiel, Arbeit und Erholung bieten. Das moderne Familienbad im Obergeschoss ist mit hochwertigen Fliesen ausgestattet und bietet alles, was Sie für den Alltag benötigen.
Ein echtes Highlight ist der Elternbereich im Dachgeschoss. Hier finden Sie nicht nur ein komfortables Schlafzimmer, sondern auch ein privates Duschbad. So wird das Dachgeschoss zu Ihrer persönlichen Wohlfühloase, abgetrennt von den restlichen Räumen des Hauses.
Modernste Haustechnik: Die Doppelhaushälfte wird mit einer Luft-Wasser-Wärmepumpe beheizt, die für eine effiziente und umweltfreundliche Wärme sorgt. Eine Fußbodenheizung in allen Geschossen, inklusive Keller, sorgt für behagliche Wärme, die in jedem Raum individuell regulierbar ist. Eine dezentrale Lüftungsanlage gewährleistet eine kontinuierliche Frischluftzufuhr und trägt zu einem gesunden Raumklima bei.
Ausstattung
- Heizung: Luft-Wasser-Wärmepumpe, FBH in allen Geschossen (auch Keller komplett)
- Fußbodenheizung in allen Räumen einzeln regulierbar
- Netzwerkverkabelung in allen Wohnräumen
- Massivbauweise
- Terrasse mit Holzdielenbelag, Lärche natur auf Lärche Unterkonstruktion
- Parkettböden in allen Wohnräumen / Fließenböden in Nutz- und Nassflächen
- Fenster Kunststoff, innen weiß, außen anthrazit, überall Rollos außer Essen/Wohnen, dort Raffstores
- dezentrale Lüftungsanlage
- Einzelgaragen mit Sektionaltor
- optionales PV Paket auf Wunsch mit Speichereinheit
- bodentiefe Fenster in allen Wohnbereichen
- Eckverglasung im Wohnbereich
- Häuser werden komplett schlüsselfertig inkl. Aussenanlagen hergestellt
- Fußbodenheizung in allen Räumen einzeln regulierbar
- Netzwerkverkabelung in allen Wohnräumen
- Massivbauweise
- Terrasse mit Holzdielenbelag, Lärche natur auf Lärche Unterkonstruktion
- Parkettböden in allen Wohnräumen / Fließenböden in Nutz- und Nassflächen
- Fenster Kunststoff, innen weiß, außen anthrazit, überall Rollos außer Essen/Wohnen, dort Raffstores
- dezentrale Lüftungsanlage
- Einzelgaragen mit Sektionaltor
- optionales PV Paket auf Wunsch mit Speichereinheit
- bodentiefe Fenster in allen Wohnbereichen
- Eckverglasung im Wohnbereich
- Häuser werden komplett schlüsselfertig inkl. Aussenanlagen hergestellt
Lage des Objektes
Im idyllischen Schondorf am Ammersee entwickeln wir für Sie zwei Doppelhaushälften in ruhiger Ortsrandlage.
Schondorf liegt mitten im Fünf-Seen-Land, direkt am wunderschönen Ammersee. Nur 45 Kilometer westlich von München gelegen stellt der Luftkurort einen idealen Ausgangspunkt für Berufspendler und Freizeitsportler gleichermaßen dar.
Im, auf und am Wasser bieten sich zahlreiche Möglichkeiten zur Freizeit-gestaltung und das grüne, hügelige Hinterland ergänzt das Angebot zusätzlich und lädt auf ausgedehnte Lauf- und Radfahr-Runden ein.
Überhaupt ist das Fünf-Seen-Land rund um Ammersee und Starnberger See eines der lebenswertesten Gebiete Deutschlands und bietet den idealen Mix aus landschaftlicher Schönheit und optimaler Infrastruktur.
Dieser Mix aus Verfügbarkeit und Abstand macht Schondorf zu einem attraktiven Lebensmittelpunkt mit hohem Komfortfaktor.
Hier ticken die Uhren noch etwas langsamer und das ruhige Gemeindeleben ist eine ideale Umgebung für Kinder. Schulen, Kindergärten, Lebensmittelgeschäfte - für den täglichen Bedarf ist gesorgt.
Wer dennoch für Arbeit, Shopping oder Kultur in die Großstadt muss, ist in rund 45 Minuten mittendrin.
Schondorf liegt mitten im Fünf-Seen-Land, direkt am wunderschönen Ammersee. Nur 45 Kilometer westlich von München gelegen stellt der Luftkurort einen idealen Ausgangspunkt für Berufspendler und Freizeitsportler gleichermaßen dar.
Im, auf und am Wasser bieten sich zahlreiche Möglichkeiten zur Freizeit-gestaltung und das grüne, hügelige Hinterland ergänzt das Angebot zusätzlich und lädt auf ausgedehnte Lauf- und Radfahr-Runden ein.
Überhaupt ist das Fünf-Seen-Land rund um Ammersee und Starnberger See eines der lebenswertesten Gebiete Deutschlands und bietet den idealen Mix aus landschaftlicher Schönheit und optimaler Infrastruktur.
Dieser Mix aus Verfügbarkeit und Abstand macht Schondorf zu einem attraktiven Lebensmittelpunkt mit hohem Komfortfaktor.
Hier ticken die Uhren noch etwas langsamer und das ruhige Gemeindeleben ist eine ideale Umgebung für Kinder. Schulen, Kindergärten, Lebensmittelgeschäfte - für den täglichen Bedarf ist gesorgt.
Wer dennoch für Arbeit, Shopping oder Kultur in die Großstadt muss, ist in rund 45 Minuten mittendrin.
Sonstige Informationen
Heizungsart: Wärmepumpe
Baujahr: 2026
Aussenansicht
Innenvisualisierung
EG
OG
DG
UG