Exposé
Objektart:
Grundstück
» Wohnen
» Kauf
Standort: Grundstück »
Deutschland » Sachsen » Leipzig, Stadt (Kreis) » Leipzig
Unmittelbar an der Karli - Baugrundstück in 2. Reihe mit Baugenehmigung
Ansicht Nord
Angeboten von:
Marko Künne Immobilien
Käthe-Kollwitz-Str. 58c
04109 Leipzig
Deutschland
Telefon:+49(0)341-4429566
Fax:+49(0)341-2253930
www.kuenne-immobilien.de
| Telefon: | 0341 442 9566 |
| Fax: | 0341 2253930 |
Das Wichtigste auf einen Blick:
| Objektnummer: | 9259092 |
Preise
| Kaufpreis | 300.000 € |
| Nebenkosten | keine Angabe |
Flächen
| Grundstücksfläche | 280 m² |
Objekt Adresse
04275 Leipzig
- Sachsen
Sonstige Angaben
| Verfügbar ab | keine Angabe |
| Anzahl der Etagen im Haus | 3 |
| Balkone | 1 |
Objektbeschreibung
Das Baugrundstück befindet sich in der begehrten Leipziger Südvorstadt, unmittelbar an der „Karli“. Die Karli ist das pulsierende Herz des Viertels, bekannt für ihre vielfältigen gastronomischen Angebote, Boutiquen und kulturellen Highlights. Hier wohnen Sie in einem der lebendigsten und gleichzeitig charmantesten Stadtteile Leipzigs.
Bei dem Grundstück handelt es sich um eine noch zu vermessende Teilfläche. Verkauft wird ein ca. 280 m² großes Baugrundstück in 2. Reihe eines Mehrfamilienhauses. Diese ruhige, jedoch zentral gelegene Position bietet Ihnen die perfekte Kombination aus urbanem Leben und abgeschiedener Ruhe.
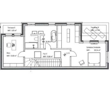
Die Baugenehmigung für das Projekt wird mit veräußert. Die Planung umfasst ein Hofgebäude auf drei Etagen, bestehend aus 6 Wohn- und Schlafräumen, 2 Bädern, Gäste-WC und Abstellraum. Großzügige Wohnflächen auf allen Etagen bieten reichlich Raum für ein komfortables Familienleben.
Alle notwendigen Versorgungsleitungen (Strom, Wasser, Abwasser) liegen an der Schenkendorfstraße an. Das Wege- und Leitungsrecht ist über das Vorderhaus gesichert.
Für weitere Informationen oder die Zusendung zusätzlicher Unterlagen stehen wir Ihnen gerne zur Verfügung. Bitte zögern Sie nicht, uns bei Fragen zu kontaktieren.
" frisch, engagiert, solide "
Die Künne Immobilien Gruppe ist professioneller Dienstleister der Immobilienbranche und steht Ihnen in den Bereichen Projektentwicklung, Verkauf, Vermietung, Verwaltung und Facility Management zur Verfügung.
Für weitere Informationen und Einblicke besuchen Sie unsere Homepage: www.kuenne-gruppe.de Sie wollen Ihre Immobilie verkaufen? Egal ob Mehrfamilien- oder Einfamilienhaus, Eigentumswohnung, Grundstück oder Neubau- bzw. Bauträgerprojekt. Wir vermitteln kompetent, transparent und zügig Ihre Immobilie, bundesweit.
Bei dem Grundstück handelt es sich um eine noch zu vermessende Teilfläche. Verkauft wird ein ca. 280 m² großes Baugrundstück in 2. Reihe eines Mehrfamilienhauses. Diese ruhige, jedoch zentral gelegene Position bietet Ihnen die perfekte Kombination aus urbanem Leben und abgeschiedener Ruhe.
Die Baugenehmigung für das Projekt wird mit veräußert. Die Planung umfasst ein Hofgebäude auf drei Etagen, bestehend aus 6 Wohn- und Schlafräumen, 2 Bädern, Gäste-WC und Abstellraum. Großzügige Wohnflächen auf allen Etagen bieten reichlich Raum für ein komfortables Familienleben.
Alle notwendigen Versorgungsleitungen (Strom, Wasser, Abwasser) liegen an der Schenkendorfstraße an. Das Wege- und Leitungsrecht ist über das Vorderhaus gesichert.
Für weitere Informationen oder die Zusendung zusätzlicher Unterlagen stehen wir Ihnen gerne zur Verfügung. Bitte zögern Sie nicht, uns bei Fragen zu kontaktieren.
" frisch, engagiert, solide "
Die Künne Immobilien Gruppe ist professioneller Dienstleister der Immobilienbranche und steht Ihnen in den Bereichen Projektentwicklung, Verkauf, Vermietung, Verwaltung und Facility Management zur Verfügung.
Für weitere Informationen und Einblicke besuchen Sie unsere Homepage: www.kuenne-gruppe.de Sie wollen Ihre Immobilie verkaufen? Egal ob Mehrfamilien- oder Einfamilienhaus, Eigentumswohnung, Grundstück oder Neubau- bzw. Bauträgerprojekt. Wir vermitteln kompetent, transparent und zügig Ihre Immobilie, bundesweit.
Lage des Objektes
Das Objekt befindet sich im Stadtteil Südvorstadt, in einer der begehrtesten Wohnlagen von Leipzig. Die Südvorstadt bietet zahlreiche Freizeitmöglichkeiten, grüne Parks und eine hervorragende Infrastruktur.
Die Südvorstadt grenzt im Norden an das Stadtzentrum und ist ein begehrtes Stadtviertel mit gründerzeitlichen und Jugendstilbauten und vielleicht eine der lebendigsten, buntesten und entspanntesten Gegenden, die die Stadt zu bieten hat. Dass die Südvorstadt insbesondere von jungen Leuten als Wohnort bevorzugt wird, liegt nicht zuletzt an der „Karli”, der Karl-Liebknecht-Straße mit ihrer Kneipen-, Kleinkunst- und Alternativszene und der Nähe zur Universität. Sie lädt mit ihren Straßencafés sowie kleinen Läden zum Bummeln und Entspannen ein.
Die traditionsreiche Galopprennbahn Scheibenholz bildet den Übergang zum Auenwald mit seiner vielfältigen Flora und Fauna. Nördlich des Rennbahnweges schließt sich der Clara-Zetkin-Park an. Der ebenfalls zur Südvorstadt gehörende Fockeberg ist ein beliebter Erholungsort und ein hervorragender Aussichtspunkt.
Die Südvorstadt grenzt im Norden an das Stadtzentrum und ist ein begehrtes Stadtviertel mit gründerzeitlichen und Jugendstilbauten und vielleicht eine der lebendigsten, buntesten und entspanntesten Gegenden, die die Stadt zu bieten hat. Dass die Südvorstadt insbesondere von jungen Leuten als Wohnort bevorzugt wird, liegt nicht zuletzt an der „Karli”, der Karl-Liebknecht-Straße mit ihrer Kneipen-, Kleinkunst- und Alternativszene und der Nähe zur Universität. Sie lädt mit ihren Straßencafés sowie kleinen Läden zum Bummeln und Entspannen ein.
Die traditionsreiche Galopprennbahn Scheibenholz bildet den Übergang zum Auenwald mit seiner vielfältigen Flora und Fauna. Nördlich des Rennbahnweges schließt sich der Clara-Zetkin-Park an. Der ebenfalls zur Südvorstadt gehörende Fockeberg ist ein beliebter Erholungsort und ein hervorragender Aussichtspunkt.
Ansicht Ost
1.Obergeschoss
2. Obergeschoss
Erdgeschoss
Lageplan
Ansicht Grundstück
Ansicht Hinterhof
Ansicht Grundstück/Hinterhof
Zugang Hinterhof Schenkendorf