Exposé
Objektart:
Haus
» Zweifamilienhaus
» Kauf
Standort: Haus »
Deutschland » Bayern » Kulmbach (Kreis) » Schwarzenbach am Wald
Zweifamilienhaus inkl. Grundstück + 10.000EUR KÜCHENGUTSCHEIN
Das Wichtigste auf einen Blick:
| Objektnummer: | 9258697 |
Preise
| Kaufpreis | 549.995 € |
| Nebenkosten | keine Angabe |
Flächen
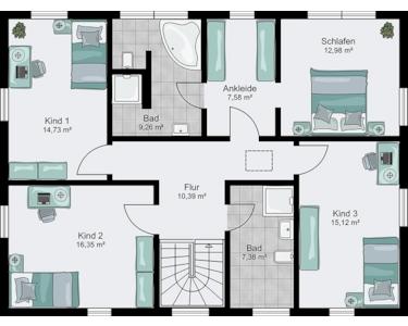
| Wohnfläche | 170 m² |
| Grundstücksfläche | 1.200 m² |
Objekt Adresse
95131 Schwarzenbach am Wald
Sonstige Angaben
| Zimmer | 8 |
| Verfügbar ab | keine Angabe |
| Bad | 2 |
| Anzahl der Etagen im Haus | 2 |
| Bad | 2 |
| Barrierefrei | |
| Energietyp | KfW-40 |
| Heizungsart | Zentralheizung |
| Energieträger/Befeuerung | Luft-Wärme-Pumpe |
Objektbeschreibung
Willkommen in Ihrem zukünftigen Traumhaus in Schwarzenbach am Wald! Dieses großzügige Zweifamilienhaus, projektiert nach Ihren individuellen Wünschen, bietet Ihnen mit 170 m² Wohnfläche und insgesamt 8 Zimmern ausreichend Platz für die ganze Familie oder auch für zwei separate Wohneinheiten. Auf einem weitläufigen Grundstück von 1200 m² erstreckt sich das Haus über zwei Etagen und erfüllt damit die Anforderungen an modernes Wohnen. Mit 4 Schlafzimmern, 2 Badezimmern sowie einem zusätzlichen Gäste-WC ist dieses Objekt ideal für Familien oder als Anlageobjekt gedacht. Sie können sowohl komfortabel wohnen als auch von Miet- oder Pachteinnahmen profitieren. Die flexible Nutzung als Generationenhaus oder Haus mit Einliegerwohnung macht dieses Angebot besonders attraktiv. Hier genießen Sie die Vorteile eines hohen Wohnkomforts und der Möglichkeit, nah beieinander zu leben, ohne auf die eigene Privatsphäre verzichten zu müssen. Das durchdachte Baukonzept sorgt dafür, dass Sie in Ihrem neuen Zuhause sich rundum wohlfühlen.
Zusätzlich können Sie mit dem KfW 40 Standard von hoher Energieeffizienz profitieren, was bedeutet, dass Sie in Zukunft nicht nur umweltfreundlich leben, sondern auch Kosten sparen. Die Verwendung einer Wärmepumpe als Befeuerungsart sorgt für eine nachhaltige und kosteneffiziente Beheizung Ihres neuen Zuhauses.
Dieses Zweifamilienhaus ist die perfekte Lösung für alle, die ein modernes, flexibles und energieeffizientes Zuhause suchen.
Zusätzlich können Sie mit dem KfW 40 Standard von hoher Energieeffizienz profitieren, was bedeutet, dass Sie in Zukunft nicht nur umweltfreundlich leben, sondern auch Kosten sparen. Die Verwendung einer Wärmepumpe als Befeuerungsart sorgt für eine nachhaltige und kosteneffiziente Beheizung Ihres neuen Zuhauses.
Dieses Zweifamilienhaus ist die perfekte Lösung für alle, die ein modernes, flexibles und energieeffizientes Zuhause suchen.
Ausstattung
Die Ausstattung des Zweifamilienhauses ist gehoben und lässt keine Wünsche offen. Die Ausbaustufe "FastFertigPlus" beinhaltet eine komplette Sanitär-Grundausstattung. Bei dieser Ausbaustufe übernehmen Fachbetriebe die haustechnischen Gewerke, wie Heizung, Lüftung, Sanitär und Estrich, was Ihnen die Sicherheit gibt, dass alles professionell und nach höchsten Standards ausgeführt wird. Die Wärmeversorgung erfolgt über eine innovative Wärmepumpe, die nicht nur umweltfreundlich ist, sondern auch zu Ihrer Energieeffizienz beiträgt. Die Innenräume sind großzügig gestaltet und bieten viel Licht, während die hochwertige Bauweise für Langlebigkeit und Komfort sorgt.
Lage des Objektes
Schwarzenbach am Wald ist der perfekte Standort für Ihr neues Zuhause. Die ländliche Umgebung bietet Ihnen eine hohe Lebensqualität mit einer ruhigen und naturnahen Atmosphäre. Gleichzeitig profitieren Sie von einer guten Anbindung an die umliegenden Städte und einer soliden Infrastruktur. Einkaufsmöglichkeiten, Schulen und Freizeitangebote sind in der Nähe und sorgen für eine hohe Lebensqualität. Ob für aktive Familien oder Ruhesuchende, hier finden Sie alles, was Sie für ein erfülltes Leben benötigen. Die Freizeitmöglichkeiten sind vielfältig: Von Wanderungen in der Natur bis zu Sporteinrichtungen in der Umgebung ist alles vorhanden.
Sonstige Informationen
Sie haben die Wahl zwischen vier verschiedenen Ausbaustufen, die Ihnen Flexibilität und finanzielle Gestaltungsmöglichkeiten bieten. Die Eigenleistung, die Sie in Form einer Muskelhypothek einbringen können, spart bares Geld und reduziert Ihre Kreditlast. Bei dieser Ausbaustufe 3 - "FastFertigPlus" sind alle wesentlichen Leistungen bereits enthalten und erlauben es Ihnen, aktiv am Bauprozess teilzuhaben, während Sie gleichzeitig die Gewissheit haben, dass die Fachgewerke von Experten erledigt werden. Diese Ausbaustufe ist ideal für alle, die mit einem guten Plan und professioneller Unterstützung ihr Traumhaus Wirklichkeit werden lassen möchten.