Exposé
Objektart:
Wohnung
» Etage
» Kauf
Standort: Wohnung »
Deutschland » Thüringen » Erfurt, Stadt (Kreis) » Erfurt
-Provisionsfrei- Familienfreundliche 4-Zi.-Wohnung in Altstadtnähe -Renditestarke Kapitalanlage
Wohnraum Referenz
Angeboten von:
Marko Künne Immobilien
Käthe-Kollwitz-Str. 58c
04109 Leipzig
Deutschland
Telefon:+49(0)341-4429566
Fax:+49(0)341-2253930
www.kuenne-immobilien.de
| Telefon: | 0341 442 9566 |
| Fax: | 0341 2253930 |
Das Wichtigste auf einen Blick:
| Objektnummer: | 9258427 |
Preise
| Kaufpreis | 237.000 € |
| Nebenkosten | keine Angabe |
| Kaufpreis pro m² | 2461 € |
Flächen
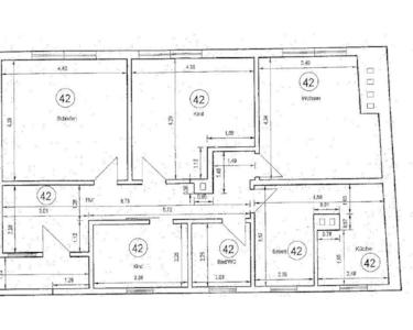
| Wohnfläche | 96,31 m² |
Objekt Adresse
99085 Erfurt
- Thüringen
Sonstige Angaben
| Baujahr | 1980 |
| Letzte Modernisierung | 1998 |
| Zimmer | 4 |
| Verfügbar ab | nach Vereinbarung |
| Anzahl der Etagen im Haus | 6 |
| Inserat befindet sich im Stockwerk | 5 |
| Bad | Dusche |
| Boden | Laminat |
| Keller | Ja |
| Energieausweistyp | Verbrauch |
| Ausstellungsdatum | 19. 01. 2024 |
| Gültig bis | 19.01.2034 |
| Energieeffizienzklasse | D |
| Energieverbrauchkennwert | 110,4 kWh/(m²*a) |
| Wesentlicher Energieträger | Erdgas Leicht |
Objektbeschreibung
Ihr Traum vom Eigentum in unmittelbarer Nähe zur Erfurter Altstadt!
Zum Verkauf steht eine attraktive, ca. 96,31m²-große Eigentumswohnung in der Stauffenbergallee im Zentrum von Erfurt. Die familienfreundliche 4-Raumwohnung befindet sich im Dachgeschoss eines um 1980 erbauten und 1998 sanierten Mehrfamilienhauses.
Die schönen, hellen Wohnräume und Kinderzimmer sind mit Laminat ausgestattet. Die Küche und das Tageslichtbad sind gefliest.
Die Wohneinheit ist seit dem 01.07.2016 für 5,50€/m² vermietet.
Weitere Informationen dazu erhalten Sie gern in einem Beratungsgespräch.
Sind Sie neugierig geworden? Kontaktieren Sie uns doch einfach direkt für weitere Informationen zu Ihrem neuen Zuhause!
" frisch, engagiert, solide "
Die Künne Immobilien Gruppe ist professioneller Dienstleister der Immobilienbranche und steht Ihnen in den Bereichen Projektentwicklung, Verkauf, Vermietung, Verwaltung und Facility Management zur Verfügung.
Für weitere Informationen und Einblicke besuchen Sie unsere Homepage: www.kuenne-gruppe.de Sie wollen Ihre Immobilie verkaufen? Egal ob Mehrfamilien- oder Einfamilienhaus, Eigentumswohnung, Grundstück oder Neubau- bzw. Bauträgerprojekt. Wir vermitteln kompetent, transparent und zügig Ihre Immobilie, bundesweit.
Zum Verkauf steht eine attraktive, ca. 96,31m²-große Eigentumswohnung in der Stauffenbergallee im Zentrum von Erfurt. Die familienfreundliche 4-Raumwohnung befindet sich im Dachgeschoss eines um 1980 erbauten und 1998 sanierten Mehrfamilienhauses.
Die schönen, hellen Wohnräume und Kinderzimmer sind mit Laminat ausgestattet. Die Küche und das Tageslichtbad sind gefliest.
Die Wohneinheit ist seit dem 01.07.2016 für 5,50€/m² vermietet.
Weitere Informationen dazu erhalten Sie gern in einem Beratungsgespräch.
Sind Sie neugierig geworden? Kontaktieren Sie uns doch einfach direkt für weitere Informationen zu Ihrem neuen Zuhause!
" frisch, engagiert, solide "
Die Künne Immobilien Gruppe ist professioneller Dienstleister der Immobilienbranche und steht Ihnen in den Bereichen Projektentwicklung, Verkauf, Vermietung, Verwaltung und Facility Management zur Verfügung.
Für weitere Informationen und Einblicke besuchen Sie unsere Homepage: www.kuenne-gruppe.de Sie wollen Ihre Immobilie verkaufen? Egal ob Mehrfamilien- oder Einfamilienhaus, Eigentumswohnung, Grundstück oder Neubau- bzw. Bauträgerprojekt. Wir vermitteln kompetent, transparent und zügig Ihre Immobilie, bundesweit.
Lage des Objektes
Erfurt ist mit rund 214.000 Einwohnern die Landeshauptstadt des Freistaates Thüringen und zugleich ein Zentrum für Wirtschaft, Bildung und Kultur. Die Stadt verfügt durch die Autobahnen A4 und A71, sowie die Bundesstraßen B4 und B7 über eine optimale Infrastruktur. Auch der öffentliche Nahverkehr ist gut ausgeprägt, sodass es zahlreiche Haltestellen rund um die Stauffenbergallee gibt.
Innerhalb weniger Minuten ist die Altstadt, die Universität und das Stadtzentrum von Erfurt zu erreichen.
Innerhalb weniger Minuten ist die Altstadt, die Universität und das Stadtzentrum von Erfurt zu erreichen.
Laubengänge
Schlafzimmer Referenz
Hinterhof Rückansicht
Außenansicht
Umgebung
Hofansicht
Straßenansicht
Bad
Küche
Treppenhaus
Umgebung
Hof
Grundriss WE42