Exposé
Objektart:
Wohnung
» Etage
» Kauf
Standort: Wohnung »
Deutschland » Sachsen » Leipzig, Stadt (Kreis) » Leipzig
Wohnen wie im Haus: 5 Zimmer mit Gartenparadies mitten in der Südvorstadt
Flurkarte
Angeboten von:
Marko Künne Immobilien
Käthe-Kollwitz-Str. 58c
04109 Leipzig
Deutschland
Telefon:+49(0)341-4429566
Fax:+49(0)341-2253930
www.kuenne-immobilien.de
| Telefon: | 0341 442 9566 |
| Fax: | 0341 2253930 |
Das Wichtigste auf einen Blick:
| Objektnummer: | 9257136 |
Preise
| Kaufpreis | 584.400 € |
| Nebenkosten | keine Angabe |
| Kaufpreis pro m² | 3675,47 € |
Flächen
| Wohnfläche | 159 m² |
Objekt Adresse
04275 Leipzig
- Sachsen
Sonstige Angaben
| Baujahr | 2003 |
| Zimmer | 5 |
| Verfügbar ab | keine Angabe |
| Anzahl der Etagen im Haus | 6 |
| Inserat befindet sich im Stockwerk | 0 |
| Boden | Fliesen, Teppich, Parkett, Laminat |
| Balkone | 1 |
| Garten | Ja |
| Fahrstuhl | Ja |
| Energieausweistyp | Verbrauch |
| Ausstellungsdatum | 30. 01. 2019 |
| Gültig bis | 30.01.2029 |
| Energieeffizienzklasse | C |
| Energieverbrauchkennwert | 81 kWh/(m²*a) |
| Heizungsart | Zentralheizung |
| Wesentlicher Energieträger | Gas |
| Energieträger/Befeuerung | Gas |
Objektbeschreibung
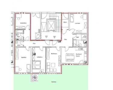
Zum Verkauf steht eine 159 m² große Eigentumswohnung in der beliebten Leipziger Südvorstadt. Die Wohnung befindet sich in einem 2003 erbauten Mehrfamilienhaus, welches über insgesamt 35 Wohneinheiten verfügt. Im Objekt befindet sich eine Tiefgarage mit 24 Einzelstellplätzen sowie ein Personenaufzug, durch welchen Sie bequem in jede Einheit gelangen. Das Gemeinschaftseigentum befindet sich in einem gepflegten Zustand. Die Heizungsanlage im Objekt wurde 2023 umfänglich erneuert. Es wurde ein modernes, innovatives Gas-Brennwertgerät verbaut.
Zum Verkauf stehen 2 Wohneinheiten (WE 36 = 86,85 m² und WE 37 = 72,14 m²), welche (nach Genehmigung) von den Mietern fachgerecht zusammengeführt wurden. Die Wohneinheiten verfügen jeweils über ein Bad mit Wanne sowie über einen kleinen Abstellraum, innerhalb der Einheit. Jede Wohneinheit verfügt über eine Terrasse mit Blick in den Innenhof. Mitverkauft wird jeweils ein Sondernutzungsrecht an einer Gartenfläche.
Zusätzlich zur Wohneinheit, kann auf Wunsch ein Tiefgaragenstellplatz, für zzgl. 25.000€, erworben werden. Die Stellplätze sind derzeit alle vermietet, können jedoch unter Einhaltung einer dreimonatigen Kündigungsfrist beendet werden.
' frisch, engagiert, solide '
Die Künne Immobilien Gruppe ist professioneller Dienstleister der Immobilienbranche und steht Ihnen in den Bereichen Projektentwicklung, Verkauf, Vermietung, Verwaltung und Facility Management zur Verfügung. Für weitere Informationen und Einblicke besuchen Sie unsere Homepage: www.kuenne-gruppe.de
Sie wollen Ihre Immobilie verkaufen? Egal ob Mehrfamilien- oder Einfamilienhaus, Eigentumswohnung, Grundstück oder Neubau- bzw. Bauträgerprojekt. Wir vermitteln kompetent, transparent und zügig Ihre Immobilie, bundesweit.
Zum Verkauf stehen 2 Wohneinheiten (WE 36 = 86,85 m² und WE 37 = 72,14 m²), welche (nach Genehmigung) von den Mietern fachgerecht zusammengeführt wurden. Die Wohneinheiten verfügen jeweils über ein Bad mit Wanne sowie über einen kleinen Abstellraum, innerhalb der Einheit. Jede Wohneinheit verfügt über eine Terrasse mit Blick in den Innenhof. Mitverkauft wird jeweils ein Sondernutzungsrecht an einer Gartenfläche.
Zusätzlich zur Wohneinheit, kann auf Wunsch ein Tiefgaragenstellplatz, für zzgl. 25.000€, erworben werden. Die Stellplätze sind derzeit alle vermietet, können jedoch unter Einhaltung einer dreimonatigen Kündigungsfrist beendet werden.
' frisch, engagiert, solide '
Die Künne Immobilien Gruppe ist professioneller Dienstleister der Immobilienbranche und steht Ihnen in den Bereichen Projektentwicklung, Verkauf, Vermietung, Verwaltung und Facility Management zur Verfügung. Für weitere Informationen und Einblicke besuchen Sie unsere Homepage: www.kuenne-gruppe.de
Sie wollen Ihre Immobilie verkaufen? Egal ob Mehrfamilien- oder Einfamilienhaus, Eigentumswohnung, Grundstück oder Neubau- bzw. Bauträgerprojekt. Wir vermitteln kompetent, transparent und zügig Ihre Immobilie, bundesweit.
Grundrissbeispiel
WE 1+2