Exposé
Objektart:
Büro / Praxen
» Bueroflaeche
» Miete
Standort: Büro / Praxen »
Deutschland » Hessen » Schwalm-Eder-Kreis (Kreis) » Melsungen
Büro / Praxis Fläche in Innenstadtlage Erdgeschoss & OG Teilbar, Barrierefrei , Beleuchtung CAT6
Bürofläche im EG
Das Wichtigste auf einen Blick:
| Objektnummer: | 9251536 |
Preise
| Kaltmiete (netto) | 2.066 € |
| Nebenkosten | 130 € |
| Kaution | 3.429 € |
Flächen
| Gesamtfläche | 210 m² |
| Bürofläche | 210 m² |
| Maklerprovision | keine Provision, courtagefrei |
Objekt Adresse
Eulenturm str 2
34212 Melsungen
- Hessen
Sonstige Angaben
| Baujahr | 1860 |
| Verfügbar ab | sofort |
| Anzahl der Etagen im Haus | 1 |
| Inserat befindet sich im Stockwerk | 0 |
| Bad | Wanne |
| Boden | Fliesen, Teppich |
| Barrierefrei | |
| Heizungsart | Zentralheizung |
| Energieträger/Befeuerung | Gas |
Objektbeschreibung
Wichtig: Das Erdgeschoss kann unabhängig vom Obergeschoss angemietet werden.
Moderne, sanierte Büro- oder Praxisfläche in zentraler Innenstadtlage – ca. 210 m² auf zwei Etagen, barrierefrei mit CAT6-EDV-Infrastruktur
Diese hochwertig modernisierte Gewerbeeinheit erstreckt sich über ca. 210 m² auf zwei Etagen (Erd- und Obergeschoss) und eignet sich ideal für die Nutzung als Büro, Praxis oder Kanzlei. Die zentrale Innenstadtlage, die durchdachte Raumaufteilung und die moderne technische Ausstattung bieten optimale Voraussetzungen für einen professionellen Geschäftsbetrieb.
Das Gebäude wurde im Zuge der Sanierung vollständig gedämmt, und der Großteil der Fenster ist dreifach verglast
Parkmöglichkeiten können bei der Stadt Melsungen auf dem nur eine Gehminute entfernten Parkplatz neben dem Objekt beantragt werden. Alternativ besteht die Möglichkeit, Stellplätze auf angrenzenden Grundstücken kostenpflichtig fest anzumieten.
-------------------------------------------------------------------------------
Erdgeschoss – ca. 133 m² (barrierefrei)
Barrierefreier Zugang über Treppenhaus und separaten Nebeneingang
Großzügige, helle Räume mit umlaufender 3-fach verglaster Fensterfront
Behindertengerechtes WC mit Notrufanlage und Anschlussmöglichkeit für eine Dusche
Moderne CAT6-EDV-Verkabelung mit separatem Technikraum inkl. Serverschrank
Zusätzliche Lagerfläche vorhanden
Abgehängte Odenwald-Akustikdecke (Rasterdecke)
Beleuchtung, Belüftung und Ergonomie gemäß Arbeitsstättenverordnung (ArbStättV)
Hinweis: Das Erdgeschoss mit ca. 133 m² kann bei Bedarf auch separat angemietet werden.
Mietkonditionen für das Erdgeschoss (Einzelnutzung):
Nettokaltmiete: 8,60 €/m² = 1.143,80 € / Monat
Nebenkostenvorauszahlung (netto): 150 €/Monat
Gesamtmiete netto: 1.293,80 €/Monat (zzgl. MwSt.)
-------------------------------------------------------------------------------
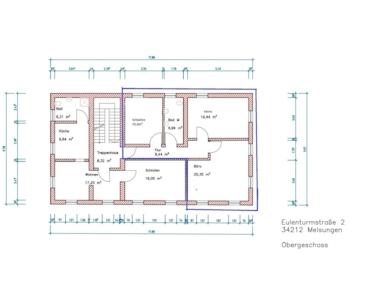
Obergeschoss – ca. 80 m²
Durchgehende EDV-Verkabelung zum Erdgeschoss
Raumaufteilung:
Flur
Tageslicht-WC inkl. Dusche
Aufenthaltsraum mit moderner Einbauküche
Ein großer und ein kleiner Büroraum
Auch hier: Ausstattung und Beleuchtung gemäß Arbeitsstättenverordnung
-------------------------------------------------------------------------------
Ausstattung im Überblick
Gesamtfläche: ca. 210 m²
Vollständige CAT6-EDV-Infrastruktur inkl. Serverschränke (EG & OG)
Nadelvlies-Bodenbelag in allen Bürobereichen
Moderne Beleuchtung auf beiden Etagen
Einbauküche im OG
Flexible Raumaufteilung
Zentrale Innenstadtlage mit optimaler Erreichbarkeit
Mietkonditionen für die Gesamtfläche (EG + OG):
Nettokaltmiete: 8,60 €/m²
Monatliche Nettokaltmiete: 1.806 €
Nebenkostenvorauszahlung (netto): 260 €
Gesamtmiete netto: 2.066 €/Monat (zzgl. MwSt.)
Moderne, sanierte Büro- oder Praxisfläche in zentraler Innenstadtlage – ca. 210 m² auf zwei Etagen, barrierefrei mit CAT6-EDV-Infrastruktur
Diese hochwertig modernisierte Gewerbeeinheit erstreckt sich über ca. 210 m² auf zwei Etagen (Erd- und Obergeschoss) und eignet sich ideal für die Nutzung als Büro, Praxis oder Kanzlei. Die zentrale Innenstadtlage, die durchdachte Raumaufteilung und die moderne technische Ausstattung bieten optimale Voraussetzungen für einen professionellen Geschäftsbetrieb.
Das Gebäude wurde im Zuge der Sanierung vollständig gedämmt, und der Großteil der Fenster ist dreifach verglast
Parkmöglichkeiten können bei der Stadt Melsungen auf dem nur eine Gehminute entfernten Parkplatz neben dem Objekt beantragt werden. Alternativ besteht die Möglichkeit, Stellplätze auf angrenzenden Grundstücken kostenpflichtig fest anzumieten.
-------------------------------------------------------------------------------
Erdgeschoss – ca. 133 m² (barrierefrei)
Barrierefreier Zugang über Treppenhaus und separaten Nebeneingang
Großzügige, helle Räume mit umlaufender 3-fach verglaster Fensterfront
Behindertengerechtes WC mit Notrufanlage und Anschlussmöglichkeit für eine Dusche
Moderne CAT6-EDV-Verkabelung mit separatem Technikraum inkl. Serverschrank
Zusätzliche Lagerfläche vorhanden
Abgehängte Odenwald-Akustikdecke (Rasterdecke)
Beleuchtung, Belüftung und Ergonomie gemäß Arbeitsstättenverordnung (ArbStättV)
Hinweis: Das Erdgeschoss mit ca. 133 m² kann bei Bedarf auch separat angemietet werden.
Mietkonditionen für das Erdgeschoss (Einzelnutzung):
Nettokaltmiete: 8,60 €/m² = 1.143,80 € / Monat
Nebenkostenvorauszahlung (netto): 150 €/Monat
Gesamtmiete netto: 1.293,80 €/Monat (zzgl. MwSt.)
-------------------------------------------------------------------------------
Obergeschoss – ca. 80 m²
Durchgehende EDV-Verkabelung zum Erdgeschoss
Raumaufteilung:
Flur
Tageslicht-WC inkl. Dusche
Aufenthaltsraum mit moderner Einbauküche
Ein großer und ein kleiner Büroraum
Auch hier: Ausstattung und Beleuchtung gemäß Arbeitsstättenverordnung
-------------------------------------------------------------------------------
Ausstattung im Überblick
Gesamtfläche: ca. 210 m²
Vollständige CAT6-EDV-Infrastruktur inkl. Serverschränke (EG & OG)
Nadelvlies-Bodenbelag in allen Bürobereichen
Moderne Beleuchtung auf beiden Etagen
Einbauküche im OG
Flexible Raumaufteilung
Zentrale Innenstadtlage mit optimaler Erreichbarkeit
Mietkonditionen für die Gesamtfläche (EG + OG):
Nettokaltmiete: 8,60 €/m²
Monatliche Nettokaltmiete: 1.806 €
Nebenkostenvorauszahlung (netto): 260 €
Gesamtmiete netto: 2.066 €/Monat (zzgl. MwSt.)
Ausstattung
Vollbad, Barrierefrei, Teppichboden, Fliesen, Sonstiges (s. Text)
Bemerkungen:
Nadelvlies Boden ( Büroflächen )
Odenwald Akustikdecke / Rasterdecke ( im EG )
EDV CAT6 Verkabelung im EG & OG inklusive Serverschrank
Komplette Beleuchtung
Erdgeschoss Barrierefrei
Bemerkungen:
Nadelvlies Boden ( Büroflächen )
Odenwald Akustikdecke / Rasterdecke ( im EG )
EDV CAT6 Verkabelung im EG & OG inklusive Serverschrank
Komplette Beleuchtung
Erdgeschoss Barrierefrei
Lage des Objektes
Die Fachwerkstadt Melsungen hat mit ihren Stadtteilen ca. 15.000 Einwohner und
liegt etwa 30 Km südlich von Kassel. Durch ihre gute Infrastruktur, vielen
Einkaufs- und Freizeitmöglichkeiten sowie Ärzten, bietet Melsungen eine hohe
Lebensqualität. Die klimatisch gute Lage im Fuldatal begünstigt die
Wohnsituation zusätzlich. Durch die sehr gute Verkehrsanbindung zur Autobahn
A7 (ca. 5 Km) und den beiden Bahnhaltestellen (Melsungen Hauptbahnhof und
Melsungen Bartenwetzerbrücke) lassen sich Kassel, Fulda, Eisenach, Frankfurt
und Hannover ausgezeichnet mit verschiedenen Verkehrsmitteln erreichen. Die
Straßenbahn RT5 fährt direkt bis nach Kassel- Wilhelmshöhe.
Infrastruktur (im Umkreis von 5 km):
Apotheke, Lebensmittel-Discount, Allgemeinmediziner, Kindergarten, Grundschule, Hauptschule, Realschule, Gymnasium, Gesamtschule, Öffentliche Verkehrsmittel
liegt etwa 30 Km südlich von Kassel. Durch ihre gute Infrastruktur, vielen
Einkaufs- und Freizeitmöglichkeiten sowie Ärzten, bietet Melsungen eine hohe
Lebensqualität. Die klimatisch gute Lage im Fuldatal begünstigt die
Wohnsituation zusätzlich. Durch die sehr gute Verkehrsanbindung zur Autobahn
A7 (ca. 5 Km) und den beiden Bahnhaltestellen (Melsungen Hauptbahnhof und
Melsungen Bartenwetzerbrücke) lassen sich Kassel, Fulda, Eisenach, Frankfurt
und Hannover ausgezeichnet mit verschiedenen Verkehrsmitteln erreichen. Die
Straßenbahn RT5 fährt direkt bis nach Kassel- Wilhelmshöhe.
Infrastruktur (im Umkreis von 5 km):
Apotheke, Lebensmittel-Discount, Allgemeinmediziner, Kindergarten, Grundschule, Hauptschule, Realschule, Gymnasium, Gesamtschule, Öffentliche Verkehrsmittel
Sonstige Informationen
Heizungsart: Zentralheizung
Energieträger: Gas
Impressum :
Kobert Immobilienverwaltung GmbH
Eugen Kobert
Sonneneck 8a, 34212 Melsungen
Mobil: 0152 / 28785487
Email: eugen@kobert-immobilienverwaltung.de
Steuernummer:
2523745102
Finanzamt Kassel
Makleranfragen nicht erwünscht. Nach § 7 UWG sind unaufgeforderte Kontaktaufnahmen durch Makler ohne ausdrückliche Einwilligung des Empfängers verboten!
ohne-makler (OM) ist weder Anbieter noch Vermittler der Immobilie. OM betreibt eine Plattform für Immobilieneigentümer, die unter anderem die gleichzeitige Veröffentlichung einzelner Inserate auf mehreren Immobilienportalen ermöglicht. Die Inhalte dieser Inserate werden ausschließlich von Dritten verantwortet. Für die Richtigkeit, Vollständigkeit oder Rechtmäßigkeit der Angaben übernimmt OM keine Haftung. Hinweise auf mögliche Rechtsverstöße können jederzeit gemeldet werden und werden nach Prüfung umgehend bearbeitet.
Bürofläche im EG
Bürofläche im EG
Bürofläche im EG
Treppe vom EG zum OG
Wc im EG Barrierefrei
Technikraum inkl Serverschrank
Büro 1
Büro 1
Flur im OG
Küche / Aufenthaltsraum im OG
Küche / Aufenthaltsraum im OG
WC im OG
WC im OG
Büro 2 / Schlafen
Büro 2 / Schlafen
Büro 2 / Schlafen
Grundriss OG
Grundriss EG