Exposé
Objektart:
Haus
» Mehrfamilienhaus
» Kauf
Standort: Haus »
Deutschland » Baden-Württemberg » Ostalbkreis (Kreis) » AALEN
Ein- bis Dreifamilienhaus (teilbar -PRIVAT ohne Makler)
Das Wichtigste auf einen Blick:
| Objektnummer: | 9251509 |
Preise
| Kaufpreis | 1.100.000 € |
| Nebenkosten | keine Angabe |
Flächen
| Wohnfläche | 290 m² |
| Grundstücksfläche | 868 m² |
| Maklerprovision | keine Provision, courtagefrei |
Objekt Adresse
73433 AALEN
- Baden-Württemberg
Sonstige Angaben
| Baujahr | 2011 |
| Zimmer | 11,5 |
| Verfügbar ab | nach Absprache |
| Bad | 3 |
| Anzahl der Etagen im Haus | 3 |
| Küche | Einbauküche |
| Bad | 3 |
| Bad | Dusche, Wanne |
| Boden | Fliesen, Teppich, Laminat, Kunststoff |
| Balkone | 1 |
| Garten | Ja |
| Terrassen | 1 |
| Keller | Ja |
| Energieausweistyp | Bedarfsausweis |
| Energieeffizienzklasse | C |
| Endenergiebedarf | 85 kWh/(m²*a) |
| Heizungsart | Zentralheizung |
| Energieträger/Befeuerung | Pellet |
Objektbeschreibung
Stadtnah wohnen in Aalen-Wasseralfingen in einem großzügig geschnittenem Eigenheim mit Platz für die ganze Familie“
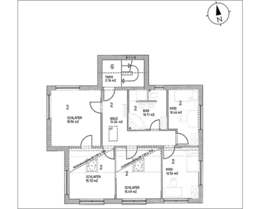
- Wohnfläche insgesamt ca. 289 m, aufteilbar in 3 Wohneinheiten, verteilt über drei Etagen
- insgesamt 11,5 Zimmer (3,5 im EG, 5 im OG, 3 im UG) – Möglichkeit zur Änderung der räumlich Aufteilung
- Terrasse im UG Südausrichtung, Gartenzugang
- Balkon im EG Südausrichtung, Gartenzugang
- Baujahr 2011 in hochwertiger Massivbauweise
- unterkellert
- Grundstücksgröße ca. 868 m² (Eckgrundstück); in ruhiger, verkehrsgünstiger Lage
- PV-Anlage, Wallbox 11 kW, Entkalkungsanlage
- Doppelgarage, sowie 4-5 zusätzliche Stellplätze
- nutzbar als großes Eigenheim oder zur Kapitalanlage – Teilung in 3 Wohneinheiten ist vorbereitet und technisch möglich, Platz für Zähleinrichtungen - Strom, Wasser, Wärme - vorbereitet (Teilungsgenehmigung liegt vor)
Das Haus wird derzeit als Einfamilienhaus genutzt, mit Büroarbeitsräumen im Untergeschoss. Die derzeit 11,5 Zimmer mit ca. 289 m² Wohnfläche sind verteilt auf 3 Etagen, eine vielseitige Nutzung möglich, z.B. wie folgt:
- Großes Einfamilienhaus für Familien mit mehreren Kindern oder Bewohnern mit dem Wunsch nach viel Platz
- Mehrgenerationenwohnen mit unterschiedlichen Aufteilungsmöglichkeiten z.B eigengenutzte Hauptwohnung im Erdgeschoss und Vermietung der Wohnung im Obergeschoss und/oder der Einliegerwohnung im Untergeschoss
- Wohnen & Arbeiten unter einem Dach mit Arbeitsbereich im Untergeschoss, z.B. für Büro
- Mehrfamilienhaus mit 3 Wohnungen zur Vermietung oder auch zum einzelnen Verkauf
- Wohnfläche insgesamt ca. 289 m, aufteilbar in 3 Wohneinheiten, verteilt über drei Etagen
- insgesamt 11,5 Zimmer (3,5 im EG, 5 im OG, 3 im UG) – Möglichkeit zur Änderung der räumlich Aufteilung
- Terrasse im UG Südausrichtung, Gartenzugang
- Balkon im EG Südausrichtung, Gartenzugang
- Baujahr 2011 in hochwertiger Massivbauweise
- unterkellert
- Grundstücksgröße ca. 868 m² (Eckgrundstück); in ruhiger, verkehrsgünstiger Lage
- PV-Anlage, Wallbox 11 kW, Entkalkungsanlage
- Doppelgarage, sowie 4-5 zusätzliche Stellplätze
- nutzbar als großes Eigenheim oder zur Kapitalanlage – Teilung in 3 Wohneinheiten ist vorbereitet und technisch möglich, Platz für Zähleinrichtungen - Strom, Wasser, Wärme - vorbereitet (Teilungsgenehmigung liegt vor)
Das Haus wird derzeit als Einfamilienhaus genutzt, mit Büroarbeitsräumen im Untergeschoss. Die derzeit 11,5 Zimmer mit ca. 289 m² Wohnfläche sind verteilt auf 3 Etagen, eine vielseitige Nutzung möglich, z.B. wie folgt:
- Großes Einfamilienhaus für Familien mit mehreren Kindern oder Bewohnern mit dem Wunsch nach viel Platz
- Mehrgenerationenwohnen mit unterschiedlichen Aufteilungsmöglichkeiten z.B eigengenutzte Hauptwohnung im Erdgeschoss und Vermietung der Wohnung im Obergeschoss und/oder der Einliegerwohnung im Untergeschoss
- Wohnen & Arbeiten unter einem Dach mit Arbeitsbereich im Untergeschoss, z.B. für Büro
- Mehrfamilienhaus mit 3 Wohnungen zur Vermietung oder auch zum einzelnen Verkauf
Ausstattung
Balkon, Terrasse, Garten, Keller, Vollbad, Duschbad, Einbauküche, Gäste-WC, Laminat, Teppichboden, Fliesen
Bemerkungen:
Hochwertige Ausstattung
-Markeneinbauküche mit modernen Elektrogeräten im Erdgeschoss
-Balkon im Erdgeschoss mit Glasüberdachung samt elektrisch bedienbarem Sonnen- und Sichtschutz und sowie Zugangstreppe zum Garten
-ebenerdiger Nebeneingang im Unter-/Kellergeschoss
-große Doppelgarage mit elektrischem Torantrieb
-Lagerschuppen, flexsibel nutzbar
Bemerkungen:
Hochwertige Ausstattung
-Markeneinbauküche mit modernen Elektrogeräten im Erdgeschoss
-Balkon im Erdgeschoss mit Glasüberdachung samt elektrisch bedienbarem Sonnen- und Sichtschutz und sowie Zugangstreppe zum Garten
-ebenerdiger Nebeneingang im Unter-/Kellergeschoss
-große Doppelgarage mit elektrischem Torantrieb
-Lagerschuppen, flexsibel nutzbar
Lage des Objektes
Nur ca. 4 Kilometer nördlich der Aalener Innenstadt liegt der größte Stadtbezirk Wasseralfingen. Er ist von bewaldeten Hügeln und Bergen sowie einer schönen Wald- und Wiesenlandschaft umgeben. Reizvoll sind vor allem die damit verbundene Naturnähe und der Braunenberg mit dem Naturfreundehaus und seinen Bergbaupfaden sowie dem Besucherbergwerk Tiefer Stollen. Daneben bietet Wasseralfingen eine nahezu vollständige Infrastruktur mit allen Einrichtungen des täglichen Bedarfs, wie Einkaufsmöglichkeiten, Restaurants, Ärzte und Apotheken. Diese sind ebenso schnell zu erreichen wie Kindergärten, Schulen und Sportstätten. Die zahlreichen sport-und kulturtreibenden Vereine sorgen für ein äußerst aktives Vereinsleben. Das alles bietet nicht nur Familien einen besonderen Mehrwert.
Für Mobilität und eine schnelle Verbindung in alle Richtungen sorgt die verkehrsgünstige Lage mit direkter Anbindung zur Bundesstraße B29 und kurzen Wegen zu den Anschlussstellen der Bundesstraßen 19 und 290 sowie Autobahn A7. Zudem sind eine eigene Bahnhaltestelle und zahlreiche Bushaltestellen vorhanden.
Das Haus selbst befindet sich in gesuchter, hochwertiger Wohnlage im Tal, nur wenige hundert Meter entfernt von Ortskern, wichtigen Einrichtungen des täglichen Bedarfs und Schulzentrum sind in wenigen Minuten fußläufig erreichbar. Diese genannten Vorteile und Standortfaktoren werden auch durch den stetig steigenden, offiziellen Bodenrichtwert stark unterstrichen.
Infrastruktur (im Umkreis von 5 km):
Apotheke, Lebensmittel-Discount, Allgemeinmediziner, Kindergarten, Grundschule, Hauptschule, Realschule, Gymnasium, Öffentliche Verkehrsmittel
Für Mobilität und eine schnelle Verbindung in alle Richtungen sorgt die verkehrsgünstige Lage mit direkter Anbindung zur Bundesstraße B29 und kurzen Wegen zu den Anschlussstellen der Bundesstraßen 19 und 290 sowie Autobahn A7. Zudem sind eine eigene Bahnhaltestelle und zahlreiche Bushaltestellen vorhanden.
Das Haus selbst befindet sich in gesuchter, hochwertiger Wohnlage im Tal, nur wenige hundert Meter entfernt von Ortskern, wichtigen Einrichtungen des täglichen Bedarfs und Schulzentrum sind in wenigen Minuten fußläufig erreichbar. Diese genannten Vorteile und Standortfaktoren werden auch durch den stetig steigenden, offiziellen Bodenrichtwert stark unterstrichen.
Infrastruktur (im Umkreis von 5 km):
Apotheke, Lebensmittel-Discount, Allgemeinmediziner, Kindergarten, Grundschule, Hauptschule, Realschule, Gymnasium, Öffentliche Verkehrsmittel
Sonstige Informationen
Heizungsart: Zentralheizung
Energieträger: Holzpellets
Makleranfragen nicht erwünscht. Nach § 7 UWG sind unaufgeforderte Kontaktaufnahmen durch Makler ohne ausdrückliche Einwilligung des Empfängers verboten!
ohne-makler (OM) ist weder Anbieter noch Vermittler der Immobilie. OM betreibt eine Plattform für Immobilieneigentümer, die unter anderem die gleichzeitige Veröffentlichung einzelner Inserate auf mehreren Immobilienportalen ermöglicht. Die Inhalte dieser Inserate werden ausschließlich von Dritten verantwortet. Für die Richtigkeit, Vollständigkeit oder Rechtmäßigkeit der Angaben übernimmt OM keine Haftung. Hinweise auf mögliche Rechtsverstöße können jederzeit gemeldet werden und werden nach Prüfung umgehend bearbeitet.
Sicht Westen
Treppenhaus
Küche
Esszimmer
Wohnzimmer
Schlafzimmer
Bad
Gästezimmer
Grundriss EG
Grundriss OG
Grundriss UG/Keller