Exposé
Objektart:
Wohnung
» Etage
» Miete
Standort: Wohnung »
Deutschland » Sachsen » Freiberg (Kreis) » Freiberg
Geräumige 4-Zimmer-Wohnung mit 2 Badezimmern und Einbauküche
Angeboten von:
Das Wichtigste auf einen Blick:
| Objektnummer: | 9249928 |
Preise
| Kaltmiete | 650 € |
| Warmmiete | 1.010 € |
| Nebenkosten | 360 € |
| Heizkosten enthalten | Ja |
| Kaution | 2 Monats-Nettomieten |
Flächen
| Wohnfläche | 103 m² |
Objekt Adresse
Humboldtstraße 54
09599 Freiberg
Sonstige Angaben
| Baujahr | 1902 |
| Zimmer | 4 |
| Verfügbar ab | sofort |
| Bad | 2 |
| Inserat befindet sich im Stockwerk | 1 |
| Küche | Einbauküche |
| Bad | 2 |
| Bad | Dusche, Wanne, Fenster |
| Boden | Laminat |
| Garten | Ja |
| Dachboden | Ja |
| Keller | Ja |
| Energieausweistyp | Verbrauch |
| Ausstellungsdatum | 05. 12. 2022 |
| Gültig bis | 2032-12-05 |
| Baujahr (laut Energieausweis) | 2000 |
| Energieeffizienzklasse | D |
| Energieverbrauchkennwert | 123.20 kWh/(m²*a) |
| Heizungsart | Zentralheizung |
| Wesentlicher Energieträger | Gas |
| Energieträger/Befeuerung | Gas |
Objektbeschreibung
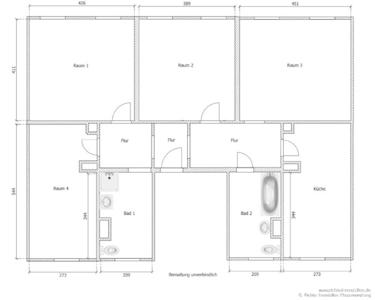
Wir freuen uns, Ihnen diese geräumige Etagenwohnung in Freiberg zur Miete anbieten zu können. Mit einer Wohnfläche von ca. 103 m² bietet diese Wohnung ausreichend Platz für Sie und Ihre Familie.
Die Wohnung entstand durch das Zusammenlegen zweier Wohneinheiten. Sie verfügt über 4 Zimmer, die Ihnen vielfältige Nutzungsmöglichkeiten bieten. Zudem stehen Ihnen 2 Badezimmer, jeweils mit Fenster, zur Verfügung. Eins ist mit einer Dusche, das andere mit einer Badewanne ausgestattet.
Einbau-Deckenstrahler in mehreren Räumen sowie eine Ambiente-Beleuchtung im Wannenbad sorgen für eine angenehme Lichtstimmung.
Die vorhandene Einbauküche besteht aus Ober- und Unterschränken, Spüle und Mikrowelle sowie Dunstabzugshaube und bietet Platz für weitere eigene Elektrogeräte.
Ein Kellerabteil sowie eine Abstellkammer auf halber Treppe bieten zusätzlichen Stauraum für Ihre persönlichen Gegenstände. Der Garten hinter dem Haus steht allen Mietern zur gemeinsamen Nutzung zur Verfügung.
Wenn Sie auf der Suche nach einer großzügigen Etagenwohnung in Freiberg sind, sollten Sie sich diese Immobilie nicht entgehen lassen. Kontaktieren Sie uns gerne für weitere Informationen oder um einen Besichtigungstermin zu vereinbaren.
Die Wohnung entstand durch das Zusammenlegen zweier Wohneinheiten. Sie verfügt über 4 Zimmer, die Ihnen vielfältige Nutzungsmöglichkeiten bieten. Zudem stehen Ihnen 2 Badezimmer, jeweils mit Fenster, zur Verfügung. Eins ist mit einer Dusche, das andere mit einer Badewanne ausgestattet.
Einbau-Deckenstrahler in mehreren Räumen sowie eine Ambiente-Beleuchtung im Wannenbad sorgen für eine angenehme Lichtstimmung.
Die vorhandene Einbauküche besteht aus Ober- und Unterschränken, Spüle und Mikrowelle sowie Dunstabzugshaube und bietet Platz für weitere eigene Elektrogeräte.
Ein Kellerabteil sowie eine Abstellkammer auf halber Treppe bieten zusätzlichen Stauraum für Ihre persönlichen Gegenstände. Der Garten hinter dem Haus steht allen Mietern zur gemeinsamen Nutzung zur Verfügung.
Wenn Sie auf der Suche nach einer großzügigen Etagenwohnung in Freiberg sind, sollten Sie sich diese Immobilie nicht entgehen lassen. Kontaktieren Sie uns gerne für weitere Informationen oder um einen Besichtigungstermin zu vereinbaren.
Sonstige Informationen
Die Betriebskosten sind unter Beachtung der aktuellen Marktsituation nach bestem Wissen kalkuliert. Wohin die Entwicklung in Zukunft geht, lässt sich nicht seriös abschätzen.
Grundriss 1. OG
Raum 1
Raum 1
Raum 2
Raum 2
Raum 3
Raum 3
Raum 4
Raum 4
Flur
Flur
Küche
Küche
Bad 1
Bad 1
Bad 1
Bad 2
Bad 2
Bad 2
Garten
Energieskala