Exposé
Objektart:
Wohnung
» Etage
» Kauf
Standort: Wohnung »
Deutschland » Sachsen » Leipzig, Stadt (Kreis) » Leipzig
MUSIKVIERTEL großzügige Etagenwohnung mit 2 Bädern + Gäste-WC + Balkon + Aufzug
Treppenhaus
Angeboten von:
Marko Künne Immobilien
Käthe-Kollwitz-Str. 58c
04109 Leipzig
Deutschland
Telefon:+49(0)341-4429566
Fax:+49(0)341-2253930
www.kuenne-immobilien.de
| Telefon: | 0341 442 9566 |
| Fax: | 0341 2253930 |
Das Wichtigste auf einen Blick:
| Objektnummer: | 9248076 |
Preise
| Kaufpreis | 925.000 € |
| Nebenkosten | keine Angabe |
| Kaufpreis pro m² | 4097,45 € |
| Hausgeld | 667 € |
Flächen
| Wohnfläche | 225,75 m² |
| Maklerprovision | 33.022,50 € |
Objekt Adresse
04107 Leipzig
- Sachsen
Sonstige Angaben
| Baujahr | 1881 |
| Zimmer | 7,5 |
| Verfügbar ab | keine Angabe |
| Anzahl der Etagen im Haus | 4 |
| Inserat befindet sich im Stockwerk | 3 |
| Balkone | 1 |
| Garten | Ja |
| Fahrstuhl | Ja |
| Keller | Ja |
| Heizungsart | Zentralheizung |
| Wesentlicher Energieträger | Fernwärme |
| Energieträger/Befeuerung | Fernwärme |
Objektbeschreibung
Entdecken Sie diese außergewöhnliche Altbauwohnung in einem repräsentativen, viergeschossigen Gebäude aus dem Jahr 1881, stilvoll im Historismus errichtet. Diese hochwertige und seltene Immobilie bietet Ihnen ein einzigartiges Wohnerlebnis mit prächtigem Stuck, Parkettböden und großzügigem Raumangebot.
Das Gründerzeithaus beeindruckt durch seine detailreich verzierte Fassade, die durch Balkone im 1. und 2. Obergeschoss akzentuiert wird. Hofseitig erstreckt sich ein Seitenflügel auf ein großzügiges, begrüntes Grundstück, das für eine ruhige und angenehme Wohnatmosphäre sorgt. Die Wohnung befindet sich nur wenige Gehminuten entfernt vom Leipziger Innenstadtring in absolut zentraler Lage. Sie erreichen die Leipziger Innenstand in nur 10 Minuten bequem zu Fuß.
Um die Jahrtausendwende wurde das Wohn- und Geschäftshaus umfassend und mit viel Liebe zum Detail saniert und modernisiert. Dabei wurde besonderer Wert auf den Erhalt des originalen Charakters der Immobilie gelegt. Der vornehme Hausflur ist mit aufwendiger Stuckausstattung verkleidet und die Wohneinheiten sind bequem über das herrschaftliche Treppenhaus oder den im Objekt installierten Personenaufzug erreichbar.
Die Wohnung erstreckt sich über die komplette Etage und bietet Ihnen viel Platz und Komfort. Genießen Sie die Vorzüge dieser einzigartigen Altbauwohnung mit ihrem historischen Charme und modernem Wohnkomfort. Es bietet sich Ihnen eine einmalige Gelegenheit sich Ihren Wohntraum zu erfüllen.
" frisch, engagiert, solide "
Die Künne Immobilien Gruppe ist professioneller Dienstleister der Immobilienbranche und steht Ihnen in den Bereichen Projektentwicklung, Verkauf, Vermietung, Verwaltung und Facility Management zur Verfügung.
Für weitere Informationen und Einblicke besuchen Sie unsere Homepage: www.kuenne-gruppe.de Sie wollen Ihre Immobilie verkaufen? Egal ob Mehrfamilien- oder Einfamilienhaus, Eigentumswohnung, Grundstück oder Neubau- bzw. Bauträgerprojekt. Wir vermitteln kompetent, transparent und zügig Ihre Immobilie, bundesweit.
Das Gründerzeithaus beeindruckt durch seine detailreich verzierte Fassade, die durch Balkone im 1. und 2. Obergeschoss akzentuiert wird. Hofseitig erstreckt sich ein Seitenflügel auf ein großzügiges, begrüntes Grundstück, das für eine ruhige und angenehme Wohnatmosphäre sorgt. Die Wohnung befindet sich nur wenige Gehminuten entfernt vom Leipziger Innenstadtring in absolut zentraler Lage. Sie erreichen die Leipziger Innenstand in nur 10 Minuten bequem zu Fuß.
Um die Jahrtausendwende wurde das Wohn- und Geschäftshaus umfassend und mit viel Liebe zum Detail saniert und modernisiert. Dabei wurde besonderer Wert auf den Erhalt des originalen Charakters der Immobilie gelegt. Der vornehme Hausflur ist mit aufwendiger Stuckausstattung verkleidet und die Wohneinheiten sind bequem über das herrschaftliche Treppenhaus oder den im Objekt installierten Personenaufzug erreichbar.
Die Wohnung erstreckt sich über die komplette Etage und bietet Ihnen viel Platz und Komfort. Genießen Sie die Vorzüge dieser einzigartigen Altbauwohnung mit ihrem historischen Charme und modernem Wohnkomfort. Es bietet sich Ihnen eine einmalige Gelegenheit sich Ihren Wohntraum zu erfüllen.
" frisch, engagiert, solide "
Die Künne Immobilien Gruppe ist professioneller Dienstleister der Immobilienbranche und steht Ihnen in den Bereichen Projektentwicklung, Verkauf, Vermietung, Verwaltung und Facility Management zur Verfügung.
Für weitere Informationen und Einblicke besuchen Sie unsere Homepage: www.kuenne-gruppe.de Sie wollen Ihre Immobilie verkaufen? Egal ob Mehrfamilien- oder Einfamilienhaus, Eigentumswohnung, Grundstück oder Neubau- bzw. Bauträgerprojekt. Wir vermitteln kompetent, transparent und zügig Ihre Immobilie, bundesweit.
Sonstige Informationen
Alle Angaben sind ohne Gewähr und basieren ausschließlich auf Informationen, die uns von unserem Auftraggeber zur Verfügung gestellt wurden. Wir übernehmen keine Gewähr für die Vollständigkeit, Richtigkeit und Aktualität dieser Angaben.
Stuckelemente Treppenhaus
Stuckelemente Treppenhaus
Treppenhaus
Treppenhaus
Treppenhaus
Personenaufzug
Wohnungseingangstür
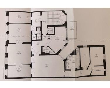
Grundriss WE 5