Exposé
Objektart:
Gastgewerbe
» Hotels
» Kauf
Standort: Gastgewerbe »
Deutschland » Bayern » Aschaffenburg (Kreis) » Hafenlohr
Anwesen ehem. Hotel und Wirtshaus St. Hubertus im Spessart - Hafenlohrtal
Das Wichtigste auf einen Blick:
| Objektnummer: | 9246800 |
Preise
| Kaufpreis | 900.000 € |
| Nebenkosten | keine Angabe |
Flächen
| Wohnfläche | 2.000 m² |
| Nutzfläche | 500 m² |
| Gesamtfläche | 9.850 m² |
| Grundstücksfläche | 9.850 m² |
| Maklerprovision | 7,14% inkl. 19.00% MwSt. |
Objekt Adresse
97840 Hafenlohr
Sonstige Angaben
| Baujahr | 1969 |
| Zimmer | 15 |
| Verfügbar ab | keine Angabe |
| Bad | 4 |
| Anzahl der Etagen im Haus | 3 |
| Bad | 4 |
| Bad | Wanne, Fenster |
| Garten | Ja |
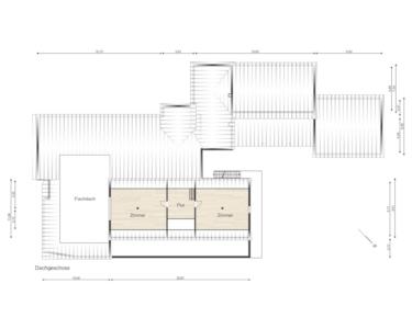
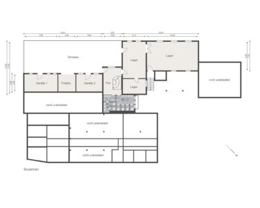
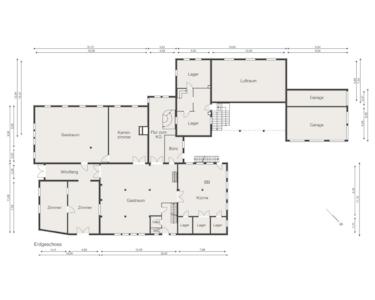
Objektbeschreibung
Das frühere Hotel St. Hubertus mit Wirtshaus im Spessart bewirtete von 1969 bis Ende der 1980er Jahre seine Gäste. Es bietet absolute Alleinlage mit eigener Zufahrt.
Das Anwesen bestand früher aus Mühle, Sägewerk, Försterwohnung (Bj. 1850) und wurde zum Wirtshaus (Bj. 1969) umgebaut.
Die dadurch verschiedenen aneinander liegenden Häuser und Räumlichkeiten können hier vielseitig genutzt werden.
Zuletzt wurde das große Anwesen von einer Familie als Wohngebäude genutzt.
Es befindet sich in einem stark sanierungsbedürftigen Zustand.
Kein Denkmalschutz.
Letzte Sanierungsmaßnahmen sind hier eine moderne Hackschnitzelanlage zum Heizen der Räumlichkeiten und teilweise Erneuerung der Elektroinstallationen.
Erwecken Sie das ehemalige "Wirtshaus im Spessart" aus seinem Dornröschenschlaf oder nutzen Sie das Anwesen als Mehrgenerationenhaus.
Das Objekt wurde frostfest gehalten. Der Energieausweis für das Gebäude kann nachgereicht werden.
Das Anwesen bestand früher aus Mühle, Sägewerk, Försterwohnung (Bj. 1850) und wurde zum Wirtshaus (Bj. 1969) umgebaut.
Die dadurch verschiedenen aneinander liegenden Häuser und Räumlichkeiten können hier vielseitig genutzt werden.
Zuletzt wurde das große Anwesen von einer Familie als Wohngebäude genutzt.
Es befindet sich in einem stark sanierungsbedürftigen Zustand.
Kein Denkmalschutz.
Letzte Sanierungsmaßnahmen sind hier eine moderne Hackschnitzelanlage zum Heizen der Räumlichkeiten und teilweise Erneuerung der Elektroinstallationen.
Erwecken Sie das ehemalige "Wirtshaus im Spessart" aus seinem Dornröschenschlaf oder nutzen Sie das Anwesen als Mehrgenerationenhaus.
Das Objekt wurde frostfest gehalten. Der Energieausweis für das Gebäude kann nachgereicht werden.
Lage des Objektes
Das Anwesen bzw. das ehemalige Hotel und Wirtshaus St. Hubertus liegt ca. 500 m vom Ortsausgang von Windheim, ein Ortsteil der Gemeinde Hafenlohr im unterfränkischen Landkreis Main-Spessart, entfernt.
Die Immobilie wird von einer Seite durch einen Bach und auf der anderen Seite durch einen Wald Hang begrenzt.
Windheim liegt im östlichen Teil des Mainvierecks und ca. 7 km von der A3 entfernt. Die Städte Aschaffenburg und Würzburg sind jeweils ca. 35 km entfernt.
Kindergarten und Grundschule finden Sie in Hafenlohr.
Direkt ab dem Anwesen früher Mühle, Sägewerk und Wirtshaus finden die Wanderer hier ihren Weg in das Hafenlohrtal zur Erholung und Entspannung.
Die Immobilie wird von einer Seite durch einen Bach und auf der anderen Seite durch einen Wald Hang begrenzt.
Windheim liegt im östlichen Teil des Mainvierecks und ca. 7 km von der A3 entfernt. Die Städte Aschaffenburg und Würzburg sind jeweils ca. 35 km entfernt.
Kindergarten und Grundschule finden Sie in Hafenlohr.
Direkt ab dem Anwesen früher Mühle, Sägewerk und Wirtshaus finden die Wanderer hier ihren Weg in das Hafenlohrtal zur Erholung und Entspannung.