Exposé
Objektart:
Büro / Praxen
» Buerohaus
» Miete
Standort: Büro / Praxen »
Deutschland » Nordrhein-Westfalen » Soest (Kreis) » Werl
Verkehrsgünstig gelegene, vielseitig nutzbare Bürofläche in Werl
Das Wichtigste auf einen Blick:
| Objektnummer: | 9246364 |
Preise
| Kaltmiete | 1.160 € |
| Nebenkosten | 350 € |
| Kaution | 2.320 € |
Flächen
| Nutzfläche | 410 m² |
| Gesamtfläche | 232 m² |
| Bürofläche | 232 m² |
| Maklerprovision | 2.38 Monatsmieten |
Objekt Adresse
59457 Werl
Sonstige Angaben
| Baujahr | 1996 |
| Verfügbar ab | nach Vereinbarung |
| Energieausweistyp | Verbrauch |
| Gültig bis | 2029-10-20 |
| Energieverbrauchkennwert | 76 kWh/(m²*a) |
| Energieträger/Befeuerung | Gas |
Objektbeschreibung
Das gepflegte Objekt bietet eine Gesamtfläche von etwa 232 m². Die Fläche kann als Büro, Praxis oder Ausstellungsfläche genutzt werden.
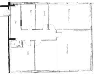
Die Fläche teilt sich auf in ein Großraumbüro das durch eine variable Trennwand noch ein zusätzliches Büro oder ein Besprechungsraum schaffen kann. Außerdem befindet sich auf der ca. 232 m² großen Fläche ein Pausenraum mit Küche, ein WC, ein Flur und 2 weitere Büros.
Die Fläche teilt sich auf in ein Großraumbüro das durch eine variable Trennwand noch ein zusätzliches Büro oder ein Besprechungsraum schaffen kann. Außerdem befindet sich auf der ca. 232 m² großen Fläche ein Pausenraum mit Küche, ein WC, ein Flur und 2 weitere Büros.
Lage des Objektes
Die Räumlichkeiten befinden sich an der viel befahrenen Hammer Straße, die eine der wichtigsten Ausfallstraßen von Werl darstellt. Bis zur Anschlussstelle zur A445 sind es lediglich ca. 1,2 km
Sonstige Informationen
Wir bitten sich bei Interesse mit einer s c h r i f t l i c h e n Anfrage über unsere Homepage oder das Internetportal an uns zu wenden. Wir senden Ihnen dann umgehend ein Exposé per Email zu. Darin enthalten sind die Anschrift der Immobilie und Innenfotos.
Wir bitten Sie, sich anhand dieser Möglichkeit einen ersten Eindruck zu verschaffen. Bei näherem Interesse zeigen wir Ihnen die Immobilie gerne bei einer persönlichen Besichtigung.