Exposé
Objektart:
Büro / Praxen
» Bueroflaeche
» Miete
Standort: Büro / Praxen »
Deutschland » Bayern » München, Landeshauptstadt (Kreis) » München
TOLLE ATMOSPHÄRE - KLASSE BÜROS - provisionsfrei
Innenhof
Angeboten von:
Harald Dördrechter Immobilien Consulting
Schluchtweg 23
82340 Feldafing
Deutschland
Telefon:08157-924772
Fax:08157-924771
www.hdic.de
Ansprechpartner/in
Harald Dördrechter ImmobilienConsulting
Herr Harald Dördrechter
| Telefon: | 08157 - 92 47 72 |
| Fax: | 08157 - 92 47 71 |
Das Wichtigste auf einen Blick:
| Objektnummer: | 9239907 |
Preise
| Miete für das Objekt | Auf Anfrage |
| Nebenkosten | 3 € |
| Mietpreis pro m² | 19,5 € |
Flächen
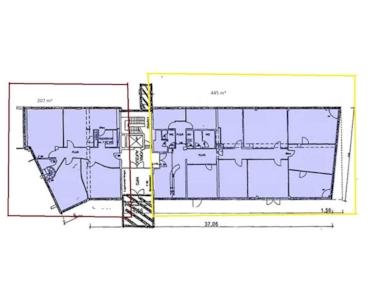
| Bürofläche | 652 m² |
| Fläche teilbar ab | 207 m² |
Objekt Adresse
80339 München
Sonstige Angaben
| Baujahr | 1993 |
| Verfügbar ab | 11/2025 |
| Inserat befindet sich im Stockwerk | 0 |
| Heizungsart | Zentralheizung |
| Wesentlicher Energieträger | Gas |
| Energieträger/Befeuerung | Gas |
Objektbeschreibung
Top-attraktives Büroensemble mit abwechslungsreicher, moderner Architektur und repräsentativen Eingangsbereichen. Bereits der Zugang über den ruhigen, begrünten Innenhof mit einem großen Springbrunnen schafft eine angenehme und positive Atmosphäre. Das Objekt verfügt über eine repräsentative Eingangshalle mit Natursteinboden und vier Personenaufzügen. Die Büroflächen haben durchgehend eine gehobene Ausstattung, eine raumweise steuerbare Klimatisierung und können völlig flexibel nach Mieterwunsch aufgeteilt werden. TG-Plätze à € 100,00, Freistellplätze à € 100,00 anmietbar.
Ausstattung
Bodenbelag nach Wahl - Hochwertige Küche nach Wahl - flexible Raumaufteilung - Einbau Akustikdecken nach Wahl - IT-Verkabelung über Hohlraumboden / Bodentanks - außenliegender Sonnenschutz (elektrisch steuerbar) - Fassaden aus Putz / Naturstein sowie Glas/Aluminium - Schallschutzfenster mit Isolierverglasung - begrünter Innenhof mit Wasserspiel und Sitzgelegenheiten - vier Personenaufzüge - getrennte WC´s D/H - Teeküchen
Lage des Objektes
Attraktiver Büro-Standort im Münchner Westend an der Ecke Barthstraße / Westendstraße mit schneller Verkehrsanbindung an den Mittleren Ring und die Autobahnen. Gute Infrastruktur mit Restaurants und Einkaufsmöglichkeiten für den täglichen Bedarf. MVV : U- / S-Bahnstationen "Westendstraße" (U4/U5) und "Heimeranplatz" (U4/U5/S7/S27) fußläufig schnell erreichbar.
Sonstige Informationen
Falls Sie in unseren Exposés noch nicht Ihre ideale Bürolösung gefunden haben, zögern Sie nicht, sich mit uns in Verbindung zu setzen. Sie erreichen uns per E-Mail unter info@hdic.de oder telefonisch unter 0171 3802649. Teilen Sie uns Ihr genaues Suchprofil mit, und wir setzen unsere Expertise ein, um aus über 1000 Objekten in München und Umland das perfekte Büro für Sie zu finden. Unser Service ist professionell, schnell, zielführend und wird mit höchster Diskretion durchgeführt. Zusätzlich laden wir Sie ein, unsere Webseite hdic.de zu besuchen, wo Sie weitere attraktive Objekte finden können.
Zufahrt
Eingang
Brunnen
bsp
bsp. innen 1
bsp. Glaselement
bsp. Konfi klein
bsp. Bar
5
11FCA27D-345B-3520-9DEC-E2E284CF2C1D
9A23A3F2-E963-34B1-B013-5B84349E0F88
bsp
B4784CE5-409E-3A86-A669-7FD86DB0C627
C9037458-AA41-35EE-BFFC-BC6E312B29B2
Innenhof
2C181387-DB07-31A9-83C3-7D545D5A2523
2F4C6CBA-4449-32E9-BAE4-FA4C988F423F
5C5FF3ED-EFA0-34EC-821B-93793DCC97D6
GR EG 652 m2
GR EG 207m²+ 445m²