Exposé
Objektart:
Büro / Praxen
» Buerohaus
» Miete
Standort: Büro / Praxen »
Deutschland » Bayern » Kelheim (Kreis) » Bad Abbach
VB3918a Barrierefreie und teilbare Büro- oder Praxisräume mit Lager / Bad Abbach
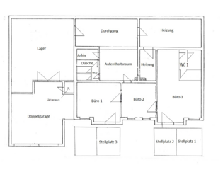
Bild/Grundriss 1
Das Wichtigste auf einen Blick:
| Objektnummer: | 9229422 |
Preise
| Kaltmiete | 434 € |
| Kaltmiete (netto) | 434 € |
| Nebenkosten | 300 € |
| Kaution | 1.302 € |
Flächen
| Nutzfläche | 51 m² |
| Bürofläche | 51 m² |
| Maklerprovision | Ortsübliche Provision vom Käufer/Mieter nur im Erfolgsfalle |
Objekt Adresse
93077 Bad Abbach
- Bayern
Sonstige Angaben
| Baujahr | 1992 |
| Letzte Modernisierung | 2023 |
| Zimmer | 1 |
| Verfügbar ab | sofort |
| Heizungsart | Zentralheizung |
Objektbeschreibung
Die Büro- bzw. Praxisfläche befindet sich in einer Sackgasse in einem Wohngebiet in Bad Abbach. Eine Bushaltestelle befindet sich in der Nähe. Durch die nahegelegene Autobahn A 93 und den Bahnhof besteht eine hervorragende Anbindung an Regensburg.
Die Fläche befindet sich im Erdgeschoss eines Wohn/Geschäftshauses und wird mit einer Gaszentralheizung beheizt. Sie besteht aus einer Büro- oder Praxisfläche sowie einem Lager. Ein DSL-Anschluss ist mit bis zu 1000 Mbit/s möglich. Die Räume befinden sich im Rohbauzustand und werden vom Eigentümer nach Mieterwunsch fertiggestellt.
Die Praxis- oder Bürofläche hat zwei separate Außeneingänge und kann somit geteilt und separat vermietet werden. Sie ist gefliest und verfügt über abgehängte Decken mit integrierten Leuchten. Der Aufenthaltsraum ist mit Küchenanschlüssen ausgestattet. Nebenan befinden sich zwei WCs sowie eine Dusche. Es ist möglich eine weitere WC-Anlage von Büro 3 abzutrennen.
Die Doppelgarage verfügt über zwei elektrische Sektionaltore und Stromanschlüsse. Über ein großes doppelflügeliges Tor ist von hier aus die Lagerfläche erreichbar. Sie ist mit einem Betonboden ausgestattet. Eine Deckengrundbeleuchtung und Steckdosen sind vorhanden.
Die Fläche befindet sich im Erdgeschoss eines Wohn/Geschäftshauses und wird mit einer Gaszentralheizung beheizt. Sie besteht aus einer Büro- oder Praxisfläche sowie einem Lager. Ein DSL-Anschluss ist mit bis zu 1000 Mbit/s möglich. Die Räume befinden sich im Rohbauzustand und werden vom Eigentümer nach Mieterwunsch fertiggestellt.
Die Praxis- oder Bürofläche hat zwei separate Außeneingänge und kann somit geteilt und separat vermietet werden. Sie ist gefliest und verfügt über abgehängte Decken mit integrierten Leuchten. Der Aufenthaltsraum ist mit Küchenanschlüssen ausgestattet. Nebenan befinden sich zwei WCs sowie eine Dusche. Es ist möglich eine weitere WC-Anlage von Büro 3 abzutrennen.
Die Doppelgarage verfügt über zwei elektrische Sektionaltore und Stromanschlüsse. Über ein großes doppelflügeliges Tor ist von hier aus die Lagerfläche erreichbar. Sie ist mit einem Betonboden ausgestattet. Eine Deckengrundbeleuchtung und Steckdosen sind vorhanden.
Ausstattung
Lage: Bad Abbach
Mietpreis: EUR 434,-
Nebenkosten: EUR 300,-
Fläche: ca. 51 m²
Zimmeranzahl: 1
Baujahr: 1992
letzte Modernisierung: 2023
Kaution: EUR 1.302,-
Geschoss(e): EG
Bezug: sofort
teilbar ab: nein
Stellplatzanzahl: 3
Stellplatzpreis: EUR 40,-
Fußweg zum RVV: 5 min.
Fahrtzeit Bahnhof: 20 min.
Fahrtzeit Autobahn: 5 min.
Fahrtzeit Flughafen: 80 min.
Objekttyp: Wohn- und Geschäftshaus
Zustand: renovierungsbedürftig
Stellplatz: Außenstellplatz
Ausstattung: normal
Bodenbelag: nach Mieterwunsch
Heizung: Zentralheizung
Mietpreis: EUR 434,-
Nebenkosten: EUR 300,-
Fläche: ca. 51 m²
Zimmeranzahl: 1
Baujahr: 1992
letzte Modernisierung: 2023
Kaution: EUR 1.302,-
Geschoss(e): EG
Bezug: sofort
teilbar ab: nein
Stellplatzanzahl: 3
Stellplatzpreis: EUR 40,-
Fußweg zum RVV: 5 min.
Fahrtzeit Bahnhof: 20 min.
Fahrtzeit Autobahn: 5 min.
Fahrtzeit Flughafen: 80 min.
Objekttyp: Wohn- und Geschäftshaus
Zustand: renovierungsbedürftig
Stellplatz: Außenstellplatz
Ausstattung: normal
Bodenbelag: nach Mieterwunsch
Heizung: Zentralheizung
Lage des Objektes
Bad Abbach
Sonstige Informationen
Um eine schnelle Bearbeitung zu gewähren benötigen wir Ihre Telefonnummer sowie Ihre komplette Adresse.
Logo