Exposé
Objektart:
Wohnung
» Etage
» Miete
Standort: Wohnung »
Deutschland » Sachsen » Freiberg (Kreis) » Freiberg
Frisch renoviert und außergewöhnlich: 6-Zimmer-Wohnung mit Einbauküche am Obermarkt / Freiberg
Angeboten von:
Das Wichtigste auf einen Blick:
| Objektnummer: | 9229651 |
Preise
| Kaltmiete | 870 € |
| Warmmiete | 1.020 € |
| Nebenkosten | 150 € |
| Kaution | 2 Monatsnettomieten 1.740,- Euro |
Flächen
| Wohnfläche | 113 m² |
| Maklerprovision | 1 MM |
Objekt Adresse
Obermarkt 5
09599 Freiberg
Sonstige Angaben
| Zimmer | 6 |
| Verfügbar ab | sofort |
| Bad | 1 |
| Inserat befindet sich im Stockwerk | 3 |
| Küche | Einbauküche |
| Bad | 1 |
| Bad | Dusche, Fenster |
| Boden | Laminat |
| Dachboden | Ja |
| Heizungsart | Etagenheizung |
| Energieträger/Befeuerung | Gas |
Objektbeschreibung
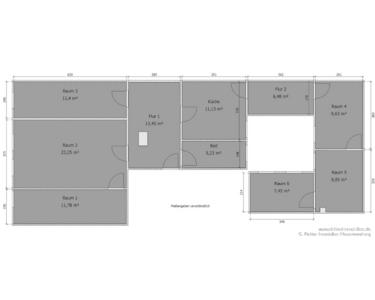
6-Zimmer Etagenwohnung direkt auf dem Obermarkt: drei Zimmer sind vom vorderen Flur aus erreichbar. Drei kleinere Räume befinden sich im Hinterhaus, erreichbar über einen weiteren Flur hinter der Küche. In den vorderen Räumen wurde neuer Boden verlegt, die Wohnung wurde umfassend renoviert.
Das frisch renovierte Tageslichtbad ist mit einer Dusche ausgestattet.
Beheizt wird mit einer Gasetagenheizung. (Es fallen zusätzlich Kosten bei einem von Ihnen frei wählbaren Versorgungsträger an)
Das frisch renovierte Tageslichtbad ist mit einer Dusche ausgestattet.
Beheizt wird mit einer Gasetagenheizung. (Es fallen zusätzlich Kosten bei einem von Ihnen frei wählbaren Versorgungsträger an)
Sonstige Informationen
Die Betriebskosten sind unter Beachtung der aktuellen Marktsituation nach bestem Wissen kalkuliert. Wohin die Entwicklung in Zukunft geht, lässt sich nicht seriös abschätzen.
Die Vorauszahlung ist kalkuliert für 2 Personen und erhöht sich für jede weitere Person um 20 EUR.
Grundriss
Raum 1
Raum 1
Raum 2
Raum 2
Raum 3
Raum 3
Flur 1
Küche
Küche
Bad
Bad
Bad
Flur 2
Flur 2
Raum 4
Raum 5
Raum 6
Raum 6