Exposé
Objektart:
Haus
» Einfamilienhaus
» Kauf
Standort: Haus »
Deutschland » Rheinland-Pfalz » Rhein-Lahn-Kreis (Kreis) » Eitelborn
Inkl. Grundstück mit Vollunterkellung mit Traumblick ins Grüne*KfW300*
Mögliche individuell geplante Frontansicht1
Das Wichtigste auf einen Blick:
| Objektnummer: | 9226419 |
Preise
| Kaufpreis | 499.099 € |
| Nebenkosten | keine Angabe |
Flächen
| Wohnfläche | 130 m² |
| Nutzfläche | 200 m² |
| Grundstücksfläche | 410 m² |
| Maklerprovision | 0 |
Objekt Adresse
56337 Eitelborn
Sonstige Angaben
| Baujahr | 2026 |
| Zimmer | 5 |
| Verfügbar ab | keine Angabe |
| Bad | 2 |
| Küche | Offene Küche |
| Bad | 2 |
| Bad | Dusche, Wanne, Fenster |
| Terrassen | 1 |
| Keller | Ja |
| Energietyp | KfW-40 |
| Heizungsart | Fußbodenheizung |
| Energieträger/Befeuerung | Luft-Wärme-Pumpe |
Objektbeschreibung
Stellen Sie sich vor, wie es wäre, in einem wunderschönen Einfamilienhaus in Eitelborn zu leben, das vollständig nach Ihren persönlichen Vorstellungen entworfen wurde. Dieses zeitgemäße Zuhause verfügt über drei großzügige Schlafzimmer, zwei elegante Badezimmer mit einem integrierten Gäste-WC, perfekt geeignet für Familien und Besucher. Mit der Ausbaustufe 3 - FastFertigPlus entscheiden Sie sich für eine hochqualitative Bauweise, bei der Sie aktiv an der Gestaltung Ihres neuen Heims mitwirken können, während die technischen Installationen von kompetenten Fachunternehmen ausgeführt werden. Es verspricht Ihnen ein modernes, nachhaltiges Wohnkonzept, das ideal zu Ihrem Lebensstil passt.
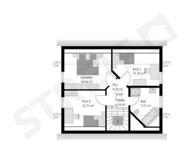
Alle Grundrisse sind individuell änderbar, inklusive Vollunterkellerung mit Möglichkeit einer weiteren Wohneinheit.
Alle Grundrisse sind individuell änderbar, inklusive Vollunterkellerung mit Möglichkeit einer weiteren Wohneinheit.
Ausstattung
Das Einfamilienhaus überzeugt durch eine hochwertige Ausstattung und setzt auf eine umweltfreundliche Luft-Wasser Wärmepumpe als Heizsystem, die nicht nur effizient und kostensparend arbeitet, sondern zudem einen wertvollen Beitrag zum Klimaschutz leistet. Zudem erfüllt der Energietyp den KFW40Plus Standard, was Ihnen langfristig niedrige Energiekosten garantiert.
Lage des Objektes
Eitelborn bietet Ihnen eine ruhige und angenehme Wohngegend mit einer exzellenten Infrastruktur. In der Umgebung finden Sie eine Apotheke, gute Busverbindungen, Einkaufsmöglichkeiten, ein Fitnessstudio, einen Golfplatz sowie eine Grundschule und einen Kindergarten. Auch weiterführende Schulen sind schnell erreichbar. Die Anbindung an die Schnellstraße ermöglicht eine zügige Erreichbarkeit der umliegenden Städte Koblenz, Montabaur, und Limburg. Freizeitangebote, Spielplätze und Wälder in der Nachbarschaft bieten ein ideales Umfeld für sich und Ihre Familie.
Sonstige Informationen
Bei STREIF haben Sie die Möglichkeit, aus vier unterschiedlichen Ausbaustufen zu wählen, die Ihnen viele Optionen zur individuellen Gestaltung Ihres Traumhauses bieten. Durch Eigenleistungen in Form einer Muskelhypothek können Sie bares Geld sparen, indem Sie geringere Kredite aufnehmen und somit auch die Zinsbelastung verringern oder die Kreditlaufzeiten verkürzen. In einem ausführlichen Beratungsgespräch klären wir Ihre Wünsche und Vorstellungen, um das perfekte Haus für Sie zu planen. Sie entscheiden, ob Sie ein Einfamilienhaus mit Walmdach, Flachdach oder klassischem Satteldach, mit oder ohne Keller und in einem oder mehreren Geschossen wünschen. Erst wenn Sie mit dem entworfenen Grundriss vollkommen zufrieden sind, beginnt die Umsetzung, die wir innerhalb weniger Monate realisieren. Ihr neues Zuhause übergeben wir Ihnen schlüsselfertig oder in der von Ihnen gewünschten Ausbaustufe.
Zertifikat
Zertifikat
Mögliche EG Planung
Mögliche OG Planung
Fernblick vom Grundstück aus
Mögliche individuell geplante Frontansicht2
Küche mit Fernblick
Schlafen
Kinderecke
Deko
Küche
Kinderzimmer
Ihr neues Bad? Individuell gestaltbar
Ihr neues Bad? Individuell gestaltbar
BIRN
CREFO - Ihre Sicherheit
Alternative Ideen, alles ist machbar
Alternative Ideen, alles ist machbar