Exposé
Objektart:
Hallen / Lager / Produktion
» Lagerflaechen
» Miete
Standort: Hallen / Lager / Produktion »
Deutschland » Sachsen » Leipzig, Stadt (Kreis) » Leipzig
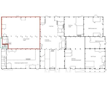
LAGER.flaeche mit 1.856 m² in Zentrum-Südost
Vogelperspektive
Das Wichtigste auf einen Blick:
| Objektnummer: | 9222603 |
Preise
| Miete für das Objekt | Auf Anfrage |
| Nebenkosten | keine Angabe |
Flächen
| Fläche teilbar ab | 1856 m² |
| Maklerprovision | provisionsfrei |
Objekt Adresse
04103 Leipzig
Sonstige Angaben
| Verfügbar ab | keine Angabe |
Lage des Objektes
Die Liegenschaft befindet sich in zentrumsnaher Lage im Stadtteil Zentrum-Südost, unmittelbar angrenzend an den veterinärmedizinischen Campus der Universität Leipzig. Der Standort ist geprägt durch den markanten Kohlrabizirkus, eine denkmalgeschützte, multifunktional genutzte Eventhalle mit hoher Bekanntheit und Frequenz. Das Umfeld ist durch eine vielfältige gewerbliche Nutzung gekennzeichnet – darunter Kfz-Dienstleistungen, Logistikbetriebe und Sporteinrichtungen. Eine sehr gute Anbindung an den öffentlichen Nahverkehr (Straßenbahnlinien 2 und 16, S-Bahn "Leipzig MDR") sowie die nahe Prager Straße gewährleistet optimale Erreichbarkeit sowohl für Kunden als auch Mitarbeitende.
Sonstige Informationen
Der Mietpreis richtet sich nach Ausstattung, Mietvertragslaufzeit und Lage im Objekt und liegt
ca. zwischen - und - EUR/m² zzgl. Nebenkosten. Gern unterbreiten wir Ihnen Ihr persönliches Mietangebot.
LAGERanmietung leicht gemacht?
Bitte sprechen Sie uns an, gern stellen wir Ihnen eine Auswahl geeigneter Büroflächenangebote zusammen.
Für Fragen, ein persönliches Gespräch oder auch eine persönliche Terminvereinbarung
stehen wir Ihnen gern telefonisch unter 0341 | 5643000 zur Verfügung.
Grundriss