Exposé
Objektart:
Haus
» Doppelhaushaelfte
» Kauf
Voll ausgestattete Villa mit Meerblick Drage
Angeboten von:
Nekretnine1 j.d.o.o.
Pomerio 27
51000 Rijeka
Kroatien
Telefon:+385 95 714 8583
Ansprechpartner/in
Nekretnine1.hrDas Wichtigste auf einen Blick:
| Objektnummer: | 9221991 |
Preise
| Kaufpreis | 1.100.000 € |
| Nebenkosten | keine Angabe |
Flächen
| Gesamtfläche | 265 m² |
| Grundstücksfläche | 300 m² |
Objekt Adresse
23211 Pakoštane
- Dalmatien-Zadar (Region) [Zadarska]
Sonstige Angaben
| Baujahr | 2025 |
| Zimmer | 6 |
| Verfügbar ab | keine Angabe |
| Bad | 4 |
| Anzahl der Etagen im Haus | 1 |
| Bad | 4 |
Objektbeschreibung
Moderne Villa mit Pool, Dachterrasse und Meerblick – Drage
In dem ruhigen Ort Drage, bekannt für sein kristallklares Meer, den neuen Yachthafen und mediterranes Flair, steht eine moderne Doppelhaushälfte zum Verkauf – mit privatem Pool und luxuriöser Dachterrasse.
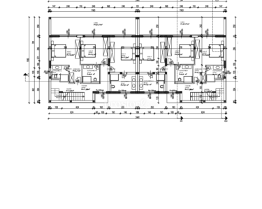
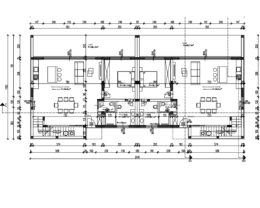
Das Haus erstreckt sich über drei Etagen mit einer Nettonutzfläche von 246,67 m².
Im Erdgeschoss befinden sich ein großzügiger Wohnbereich mit Küche und Esszimmer, ein Schlafzimmer mit eigenem Bad, ein Gäste-WC sowie ein Technik-/Abstellraum. Vom Wohn- und Schlafzimmer aus gelangt man direkt auf die überdachte Terrasse mit Zugang zum 8×4 m großen Pool und Sonnendeck.
Im Obergeschoss befinden sich drei Schlafzimmer – jedes mit eigenem Bad und Terrasse mit herrlichem Meerblick.
Ein echtes Highlight ist die Dachterrasse mit Whirlpool und Lounge-Zone, ideal für entspannte Stunden in absoluter Privatsphäre.
Das Haus verfügt über eine angelegte Gartenfläche und private Stellplätze.
Es wird vollständig möbliert verkauft, mit maßgefertigter Küche und Einrichtung, entworfen für Komfort und Funktionalität.
Hochwertige Miele-Geräte sind ebenso eingebaut wie stimmungsvolle Beleuchtung des renommierten Herstellers Prggin, sorgfältig abgestimmt auf jeden Raum.
Lage: Drage liegt zwischen Zadar und Šibenik, in der Nähe von Nationalparks, Stränden und wichtigen Verkehrsverbindungen. Der Flughafen Zadar ist in nur 35 Minuten erreichbar – eine ausgezeichnete Wahl für Ferien, Vermietung oder dauerhaften Wohnsitz.
Für weitere Informationen und Besichtigungen:
Prostor and Co – Boutique Immobilienagentur
www.prostorco.hr | ID CODE: 45
In dem ruhigen Ort Drage, bekannt für sein kristallklares Meer, den neuen Yachthafen und mediterranes Flair, steht eine moderne Doppelhaushälfte zum Verkauf – mit privatem Pool und luxuriöser Dachterrasse.
Das Haus erstreckt sich über drei Etagen mit einer Nettonutzfläche von 246,67 m².
Im Erdgeschoss befinden sich ein großzügiger Wohnbereich mit Küche und Esszimmer, ein Schlafzimmer mit eigenem Bad, ein Gäste-WC sowie ein Technik-/Abstellraum. Vom Wohn- und Schlafzimmer aus gelangt man direkt auf die überdachte Terrasse mit Zugang zum 8×4 m großen Pool und Sonnendeck.
Im Obergeschoss befinden sich drei Schlafzimmer – jedes mit eigenem Bad und Terrasse mit herrlichem Meerblick.
Ein echtes Highlight ist die Dachterrasse mit Whirlpool und Lounge-Zone, ideal für entspannte Stunden in absoluter Privatsphäre.
Das Haus verfügt über eine angelegte Gartenfläche und private Stellplätze.
Es wird vollständig möbliert verkauft, mit maßgefertigter Küche und Einrichtung, entworfen für Komfort und Funktionalität.
Hochwertige Miele-Geräte sind ebenso eingebaut wie stimmungsvolle Beleuchtung des renommierten Herstellers Prggin, sorgfältig abgestimmt auf jeden Raum.
Lage: Drage liegt zwischen Zadar und Šibenik, in der Nähe von Nationalparks, Stränden und wichtigen Verkehrsverbindungen. Der Flughafen Zadar ist in nur 35 Minuten erreichbar – eine ausgezeichnete Wahl für Ferien, Vermietung oder dauerhaften Wohnsitz.
Für weitere Informationen und Besichtigungen:
Prostor and Co – Boutique Immobilienagentur
www.prostorco.hr | ID CODE: 45